48040 Range 212 Road, Rural Camrose County, Alberta T0B 0G0

Listed for:
$842,900
3 beds
2 baths
Listed 30 days ago
Manufactured Home for rent: 48040 Range 212 Road, Rural Camrose County, Alberta T0B 0G0

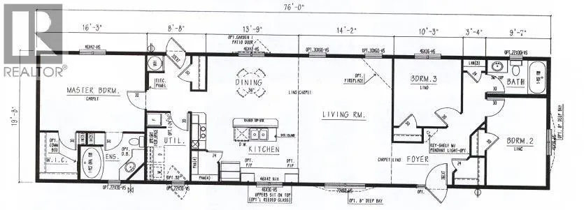
View all 36 photos

About

Welcome to this beautifully maintained property offering the perfect balance of modern comfort and country living. Situated on 134 acres of productive crop land, this acreage provides ample space, privacy, and potential—all within minutes of Camrose.Step inside and experience the warmth and style of this thoughtfully designed home. The spacious kitchen is a showstopper, featuring stylish cabinetry, a large island, and a walk-in pantry—perfect for home cooks and entertainers alike. Vaulted ceilings and abundant natural light create a bright, airy atmosphere throughout the main living spaces.The large primary bedroom is your private retreat, complete with a walk-in closet and a full 4-piece ensuite bathroom. Two additional generously sized bedrooms and another full bathroom offer plenty of room for family or guests. A dedicated laundry room with extra storage ensures daily life stays organized and efficient.Convenience is key with both front and back entryway closets, keeping clutter out of sight. Enjoy your morning coffee on the east-facing deck and unwind in the evenings on the west-facing deck—each offering stunning prairie views.Outside, an oversized double detached garage provides more than just parking. Heated with in-floor heat and featuring a roughed-in shower and workshop area, it’s the perfect setup for hobbyists, mechanics, or anyone in need of a versatile workspace.Whether you're dreaming of a hobby farm, expanding your operation, or simply enjoying wide-open spaces, this property is ready to meet your needs. Don't miss this rare opportunity to own a prime piece of land with a move-in-ready home just outside the city. (id:27476)

Property Highlights

MLS® Number
A2296674
Type
Single Family
Ownership Type
Freehold
Land Size
134.25 ac|80 - 160 acres

Building

Building Type
Manufactured Home
Storeys
1.00
Square Footage
1520 sqft
Bathrooms Total
2
Bedrooms Above Ground
3
Bedrooms Total
3
Exterior Finish
Vinyl siding
Fireplace Present
No
Basement Type
None
Basement Features
Building Heating Type
Forced air
Heating Fuel
Natural gas
Building Cooling Type
None

Utilities

Water
Cistern
Utility Sewer
Pump, Septic tank

Room Layout

Other
Main level
17.00 Ft x 18.67 Ft
Living room
Main level
13.83 Ft x 18.67 Ft
Laundry room
Main level
6.25 Ft x 10.08 Ft
Primary Bedroom
Main level
15.50 Ft x 11.50 Ft
4pc Bathroom
Main level
8.42 Ft x 7.00 Ft
Bedroom
Main level
8.83 Ft x 13.17 Ft
Bedroom
Main level
4.92 Ft x 8.75 Ft
4pc Bathroom
Main level
4.92 Ft x 8.75 Ft

Location

Learn more about this property
Listing provided by:
RE/MAX Real Estate (Edmonton) Ltd.
MLS® number:
A2296674
Agent:
Lisa Rohr
*Indicates required field
Name is required
Email is required
Please enter a valid phone number (e.g., 416-111-1111).