49156 Hyw 623, Rural Camrose County, Alberta T4V 2N1

Listed for:
$475,000
5 beds
5 baths
Listed 8 days ago
House for rent: 49156 Hyw 623, Rural Camrose County, Alberta T4V 2N1

View all 25 photos

About

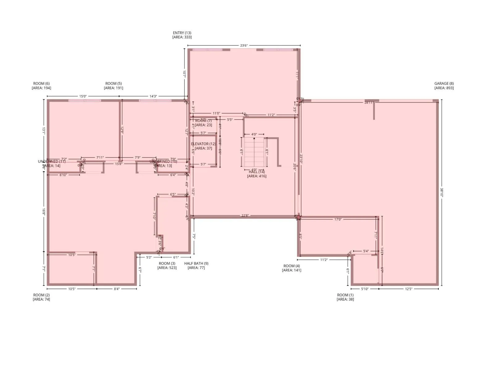
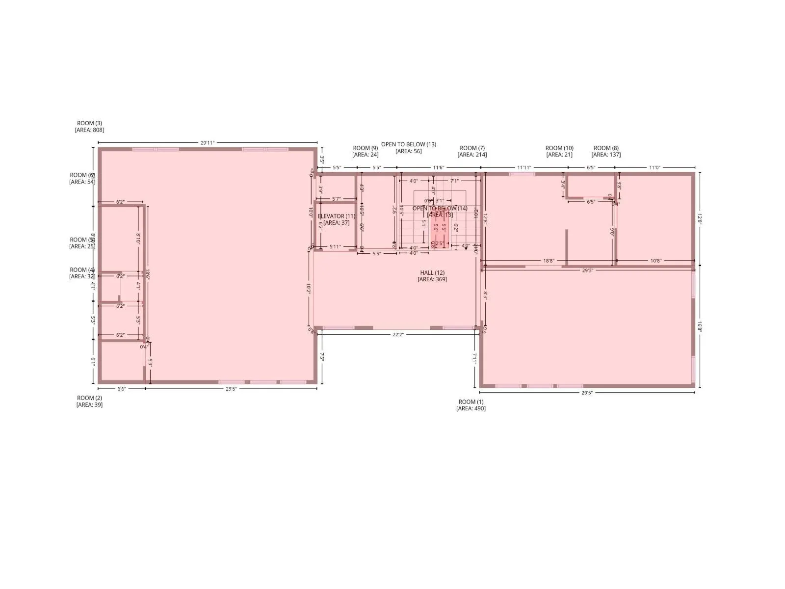
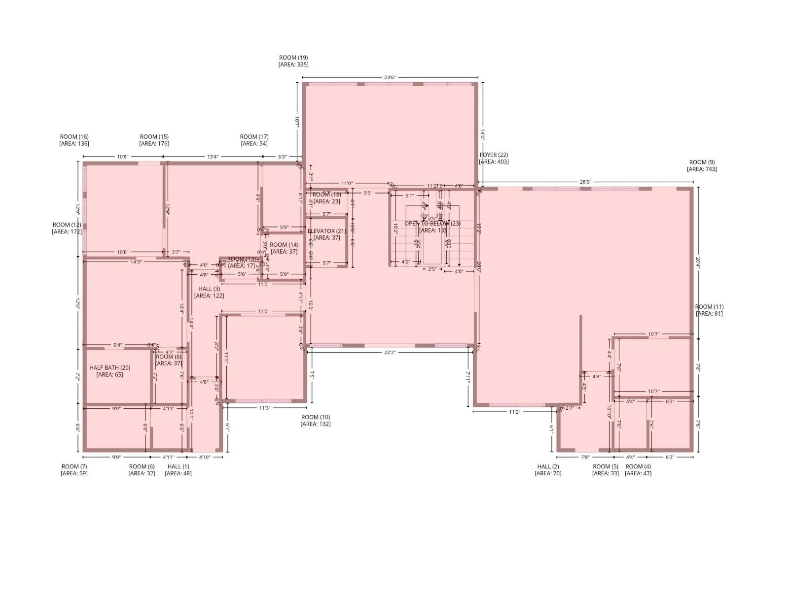
Just over 10 acre parcel, minutes from Camrose and approximately 40 minute drive to South East Edmonton, 20 minutes from Beaumont. All situated 5 minutes from Miquelon Lake Provincial Park entrance. This beautifully treed, pasture / grazing land, including ponds and rolling hills right off highway 623. The fully serviced parcel of land includes a partly-built two-storey home with walkout basement. Two double car garages, and two lower parking stalls. The interior is only framed at this point. This 5000 + sq/ft home has amazing views facing North and South. This home features an elevator, plumbing for in-floor heating, 4 bathrooms, 5 bedrooms. Endless possibilities await you on this large acreage and future home. Bring all offers! Must sell!! (id:27476)

Property Highlights

MLS® Number
E4481341
Type
Single Family
Land Size
10.23 ac

Building

Building Type
House
Storeys
2.00
Square Footage
5565 sqft
Bathrooms Total
5
Bedrooms Total
5
Fireplace Present
No
Basement Type
Full (Unfinished)
Basement Features
Building Heating Type
See remarks
Heating Fuel
Building Cooling Type

Location

Learn more about this property
Listing provided by:
MaxWell Polaris
MLS® number:
E4481341
Agent:
Terry N. Taschuk
*Indicates required field
Name is required
Email is required
Please enter a valid phone number (e.g., 416-111-1111).