7316 Township Road 144, Rural Cypress County, Alberta T0J 2P2

Listed for:
$873,800
5 beds
3 baths
Listed 27 days ago
House for rent: 7316 Township Road 144, Rural Cypress County, Alberta T0J 2P2

View all 50 photos

Learn more about this property
Listing provided by:
RIVER STREET REAL ESTATE
MLS® number:
A2265756
Agent:
Lisa Jerred
*Indicates required field
Name is required
Email is required
Please enter a valid phone number (e.g., 416-111-1111).

About

A rare opportunity for private country living close to town! This dream home was built with every detail of comfort and function in mind, from the large decks designed to capture the prairie views to the incredible 1,850 sq ft heated shop. Step inside the main floor, where vaulted ceilings, skylights, and large windows fill the space with light. The living room is warm and inviting, centered around a stunning wood-burning stone fireplace, perfect for cozy evenings. The open kitchen is a chef’s dream with granite counters, custom cabinetry, a butcher-block island, a 36” gas range, and a walk-in pantry the size of an extra room. The adjoining dining area is perfect for gatherings and opens to the back deck for easy indoor-outdoor living. The primary bedroom offers a peaceful retreat with double closets and beautiful natural light from multiple windows.  A full bathroom featuring a clawfoot tub—perfect for unwinding under the starry skies—a second bedroom, main floor laundry, and a huge mudroom with outdoor access complete this level. Additional features include central vac and in-floor heating throughout the lower level. Downstairs boasts 9-foot ceilings, a large family room, three additional good-sized bedrooms, a full bathroom, a utility/storage room, and a storm shelter/cold room for storage or safety. Outside, you’ll find a fenced-in dog run off the front porch, a garden area, storage buildings, ample parking, and a cozy fire pit space with swing seating. The attached 26x60 (yes, 60’!) + 14x24 heated shop is a dream on its own, complete with in-floor heat, 220 power, an 18-ft door, and a 3-piece bathroom. From the covered front deck, enjoy quiet mornings with sunrise views, then spend your evenings watching the sun set across the open fields from the spacious back deck. This acreage offers complete privacy, surrounded by open views with amazing neighbours about half a mile away and no chance of development nearby. School bus pickup is right in the driveway, and be st of all, it’s quiet with no city or highway noise. Beautifully built, thoughtfully designed, and located less than 15 minutes northwest of Redcliff, this property truly delivers the best of country comfort and practical luxury. (id:27476)

Property Highlights

MLS® Number
A2265756
Type
Single Family
Ownership Type
Freehold
Land Size
2.06 ac|2 - 4.99 acres

Building

Building Type
House
Storeys
1.00
Square Footage
1745 sqft
Bathrooms Total
3
Bedrooms Above Ground
2
Bedrooms Total
5
Exterior Finish
Vinyl siding
Fireplace Present
Yes
Basement Type
Full (Finished)
Basement Features
Building Heating Type
Heating Fuel
Building Cooling Type
Central air conditioning

Utilities

Water
Well, Cistern
Utility Sewer
Septic Field, Holding Tank, Septic tank

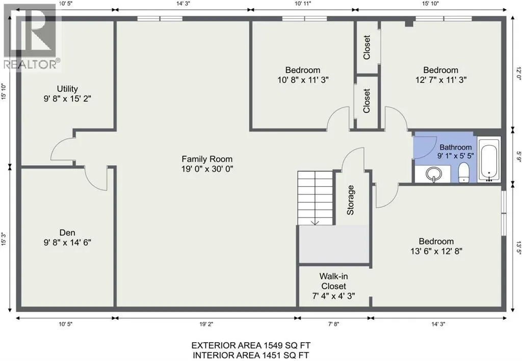
Room Layout

Family room
Basement
19.00 Ft x 30.00 Ft
Bedroom
Basement
10.67 Ft x 11.25 Ft
Bedroom
Basement
12.58 Ft x 11.25 Ft
Bedroom
Basement
13.50 Ft x 12.67 Ft
Cold room
Basement
9.67 Ft x 14.50 Ft
4pc Bathroom
Basement
Measurements not available
Living room
Main level
22.92 Ft x 14.92 Ft
Dining room
Main level
10.58 Ft x 14.42 Ft
Kitchen
Main level
12.67 Ft x 11.83 Ft
Bedroom
Main level
12.17 Ft x 10.58 Ft
Primary Bedroom
Main level
14.17 Ft x 16.58 Ft
3pc Bathroom
Main level
.00 Ft x .00 Ft
4pc Bathroom
Main level
Measurements not available
Laundry room
Main level
3.17 Ft x 5.25 Ft
Pantry
Main level
6.75 Ft x 16.25 Ft

Location