2414 63 Av Ne, Rural Leduc County, Alberta T4X 3A6

Listed for:
$745,000
4 beds
4 baths
Listed 74 days ago
House for rent: 2414 63 Av Ne, Rural Leduc County, Alberta T4X 3A6

View all 6 photos

Learn more about this property
Listing provided by:
Exp Realty
MLS® number:
E4456303
Agent:
Jasleen Brar
*Indicates required field
Name is required
Email is required
Please enter a valid phone number (e.g., 416-111-1111).

About

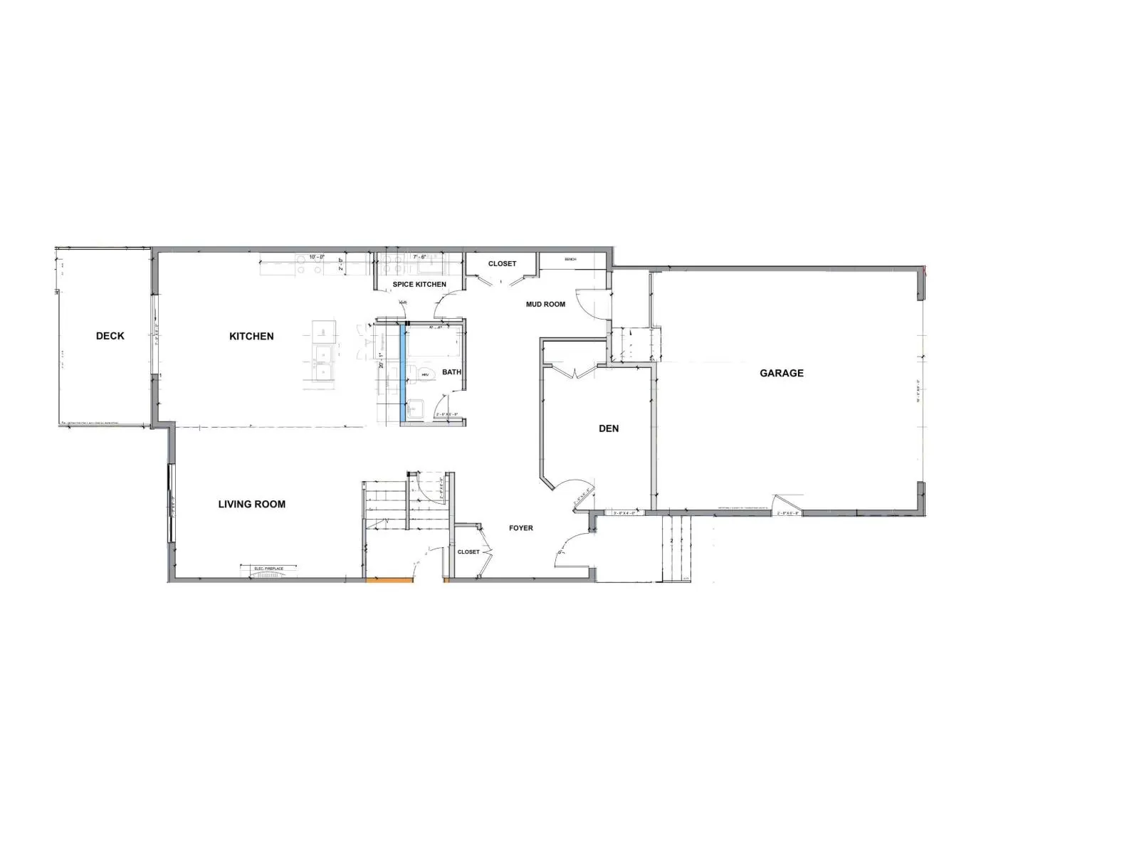
Be the very first to own this 2,256 sq ft brand-new, never lived in home. Still under construction, this stunning 2-storey offers soaring 9 ft ceilings on the main floor, an open-to-below design, and a bright open concept layout perfect for families. The chef’s kitchen features a large island, modern finishes, and a convenient spice kitchen, while the living room showcases a cozy fireplace. A main floor bedroom with a full bath provides flexibility for guests or family. Upstairs you will find four bedrooms including a luxurious primary suite with a 5-piece spa-inspired ensuite and walk-in closet, plus two bedrooms with access to their own private balconies, perfect for quiet mornings or evening reading. The unfinished basement with side entrance is ready for your ideas, whether a guest suite or recreation space, and outside you can enjoy a covered deck for year-round use. Ideally located just minutes from Edmonton International Airport, Premium Outlet Mall, schools and major highways. (id:27476)

Property Highlights

MLS® Number
E4456303
Type
Single Family
Land Size
0.13 ac
Parking Space Total
4

Building

Building Type
House
Storeys
2.00
Square Footage
2556 sqft
Bathrooms Total
4
Bedrooms Total
4
Amenities
Ceiling - 9ft Airport
Fireplace Present
No
Basement Type
Full (Unfinished)
Basement Features
Building Heating Type
Forced air
Heating Fuel
Building Cooling Type

Location