8416 Rge Rd 1-3, Rural Pincher Creek No. 9, M.D. of, Alberta T0K 0P0

Listed for:
$3,250,000
7 beds
3 baths
Listed 6 days ago
House for rent: 8416 Rge Rd 1-3, Rural Pincher Creek No. 9, M.D. of, Alberta T0K 0P0

View all 50 photos

Learn more about this property
Listing provided by:
MAVERICK REALTY
MLS® number:
A2195197
Agent:
Martha Paridaen
*Indicates required field
Name is required
Email is required
Please enter a valid phone number (e.g., 416-111-1111).

About

OLDMAN RIVERFRONT *** 133 Acres w/home: SW Alberta, Canada. RANCHO DEL RIO: The entire west boundary of this quarter section is the meandering Oldman River. This river, named for Na’pi in native legend, the great spirit and protector, carved its way through time creating a magnificent valley between the Porcupine Hills and the Rocky Mountain Range. Private access to world class fly-fishing in SW Alberta. This pristine stretch of river features an abundance of trout water and a variety of fish and water types. Panoramic, unobstructed views of the iconic Rocky Mountains and Oldman River Valley. This custom quality Erickson home built in 2000, features passive solar design, 1 1/2 storey style, low maintenance exterior, 6 bedrooms, den/office, totaling 4400 square feet of developed area on 3 levels. A grid-tied 2.4 KW Skystream wind turbine and 6 panel solar array (totaling 1590 watts), was added later for improved energy efficiency. Enjoy barrier free entry to main floor, generous sized open concept vaulted great room, wood-burning fireplace on main, gas fireplace on lower level, large SW facing windows c/w roll shutters, ICF foundation, zoned in-floor hydronic heating, music studio, cold room, large composite deck with perimeter cedar bench seating and outdoor entertaining patio area c/w stone outdoor fireplace. Outbuildings include a 24 x 48 foot insulated, heated triple detached garage c/w workshop, a 40 x 64 foot pole building c/w electricity and large 16 x 12 foot high overhead door, two 12×16 guest cabins c/w wood burning stoves, steel shed, two animal shelters, playhouse and a chicken coop. A large garden, outdoor arena, corrals, newly fenced and cross-fenced perimeter provides a turnkey operation to new owners. Impressive 8 gallon/minute dril led well and new septic tank in 2020. Established shelter belt provides an oasis for migratory birds and abundant wildlife. Existing irrigation licence for 12,346 cubic meters annually can be transferred to new owner. Access this property from the end of a well maintained MD road. BC border less than an hour to the west and Montana border only 75 minutes to the south. Waterton Park, Castle Crown Wilderness Area, Crowsnest Pass and the Porcupine Hills all within a short driving distance. This property would make an ideal multi-family and/or multi generational year round home or retreat! SEE VIDEO and 3D Walk Through. Additional photos of private river valley, guest cabins and outbuildings available on request. (id:27476)

Property Highlights

MLS® Number
A2195197
Type
Single Family
Ownership Type
Freehold
Land Size
133 ac|80 - 160 acres
Parking Space Total
8

Building

Building Type
House
Storeys
1.50
Square Footage
3139 sqft
Bathrooms Total
3
Bedrooms Above Ground
5
Bedrooms Total
7
Amenities
Golf Course, Schools, Shopping
Exterior Finish
Stucco
Fireplace Present
Yes
Basement Type
Full (Finished)
Basement Features
Building Heating Type
Other, Forced air, In Floor Heating
Heating Fuel
Natural gas
Building Cooling Type
See Remarks

Utilities

Water
Well
Power
100 Amp Service
Utility Sewer
Septic Field, Septic tank

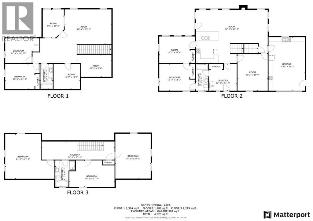
Room Layout

4pc Bathroom
Second level
.00 M x .00 M
Bedroom
Second level
19.00 M x 15.42 M
Bedroom
Second level
19.25 M x 11.25 M
Bedroom
Second level
19.00 M x 15.43 M
Loft
Second level
31.17 M x 7.67 M
4pc Bathroom
Lower level
.00 M x .00 M
Bedroom
Lower level
14.83 M x 10.67 M
Bedroom
Lower level
14.83 M x 10.67 M
Recreational, Games room
Lower level
19.67 M x 14.92 M
Other
Lower level
11.83 M x 9.50 M
Cold room
Lower level
12.25 M x 4.83 M
Storage
Lower level
12.33 M x 9.42 M
Furnace
Lower level
11.67 M x 11.17 M
Kitchen
Main level
14.67 M x 12.33 M
Dining room
Main level
10.83 M x 10.00 M
Great room
Main level
20.83 M x 14.83 M
Primary Bedroom
Main level
15.42 M x 11.17 M
Sunroom
Main level
15.42 M x 11.17 M
Bedroom
Main level
15.25 M x 13.17 M
Laundry room
Main level
11.67 M x 11.17 M
4pc Bathroom
Main level
.00 M x .00 M
Other
Main level
23.01 M x 15.42 M

Location