105, 251 Spruce Street, Rural Red Deer County, Alberta T4E 1B4

Listed for:
$564,900
0 beds
0 baths
Listed 173 days ago
Commercial Mix for rent: 105, 251 Spruce Street, Rural Red Deer County, Alberta T4E 1B4

View all 28 photos

About

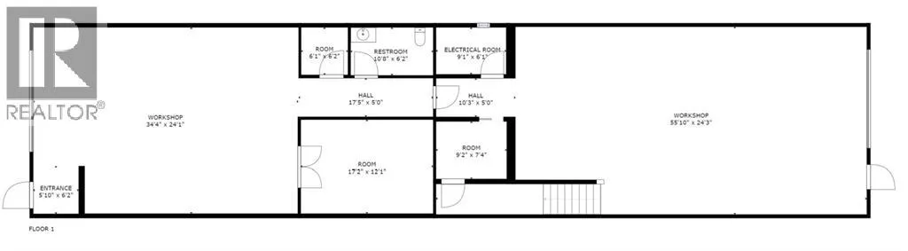
Currently leased until March 14, 2028 to a low impact tenant-6.4% cap rate. (Fenced storage compound does not form part of this lease and could possibly be leased to generate additional income to increase cap rate to over 7.5%, or used for storage for buyer.). Ideal south side location in Piper Creek Industrial park, just south of the Westerner grounds/Centrium. This building was constructed in 2015 and shows near new, with a 2751 sq. ft. footprint (Condo plan measurement) and 3332 total developed space (Interior measurements) including mezzanine with exterior fenced storage compound. This incredible space has both a front drive 14 ft. overhead door and a rear drive 14 ft. overhead door with two separate bays and office space in the centre. The possibilities are endless, as the front could be used as a show room or additional shop space, or could be sub-let to a tenant. Also ideal deal for the hobbyist or business owner that desires some extra space for a man cave. Both the front and back shop/showroom spaces have overhead radiant heat, front bay is 24'x 34', rear bay is 24'x55'. The office mezzanine has force air. The upper mezzanine consists of two offices, a bathroom and a kitchen room. The lower central space below the mezzanine has another large room ideal for show room/reception or office space, plus two additional rooms that could be used for storage or small office and another bathroom. Front bay flooring has been left bare concrete as the new owner may decide they want carpet for a showroom, epoxy, paint, or leave as is, The front parking area is paved as well as the rear access and parking. (id:27476)

Property Highlights

MLS® Number
A2265646
Type
Other
Community Name
Piper Creek Business Park
Maintenance Fee
482.00
Ownership Type
Condominium/Strata
Land Size
0.00X0.00|Unknown

Building

Building Type
Commercial Mix
Square Footage
3332 sqft
Fireplace Present
No
Basement Type
Basement Features
Building Heating Type
Forced air, Radiant heat
Heating Fuel
Natural gas
Building Cooling Type

Utilities

Water
Municipal water
Utility Sewer
Municipal sewage system

Location

Learn more about this property
Listing provided by:
RCR - Royal Carpet Realty Ltd.
MLS® number:
A2265646
Agent:
Brad Granlund
*Indicates required field
Name is required
Email is required
Please enter a valid phone number (e.g., 416-111-1111).