5901 50 Avenue, Rural Red Deer County, Alberta T4G 1R7

Listed for:
$6,990,000
0 beds
0 baths
Listed 6 days ago
5901 50 Avenue, Rural Red Deer County, Alberta T4G 1R7

View all 46 photos

About

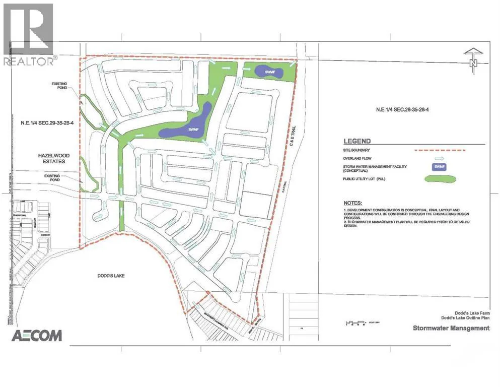
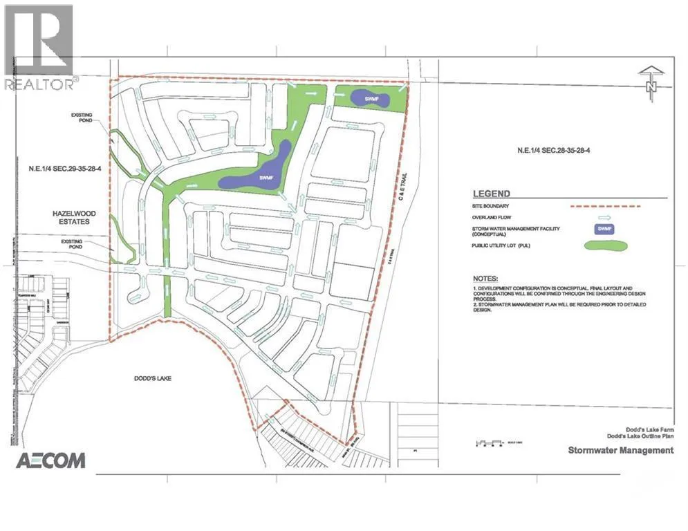
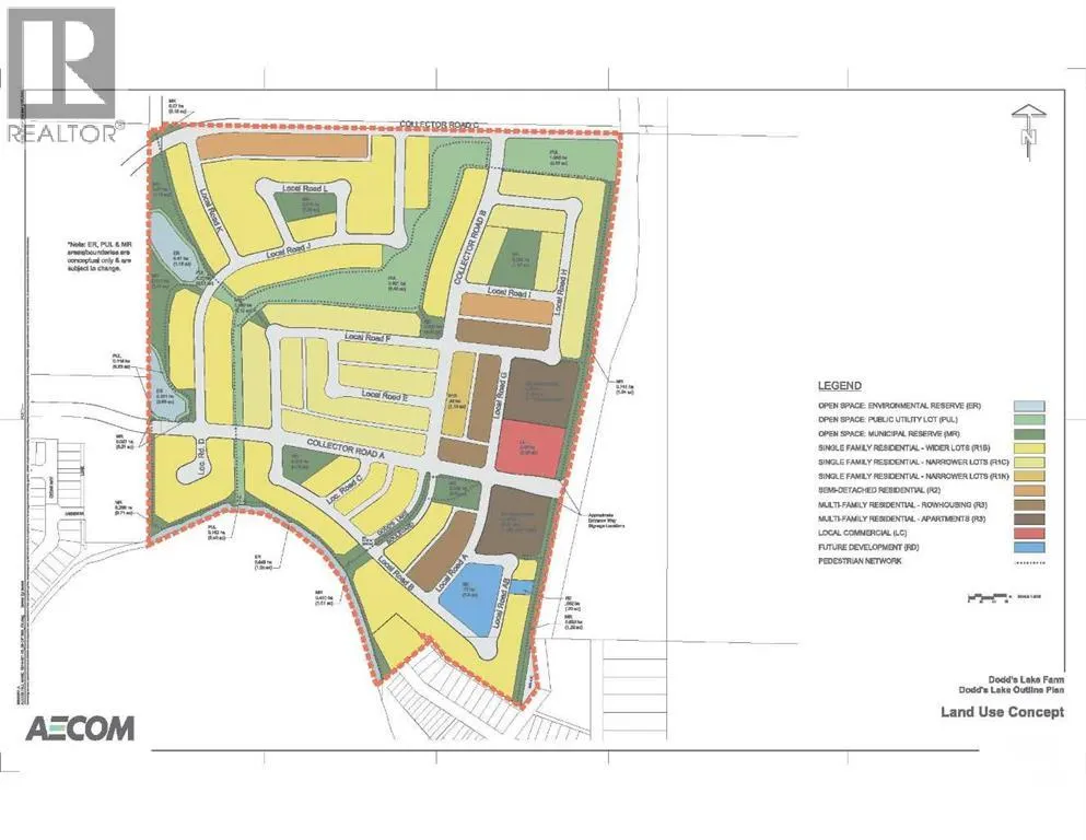
HOME SWEET HOME DEVELOPMENT OPPORTUNITY! DODD’S LAKE DEVELOPMENT OPPORTUNITY! This is your RARE OPPORTUNITY to purchase a PRIME 124.62 ACRE PLOT OF LAND offering LUXURY LAKESIDE LIVING in the charming and growing town of Innisfail! Phase one is approved for 101 homes and being sold by current owner. Potential for over 900 residential units can be developed. Perfectly located along beautiful Dodd’s Lake, suitable for high quality residences with resort style amenities will fuse high end living with the magnificence of natural surroundings. The picturesque Town of Innisfail is located in central Alberta, between Calgary and Edmonton with quick and convenient access to Highway 2. The town also boasts an array of local galleries, museums, community events, numerous local eateries and some of Alberta’s top golf courses. For those seeking adventure, the rugged mountains of Banff, Jasper’s sparkling glaciers, and Lake Louise’s turquoise waters are all easily accessible, providing endless opportunities to enjoy the great outdoors. With unmatched water views and natural landmarks, Dodds Lake proposed development will include two-storey homes, Bungalow/Villa townhomes and condominiums. A year-round community with all the advantages of resort living on the shores of Dodds Lake. This master planned community envisions the project to have resort-style amenities such as continuous pathways, a boardwalk along Dodd’s Lake’s shoreline, restaurants, shops, a clubhouse with a pool, sauna, fitness areas and even a golf simulator. INCREDIBLE OPPORTUNITY for experienced developers, REITs, and institutional investors to acquire and develop this high-potential site with low supply in the area and high demand to escape the big cities. Land zoning is RD - Reserved for Future Development District & R3 –Residential Multi-Family District. PHASE 1 (not included in this sale) is 101 Freehold Townhomes, with sales already underway. Additional Information is available on both the the MLS supplemen ts link and in the Client Data Portal. Contact us today for more information! (id:27476)

Property Highlights

MLS® Number
A2281488
Type
Vacant Land
Ownership Type
Freehold
Land Size
504319.24 m2|80 - 160 acres

Building

Amenities
Golf Course, Park, Playground, Recreation Nearby, Schools, Shopping, Water Nearby
Fireplace Present
No
Basement Type
Basement Features
Building Heating Type
Heating Fuel
Building Cooling Type

Utilities

Water
See Remarks
Utility Sewer
No sewage system

Location

Learn more about this property
Listing provided by:
Century 21 Bamber Realty LTD.
MLS® number:
A2281488
Agent:
Julie Vesuwalla
*Indicates required field
Name is required
Email is required
Please enter a valid phone number (e.g., 416-111-1111).