9 Eaton Terrace, Rural Rocky View County, Alberta T1Z 0A1

Listed for:
$1,384,900
5 beds
5 baths
Listed 47 days ago
House for rent: 9 Eaton Terrace, Rural Rocky View County, Alberta T1Z 0A1

View all 50 photos

About

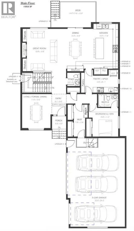
Welcome to the brand new development of Knightsbridge in Cambridge Park. Minutes away from access to Stoney Trail and East Hills shopping centre. The EDEN is a stunning estate home designed to blend luxury and practicality. Set on a generous 6027 sq ft lot, this home provides an expansive backyard and a side-drive triple car garage. These are not your typical cookie cutter homes. With 3,502 sq ft of living space, this custom-built masterpiece features 5 spacious bedrooms and 4.5 beautifully designed bathrooms, offering ample room for family and guests. This home is loaded with upgrades including: Main floor full ensuite bath as well as an added powder room, Jack and Jill ensuites for added convenience, High ceilings & a Spice kitchen to enhance your culinary experiences. Inside, the main floor exudes elegance with rich hardwood flooring and 9 ft ceilings with 8 ft doors, and striking black-framed windows that invite natural light. The gourmet kitchen is a chef’s dream, complete with an oversized island, a secondary spice kitchen, sleek stainless steel appliances. An open concept formal dining and living area set the stage for gatherings. The main floor also includes a flex room as well as a 4 pc ensuite bathroom. The primary suite on the upper floors is a true sanctuary with a freestanding tub and a custom-built closet. The home’s thoughtful design continues with 3 more generous sized bedrooms on the second floor, a bonus room for entertaining, a Jack & Jill ensuite bathroom for convenience, as well as a second floor laundry room. . Step outside to enjoy a completed rear deck with steps leading to a private outdoor oasis. This home also offers a triple attached garage allowing plenty of space for extra parking. This community is within minutes to Calgary, Chestermere, and East Hills, 18 minutes to Downtown Calgary, and provides quick access to Stoney Trail, Highway 1, and McKnight Blvd making it easy to get anywhere in and around the city. Located near shopping cen tres, public and private schools, Khalsa school's, parks, and many other amenities, while still offering quiet country-living with wide open green spaces, walking paths, and playgrounds. (id:27476)

Property Highlights

MLS® Number
A2276755
Type
Single Family
Community Name
Cambridge Park
Ownership Type
Freehold
Land Size
6027 sqft|4,051 - 7,250 sqft
Parking Space Total
6

Building

Building Type
House
Storeys
2.00
Square Footage
3502 sqft
Bathrooms Total
5
Bedrooms Above Ground
5
Bedrooms Total
5
Amenities
Other Playground, Schools
Exterior Finish
Concrete
Fireplace Present
Yes
Basement Type
Full (Unfinished)
Basement Features
Building Heating Type
Forced air
Heating Fuel
Building Cooling Type
None

Utilities

Utility Sewer
Municipal sewage system

Room Layout

Great room
Main level
16.75 Ft x 16.42 Ft
Kitchen
Main level
10.00 Ft x 17.42 Ft
Dining room
Main level
11.00 Ft x 13.50 Ft
Bedroom
Main level
10.00 Ft x 11.17 Ft
2pc Bathroom
Main level
Measurements not available
4pc Bathroom
Main level
Measurements not available
Primary Bedroom
Upper Level
15.33 Ft x 16.42 Ft
5pc Bathroom
Upper Level
Measurements not available
Bonus Room
Upper Level
11.42 Ft x 13.50 Ft
Bedroom
Upper Level
10.92 Ft x 12.50 Ft
Bedroom
Upper Level
10.83 Ft x 12.00 Ft
Bedroom
Upper Level
13.17 Ft x 11.08 Ft
5pc Bathroom
Upper Level
Measurements not available
4pc Bathroom
Upper Level
Measurements not available

Location

Learn more about this property
Listing provided by:
CIR Realty
MLS® number:
A2276755
Agent:
Robbie Sihota
*Indicates required field
Name is required
Email is required
Please enter a valid phone number (e.g., 416-111-1111).