15507 Range Road 23, Schuler, Alberta T0J 3B0

Listed for:
$299,700
3 beds
2 baths
Listed 70 days ago
Manufactured Home for rent: 15507 Range Road 23, Schuler, Alberta T0J 3B0

View all 50 photos

About

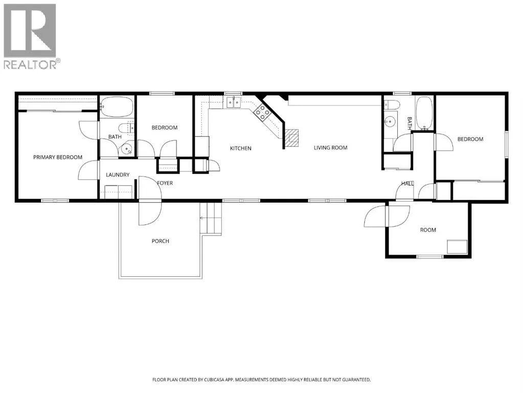
51.4 Acres of land 30 mins from Dunmore and 8 min from Schuler. Only 350 meters off Hwy 41. Has barbwire fencing and corrals around the property making this a great opportunity for a cattle ranch. There is a coulee dividing two areas of land that have been cultivated in years past. The property has 2 wells, One used for the house and the other for livestock water. The same owner of the property for the last 40 years, has farmed the portions of cultivated land and also had Cattle, Horses and Chickens. There are various outbuildings, some were used for chicken Coops, 1 is currently a workshop, and there is a barn. Mobile home as a newer furnace (2 yrs old) and recently updated deck. Fully fenced area around the front of the home. Enjoy wide open prairie views from the current home, or Explore the opportunity to build your dream home in this peaceful location. If you are looking for a good size plot of country property to put your roots down, this could be it! Contact an agent to find out more and book your showing. (id:27476)

Property Highlights

MLS® Number
A2260587
Type
Single Family
Ownership Type
Freehold
Land Size
51.4 ac|50 - 79 acres

Building

Building Type
Manufactured Home
Storeys
1.00
Square Footage
1152 sqft
Bathrooms Total
2
Bedrooms Above Ground
3
Bedrooms Total
3
Exterior Finish
Aluminum siding
Fireplace Present
No
Basement Type
None
Basement Features
Building Heating Type
Forced air
Heating Fuel
Building Cooling Type
Window air conditioner, Wall unit

Location

Learn more about this property
Listing provided by:
2 PERCENT REALTY
MLS® number:
A2260587
Agent:
Bryan De Jong
*Indicates required field
Name is required
Email is required
Please enter a valid phone number (e.g., 416-111-1111).