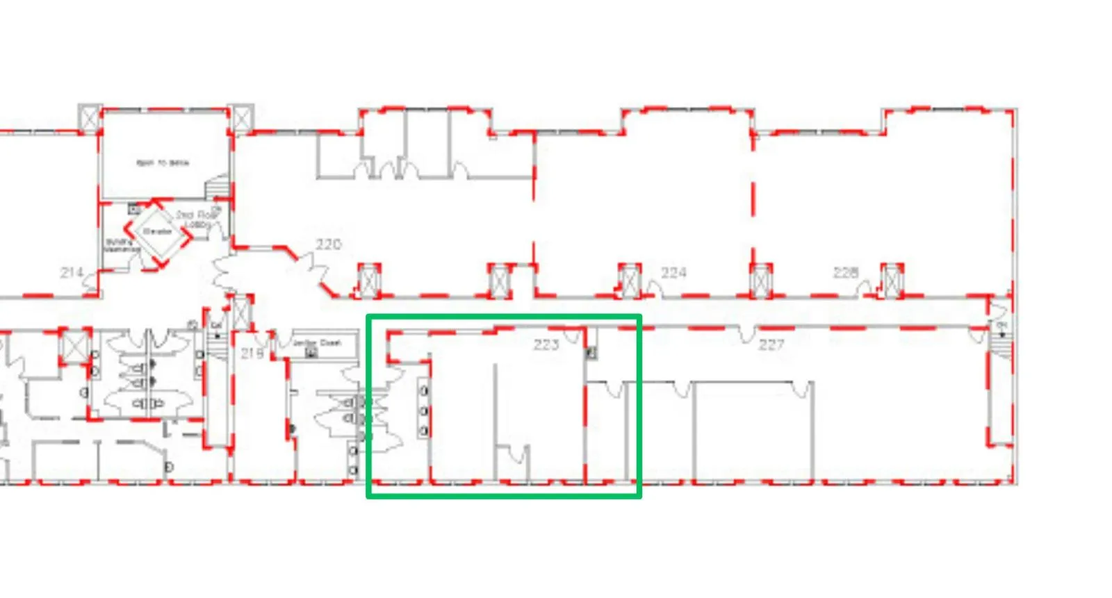
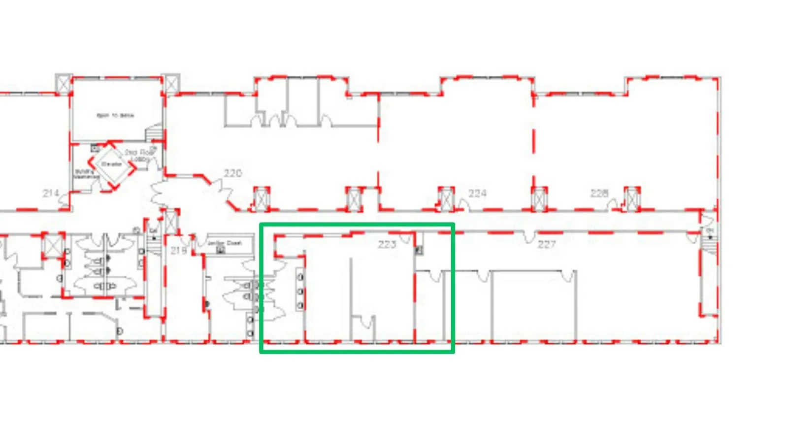
223 223, 636 King Street, Spruce Grove, Alberta T7X 4K5

Listed for:
$18
0 beds
0 baths
Listed 100 days ago
223 223, 636  King Street, Spruce Grove, Alberta T7X 4K5

View all 12 photos

About

This second floor unit is ideal office and personal service space! This 1,037+/- square foot space is a rare find. Located at the intersection of Grove Drive and King Street, this property is easily accessible. Large windows allow for lots of natural light. Welcoming lobby has stair and elevator access to the second floor. Shared washroom available on second floor. Other tenants include restaurants, preschool, daycare, personal services, chiropractor, dentist, and dental hygienist. Permitted uses include: health services, personal services, professional and office service. Zoned C3 - Neighbourhood Retail and Service.Subject Space Width: 25Lease Operating Costs Included: Landlords insurance, property taxes, snow removal/landscaping, water/sewer, property management fees. (id:27476)

Property Highlights

MLS® Number
43691285
Type
Office
Land Size
74487.6 sqft|1 - 3 acres

Building

Square Footage
1037 sqft
Fireplace Present
No
Basement Type
Basement Features
Building Heating Type
Heating Fuel
Building Cooling Type

Location

Learn more about this property
Listing provided by:
Royal LePage Noralta Real Estate
MLS® number:
43691285
Agent:
Victor Moroz
*Indicates required field
Name is required
Email is required
Please enter a valid phone number (e.g., 416-111-1111).