5701 46 Avenue, Stettler, Alberta T0C 2L1

Listed for:
$170,000
1 beds
2 baths
Listed 32 days ago
House for rent: 5701 46 Avenue, Stettler, Alberta T0C 2L1

View all 23 photos

About

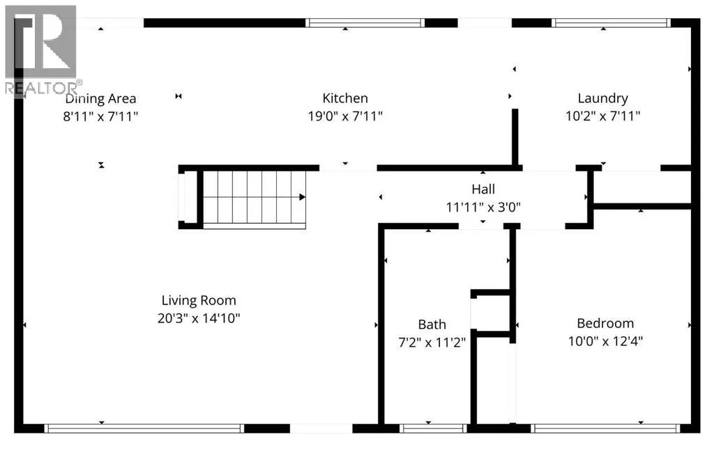
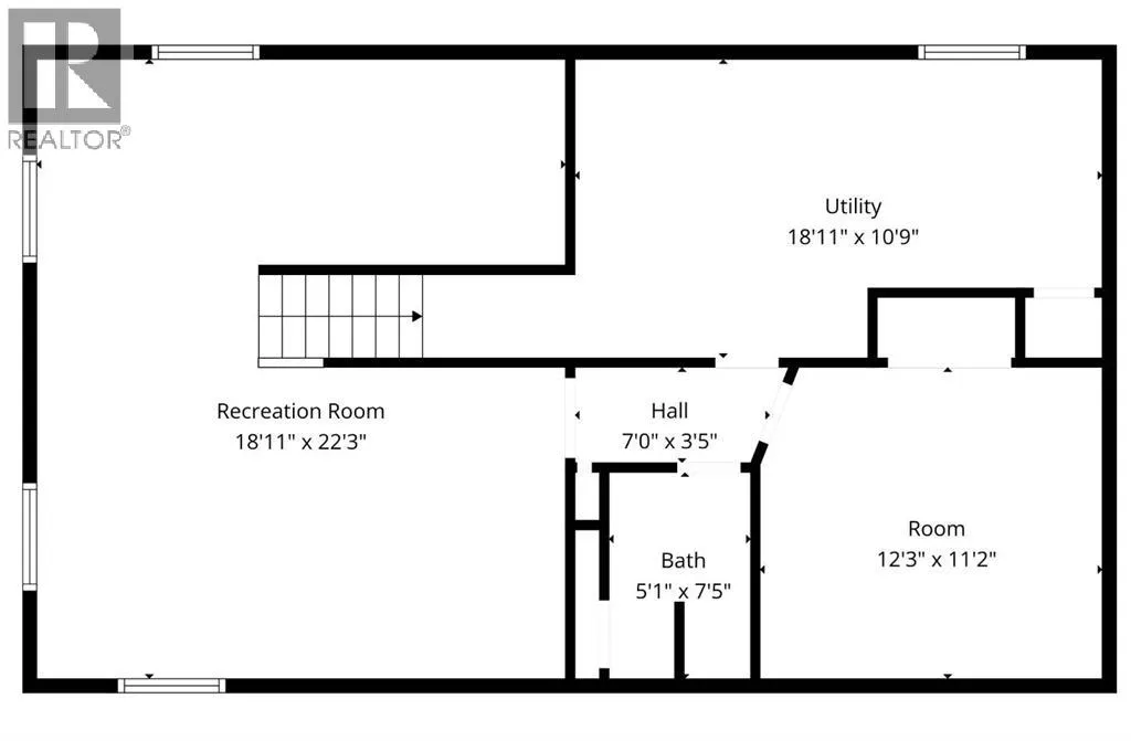
Located in a desirable Stettler neighborhood very close to schools, this corner-lot property offers an opportunity for buyers seeking a project or investment with future potential.The home features one bedroom on the main floor along with main-floor laundry. The lower level includes a living area, den and a half bath, providing additional space for storage, workspace, or flexible use.Outdoor features include a front deck and a covered back deck. A single attached garage and two sheds offer added storage and utility. (id:27476)

Property Highlights

MLS® Number
A2278787
Type
Single Family
Ownership Type
Freehold
Land Size
7042.06 sqft|4,051 - 7,250 sqft
Parking Space Total
3

Building

Building Type
House
Storeys
1.00
Square Footage
948 sqft
Bathrooms Total
2
Bedrooms Above Ground
1
Bedrooms Total
1
Amenities
Park, Playground, Schools
Exterior Finish
Vinyl siding
Fireplace Present
No
Basement Type
Full (Finished)
Basement Features
Building Heating Type
Forced air
Heating Fuel
Natural gas
Building Cooling Type
None

Location

Learn more about this property
Listing provided by:
Real Broker
MLS® number:
A2278787
Agent:
Julie Greiner
*Indicates required field
Name is required
Email is required
Please enter a valid phone number (e.g., 416-111-1111).