59 Garden Valley Dr, Stony Plain, Alberta T7Z 1H4

Listed for:
$420,000
4 beds
3 baths
Listed 9 days ago
House for rent: 59 Garden Valley Dr, Stony Plain, Alberta T7Z 1H4

View all 41 photos

Learn more about this property
Listing provided by:
Royal LePage Noralta Real Estate
MLS® number:
E4464937
Agent:
Carson K. Beier
*Indicates required field
Name is required
Email is required
Please enter a valid phone number (e.g., 416-111-1111).

About

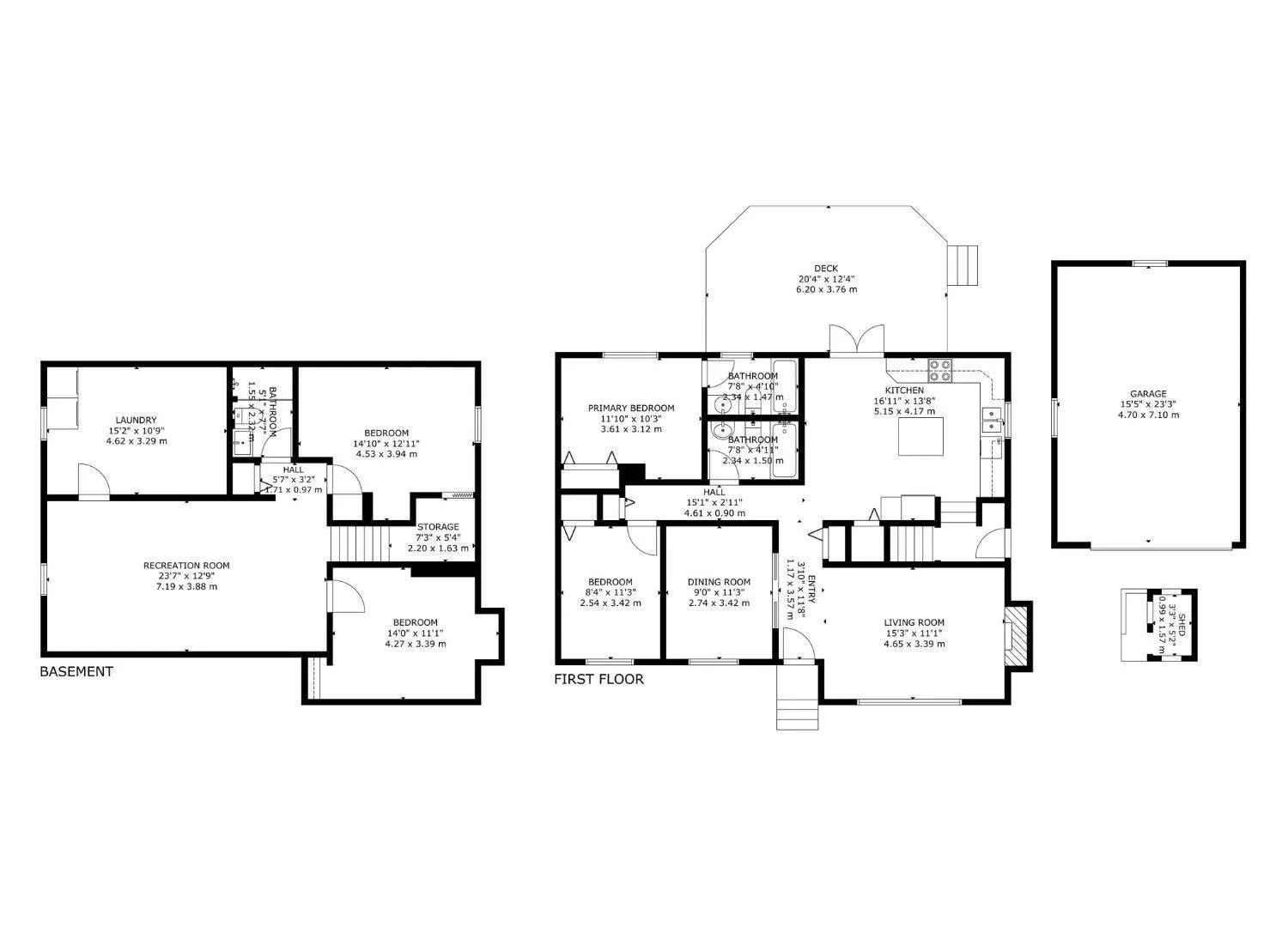
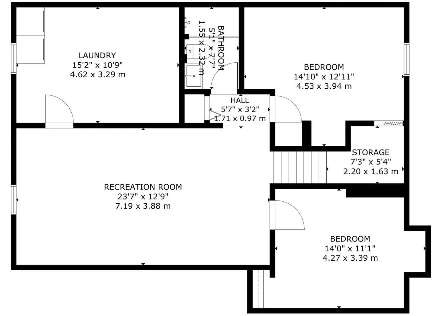
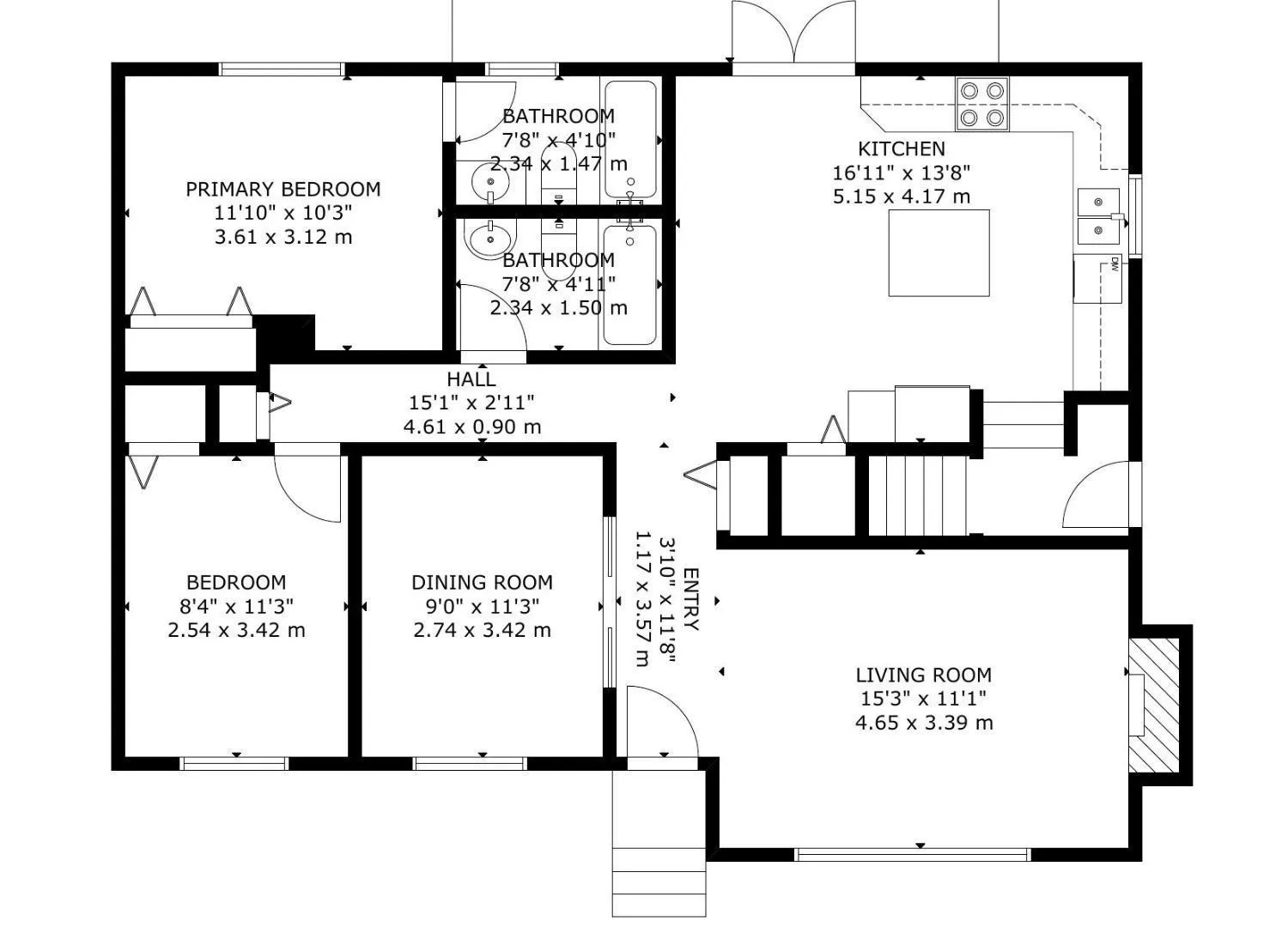
Beautifully upgraded bungalow with detached garage (16Wx24L, heated, insulated, 220V backing onto greenspace in the quiet community of Southridge. This 1,076 square foot (plus full basement) home features updates throughout including renovated kitchen & bathrooms, new windows, new roof and SOLAR PANELS. On the main level: spacious living room with large windows and cozy fireplace, formal dining room, gourmet kitchen with centre island and loads of counter/cupboard space, main 4-piece bathroom and 2 bedrooms including the owner’s suite with 4-piece ensuite. The fully finished basement has 2 additional bedrooms, 2-piece bathroom, large laundry room and family room. Pie-shaped lot with fenced back yard boasting a covered deck, fire pit, storage shed and gated access to the greenspace behind. Fantastic location near schools, golf and shopping. Must see! (id:27476)

Property Highlights

MLS® Number
E4464937
Type
Single Family
Ownership Type
Freehold
Land Size
589.38 m2
Parking Space Total
4

Building

Building Type
House
Storeys
1.00
Square Footage
1076 sqft
Bathrooms Total
3
Bedrooms Total
4
Amenities
Park, Golf Course, Playground, Schools, Shopping
Fireplace Present
Yes
Basement Type
Full (Finished)
Basement Features
Building Heating Type
Forced air
Heating Fuel
Building Cooling Type

Location