B, 303 Centre Street N, Sundre, Alberta T0M 1X0

Listed for:
$385,000
2 beds
3 baths
Listed 50 days ago
Duplex for rent: B, 303 Centre Street N, Sundre, Alberta T0M 1X0

View all 38 photos

About

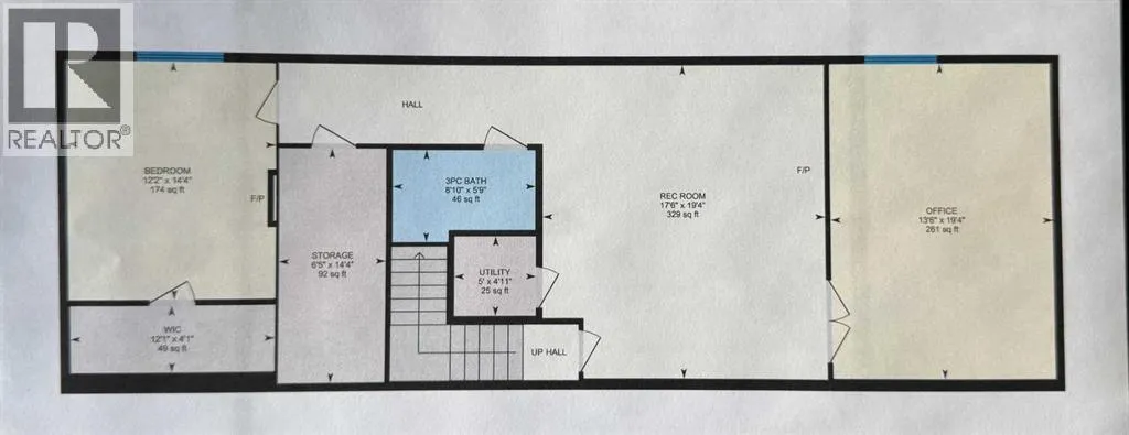
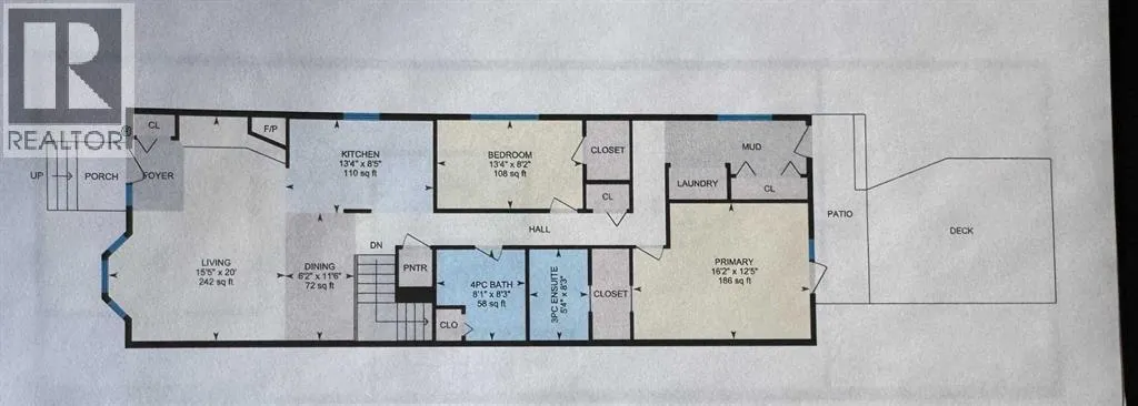
Larger than it looks! Move in ready 1997 duplex offering 1,331 sq ft above grade and a full finished basement with a total of 3 bedrooms & 3 full bathrooms. Add a large craft room with LED lighting & a calm, cool, quiet lower level room for a perfect sleep. Quality built providing a quiet and comfortable living environment. Enjoy 2 fireplaces, 1 gas, 1 electric. Also boasting, storage and more storage, an insulated double garage with lane access and a low maintenance yard. Walking distance to everywhere!The main level has been freshly painted and features an open floor plan with excellent natural flow. The kitchen offers ample counter space and functional work areas, ideal for everyday living and entertaining. A cozy gas fireplace anchors the living space, while main floor laundry adds convenience. Two bedrooms are located upstairs, including a spacious primary bedroom with direct access to the rear patio.The lower level provides flexible living space with a generous recreation room, two bonus rooms, a full bathroom, and ample storage. One bonus room features an electric fireplace, creating a comfortable retreat for hobbies, guests, or office use. (Basement window upgrades would be required to meet egress requirements for legal bedroom use.)Outside, enjoy a 23’ x 21’3” insulated double garage with rear lane access and additional off-street parking—a valuable feature in town.Located in the heart of Sundre, this home puts you minutes from golf, the Red Deer River, river trails, swimming, curling, skating, kayaking, biking, cross country skiing, arts and theatre, fishing, schools, shopping, and the rodeo grounds, all with quick access to West Country recreation and nature at its finest.A solid, well-maintained home offering comfort, flexibility, and a lifestyle that’s hard to beat. (id:27476)

Property Highlights

MLS® Number
A2284925
Type
Single Family
Ownership Type
Freehold
Land Size
3750 sqft|0-4,050 sqft
Parking Space Total
3

Building

Building Type
Duplex
Storeys
1.00
Square Footage
1331 sqft
Bathrooms Total
3
Bedrooms Above Ground
2
Bedrooms Total
2
Amenities
Golf Course, Park, Playground, Schools, Shopping
Exterior Finish
Concrete, Stucco
Fireplace Present
Yes
Basement Type
Full (Finished)
Basement Features
Building Heating Type
Other, Forced air
Heating Fuel
Natural gas
Building Cooling Type
None

Location

Learn more about this property
Listing provided by:
Coldwell Banker Lifestyle
MLS® number:
A2284925
Agent:
Jean Jones
*Indicates required field
Name is required
Email is required
Please enter a valid phone number (e.g., 416-111-1111).