73 Bardwell Way, Sylvan Lake, Alberta T4S 0V4

Listed for:
$537,900
3 beds
3 baths
Listed 4 days ago
House for rent: 73 Bardwell Way, Sylvan Lake, Alberta T4S 0V4

View all 37 photos

Learn more about this property
Listing provided by:
RE/MAX real estate central alberta
MLS® number:
A2266344
Agent:
Andrew Russell
*Indicates required field
Name is required
Email is required
Please enter a valid phone number (e.g., 416-111-1111).

About

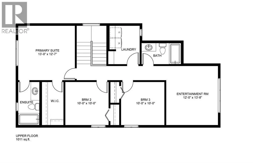
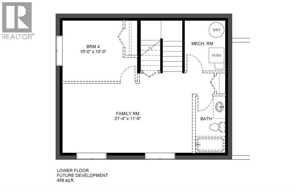
Be the first owner of this brand new Laebon Home situated in the sought after neighbourhood of Beacon Hill, just steps from multiple parks, green spaces, and Beacon Hill Elementary! This stylish Paxton two storey floor plan offers 1707 square feet above grade, a wide open living space, large windows, 2nd floor laundry, and a large bonus room! The main floor features vinyl plank flooring throughout, and a beautiful kitchen offering two toned raised cabinetry, stainless steel appliances, quartz countertops, a large island with eating bar, and a large walk in pantry. The adjacent eating area has sliding patio doors that lead out to the deck. Head upstairs to find two nicely sized kids/spare rooms that share a large 4 pce bath, and a large master bedroom with its own private 4 pce ensuite and huge walk in closet. Laundry is conveniently located near the bedrooms, and the large and bright bonus room gives you additional living space to enjoy. The attached garage is insulated, drywalled, and taped. If you need more space, the builder can complete the walkout basement development for you, and allowances for blinds and a washer & dryer can also be included to make this a fully move in ready home. Poured concrete front driveway, front sod, and rear topsoil are included in the price and will be completed as weather permits. GST is already included in the purchase price. Live worry free thanks to a full 1 year builder warranty and 10 year Alberta New Home Warranty. Taxes have yet to be assessed. This home is currently under construction and has an estimated completion date of mid February 2026. Photos and renderings are examples of a previous home built with the same floor plan, finishes and colours will not be identical to photos. (id:27476)

Property Highlights

MLS® Number
A2266344
Type
Single Family
Community Name
Beacon Hill
Ownership Type
Freehold
Land Size
470.3 m2|4,051 - 7,250 sqft
Parking Space Total
4

Building

Building Type
House
Storeys
2.00
Square Footage
1707 sqft
Bathrooms Total
3
Bedrooms Above Ground
3
Bedrooms Total
3
Amenities
Park, Playground, Schools, Shopping
Exterior Finish
Concrete, Stone, Vinyl siding
Fireplace Present
No
Basement Type
Full (Unfinished)
Basement Features
Building Heating Type
Forced air
Heating Fuel
Natural gas
Building Cooling Type
None

Location

Community Spotlight: Homes For sale in Your Neighborhood