4221 57 Street, Taber, Alberta T1G 0G8

Listed for:
$399,900
2 beds
1 baths
Listed 25 days ago
House for rent: 4221 57 Street, Taber, Alberta T1G 0G8

View all 16 photos

Learn more about this property
Listing provided by:
Parry Williams Real Estate Ltd.
MLS® number:
A2266615
Agent:
Edwyn Ellingson
*Indicates required field
Name is required
Email is required
Please enter a valid phone number (e.g., 416-111-1111).

About

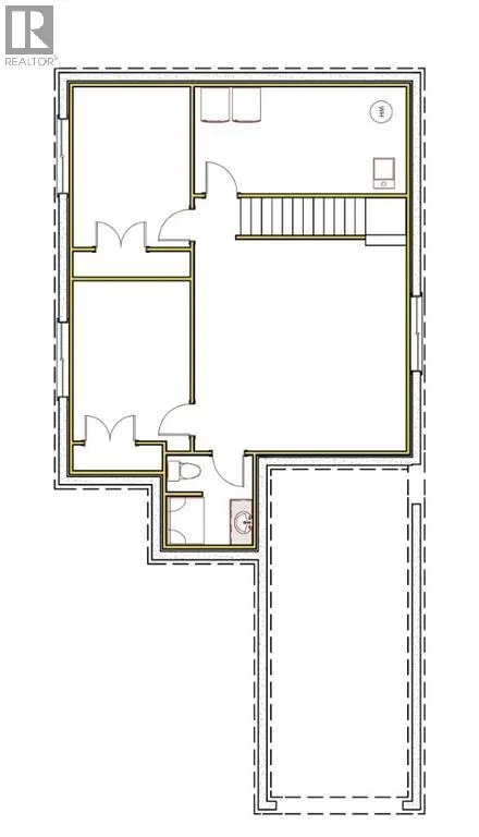
A great place to call home! Take advantage of the 4 year property tax incentive and NO CONDO FEES! You need to take a look at this well thought out, brand new home located in Sunrise Estates! Located within a 1 minute walk to groceries and shopping! Complete with 2 bedrooms and 1 bathroom on the main floor, there is room to grow with space for 2 additional bedrooms, another bathroom and a large family room in the basement. Premium flooring, quartz countertops, and James Hardie fiber cement siding are just a few of the upgrades in this home, plus it has a 13'x28' attached garage, plenty big enough to park a full size pickup! This home comes with a 10 year new home warranty, vinyl fencing and all stainless steel kitchen appliances. Call your REALTOR® to take a look today! (id:27476)

Property Highlights

MLS® Number
A2266615
Type
Single Family
Ownership Type
Freehold
Land Size
3724 sqft|0-4,050 sqft
Parking Space Total
2

Building

Building Type
House
Storeys
1.00
Square Footage
1001 sqft
Bathrooms Total
1
Bedrooms Above Ground
2
Bedrooms Total
2
Amenities
Schools, Shopping
Exterior Finish
See Remarks
Fireplace Present
No
Basement Type
Full (Unfinished)
Basement Features
Building Heating Type
Forced air
Heating Fuel
Building Cooling Type
See Remarks

Location