425 Meadowlark Way, Vulcan, Alberta T0L 2B0

Listed for:
$379,900
1 beds
2 baths
Listed 13 days ago
Row / Townhouse for rent: 425 Meadowlark Way, Vulcan, Alberta T0L 2B0

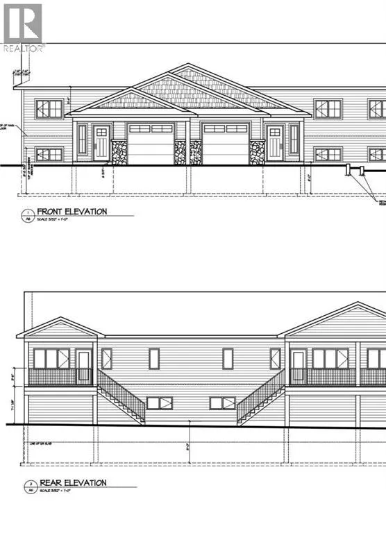
View all 18 photos

Learn more about this property
Listing provided by:
RE/MAX REAL ESTATE - LETHBRIDGE
MLS® number:
A2256909
Agent:
Whitney Maronda
*Indicates required field
Name is required
Email is required
Please enter a valid phone number (e.g., 416-111-1111).

About

The Villas at Meadowlark Way, built by RA West International, combine quality craftsmanship with modern design. With a reputation for building residential and commercial projects since 1998, this builder brings trusted experience to the community.This bi-level floor plan offers approximately 914 sq. ft. of well-planned living space. The main floor features a spacious primary bedroom complete with a walk-in closet and ensuite, vaulted ceilings that enhance natural light, and an additional half bathroom for guests. The open-concept living room is highlighted by a built-in electric fireplace and direct access to a covered deck finished with pressure-treated wood, aluminum railing, and a gas line rough-in for a future BBQ area—perfect for outdoor entertaining.Inside, you’ll find tasteful finishes including cream cabinetry, quartz countertops with a marble look, and whitewashed oak vinyl plank flooring. A stainless steel appliance package and stacking washer/dryer are included for added convenience.The attached single-car garage measures just over 14’ x 20’, is insulated and drywalled, and has a rough-in for a future heater.The exterior will be fully landscaped, front and back, with sod, underground sprinklers, trees, and shrubs. A south-facing concrete patio (approx. 9’ x 9’) with privacy shrubs adds extra curb appeal and provides a welcoming outdoor space. Condo fees are only $125/month, covering snow removal and lawn care, making maintenance simple and stress-free.Additional features include triple-pane windows, 40-year asphalt shingles, and a 40-gallon hot water tank. Buyers also have the option to add upgrades such as basement development, air conditioning, and a garage heater.Located in the charming town of Vulcan, this community offers small-town friendliness with big-city access. Amenities include an 18-hole golf course, newly renovated hospital, restaurants, shops, and more—all within just over an hour’s drive to both Calgary and Lethbridge.Don’t m iss your opportunity to own one of these thoughtfully designed new homes in a welcoming community. (id:27476)

Property Highlights

MLS® Number
A2256909
Type
Single Family
Maintenance Fee
125.00
Ownership Type
Bare Land Condo/Strata
Land Size
2400 sqft|0-4,050 sqft
Parking Space Total
2

Building

Building Type
Row / Townhouse
Square Footage
914 sqft
Bathrooms Total
2
Bedrooms Above Ground
1
Bedrooms Total
1
Amenities
Golf Course, Playground, Shopping
Exterior Finish
Vinyl siding
Fireplace Present
Yes
Basement Type
Full (Unfinished)
Basement Features
Building Heating Type
Forced air
Heating Fuel
Natural gas
Building Cooling Type
None

Location