238 Elm Avenue, 100 Mile House, British Columbia V0K 2E0

Listed for:
$325,000
3 beds
1 baths
Listed 17 days ago
Duplex for rent: 238 Elm Avenue, 100 Mile House, British Columbia V0K 2E0

View all 34 photos

About

Affordable, private, and conveniently located in town. This 3-bedroom half duplex offers a practical multi-level layout with several recent updates already completed. Enjoy west-facing exposure with warm afternoon sunshine and pleasant views across the neighbourhood from the main living areas. Tucked into a quiet setting yet within walking distance to shopping, services, and the elementary school. A great opportunity for first-time buyers, young families, or investors looking for budget-friendly living in 100 Mile House. (id:27476)

Property Highlights

MLS® Number
R3100324
Type
Single Family
Ownership Type
Freehold
Land Size
0.2 ac

Building

Building Type
Duplex
Storeys
1.00
Square Footage
1663 sqft
Bathrooms Total
1
Bedrooms Total
3
Exterior Finish
Vinyl siding
Fireplace Present
No
Basement Type
N/A (Finished)
Basement Features
Building Heating Type
Heating Fuel
Natural gas
Building Cooling Type

Utilities

Water
Municipal water

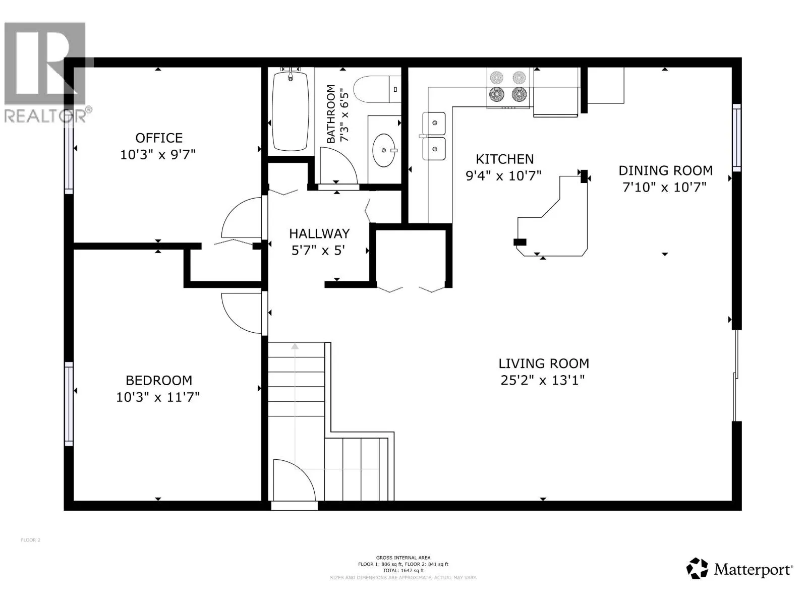
Room Layout

Family room
Basement
18 ft x 11 ft ,7 in
Bedroom 3
Basement
9 ft ,6 in x 11 ft
Laundry room
Basement
18 ft ,1 in x 5 ft ,7 in
Storage
Basement
11 ft ,7 in x 3 ft
Flex Space
Basement
15 ft ,9 in x 11 ft ,7 in
Living room
Main level
25 ft ,2 in x 13 ft ,1 in
Kitchen
Main level
9 ft ,4 in x 10 ft ,7 in
Eating area
Main level
7 ft ,1 in x 10 ft ,7 in
Bedroom 2
Main level
10 ft ,3 in x 9 ft ,7 in
Primary Bedroom
Main level
10 ft ,3 in x 11 ft ,7 in
Foyer
Main level
5 ft ,7 in x 5 ft

Location

Learn more about this property
Listing provided by:
REMAX 100
MLS® number:
R3100324
Agent:
Gisela Janzen
*Indicates required field
Name is required
Email is required
Please enter a valid phone number (e.g., 416-111-1111).