7249 Anglemont Way, Anglemont, British Columbia V0E 1M8

Listed for:
$1,149,000
4 beds
3 baths
Listed 57 days ago
House for rent: 7249 Anglemont Way, Anglemont, British Columbia V0E 1M8

View all 77 photos

Learn more about this property
Listing provided by:
Sotheby's International Realty Canada
MLS® number:
10358310
Agent:
Geoff Hall
*Indicates required field
Name is required
Email is required
Please enter a valid phone number (e.g., 416-111-1111).

About

Custom-built modern mountain chalet in Anglemont, set on nearly 1.5 private acres backing onto crown land for exceptional privacy & stunning Shuswap Lake views. No expense was spared in the design and construction of this 4-bedroom, 2.5-bath retreat, featuring soaring 14' floor-to-ceiling windows, a cozy gas fireplace, and a gourmet kitchen with pass-through to a spacious 1,200 sq.ft. exposed aggregate deck. A wet bar and games room make entertaining effortless, while the expansive deck is perfect for relaxing or hosting. The primary bedroom includes a walk-in closet & a spa-inspired ensuite with standalone tub, separate shower, and heated floors. The second bathroom features a large shower with dual rainfall showerheads. The basement boasts 10’ ceilings and concrete floors to keep things cool, with A/C providing year-round comfort. Lush irrigated lawn completes the outdoor space. A 600 sq.ft. garage offers plenty of space for your toys, and a versatile utility shed doubles as a private office or bunkhouse with large windows overlooking the lake. Currently operating as a successful Airbnb this home is Ideal for year-round living, blending luxury, privacy, and spectacular views with easy access to your favorite outdoor activities. Optional purchase of the neighbouring property allows for multi-generational living or additional privacy. (id:27476)

Property Highlights

MLS® Number
10358310
Type
Single Family
Ownership Type
Freehold
Land Size
1.32 ac|1 - 5 acres
Parking Space Total
8

Building

Building Type
House
Storeys
2.00
Square Footage
2526 sqft
Bathrooms Total
3
Bedrooms Total
4
Amenities
Golf Nearby
Exterior Finish
Other
Fireplace Present
Yes
Basement Type
Basement Features
Building Heating Type
In Floor Heating, Forced air, Heat Pump
Heating Fuel
Electric
Building Cooling Type
Central air conditioning

Utilities

Water
Municipal water
Utility Sewer
Septic tank

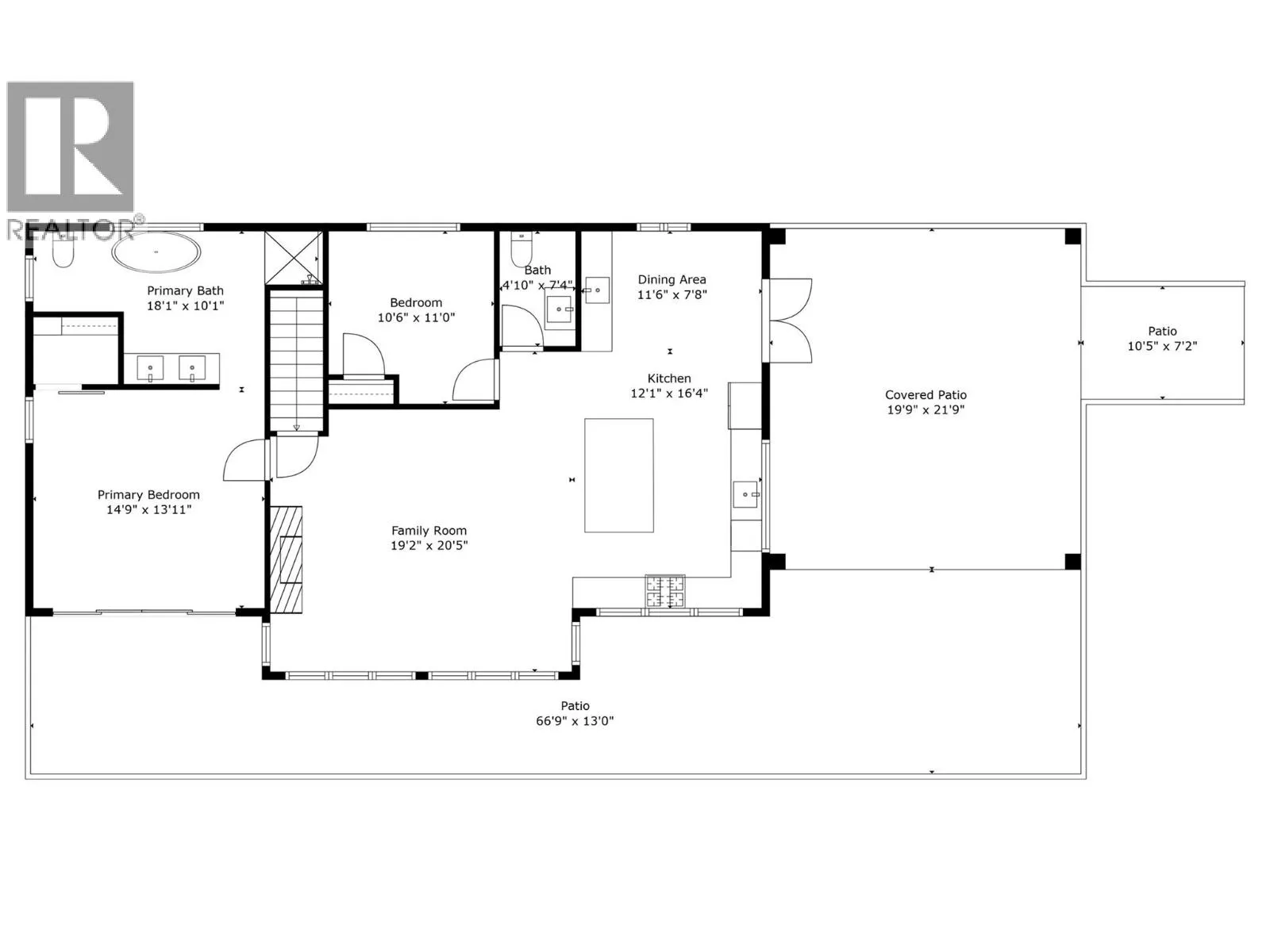
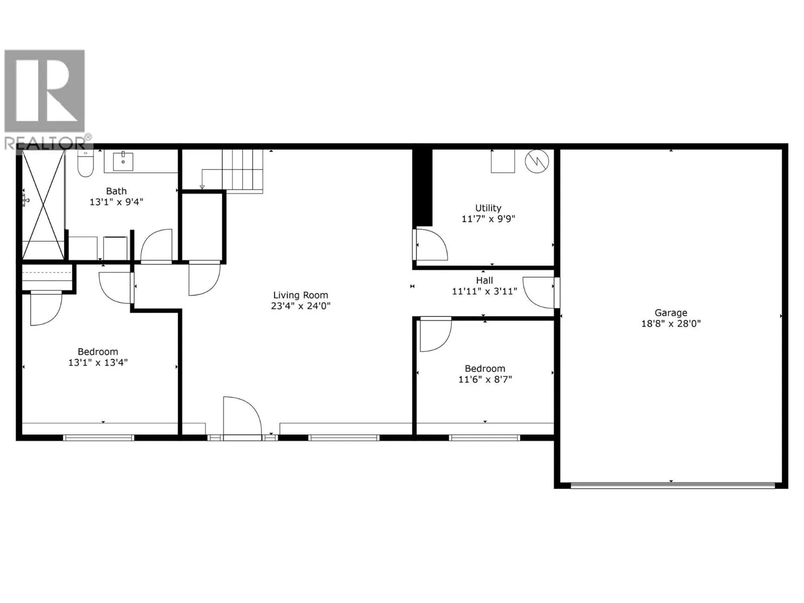
Room Layout

Other
Lower level
11'7'' x 9'9''
Other
Lower level
28'0'' x 18'8''
Bedroom
Lower level
11'6'' x 8'7''
Bedroom
Lower level
13'1'' x 13'4''
Full bathroom
Lower level
13'1'' x 9'4''
Family room
Lower level
14'0'' x 23'4''
Dining room
Main level
11'6'' x 7'8''
Bedroom
Main level
11'0'' x 10'6''
Partial bathroom
Main level
7'4'' x 4'10''
Full ensuite bathroom
Main level
18'1'' x 10'1''
Primary Bedroom
Main level
14'9'' x 13'11''
Kitchen
Main level
16'4'' x 12'1''
Living room
Main level
20'5'' x 19'2''

Location