4767 Grandview Flats N Road, Armstrong, British Columbia V4Y 0P8

Listed for:
$1,599,000
5 beds
4 baths
Listed 144 days ago
House for rent: 4767 Grandview Flats N Road, Armstrong, British Columbia V4Y 0P8

View all 84 photos

About

3.56 Acre property that really has it all. Horse set up and pastures, huge attached and detached shop areas, Suites, space and privacy with views. A beautiful home with a suite and then a separate suite in the detached Shop making for 3 separate living spaces. A incredible panoramic view of the lake & mountains off the back deck. Large home with modern updates and newer construction the main living area features a split floor plan with 3 bedrooms all with their own full en-suite bathrooms and large closets, massive covered deck & suited basement. Attached to the home is a triple garage, two standard doors and one 12' bay door into a huge separate shop attached to the house. If that still is not enough for you then let the 70X35 detached shop with suite be the icing on the cake. The shop includes 3 phase power, electric airplane hanger door. Classy power entrance gates lead you on to the property. With three large horse turnouts/pastures all with shelters and a newly built tack room you can keep your animals right out your back door. There is a coverall hay shed building for hay or machine storage. A great lawn area. The list goes on. It is as great as it looks. Call today for a private viewing (id:27476)

Property Highlights

MLS® Number
10364048
Type
Single Family
Ownership Type
Freehold
Land Size
3.56 ac|1 - 5 acres
Parking Space Total
10

Building

Building Type
House
Storeys
2.00
Square Footage
3634 sqft
Bathrooms Total
4
Bedrooms Total
5
Amenities
Recreation, Schools
Fireplace Present
No
Basement Type
Basement Features
Building Heating Type
Forced air, See remarks
Heating Fuel
Building Cooling Type
Central air conditioning

Utilities

Water
Municipal water
Utility Sewer
Septic tank

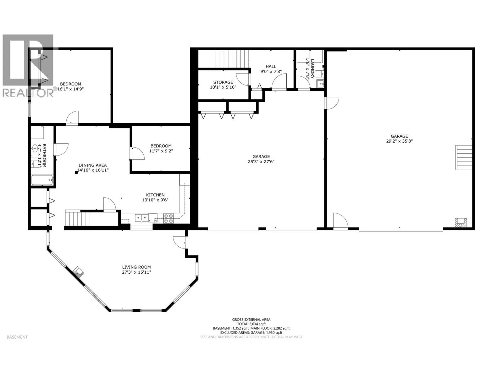
Room Layout

Other
Lower level
10'1'' x 5'10''
Laundry room
Lower level
5'8'' x 7'8''
Gym
Lower level
25'3'' x 27'6''
Other
Lower level
29'2'' x 35'8''
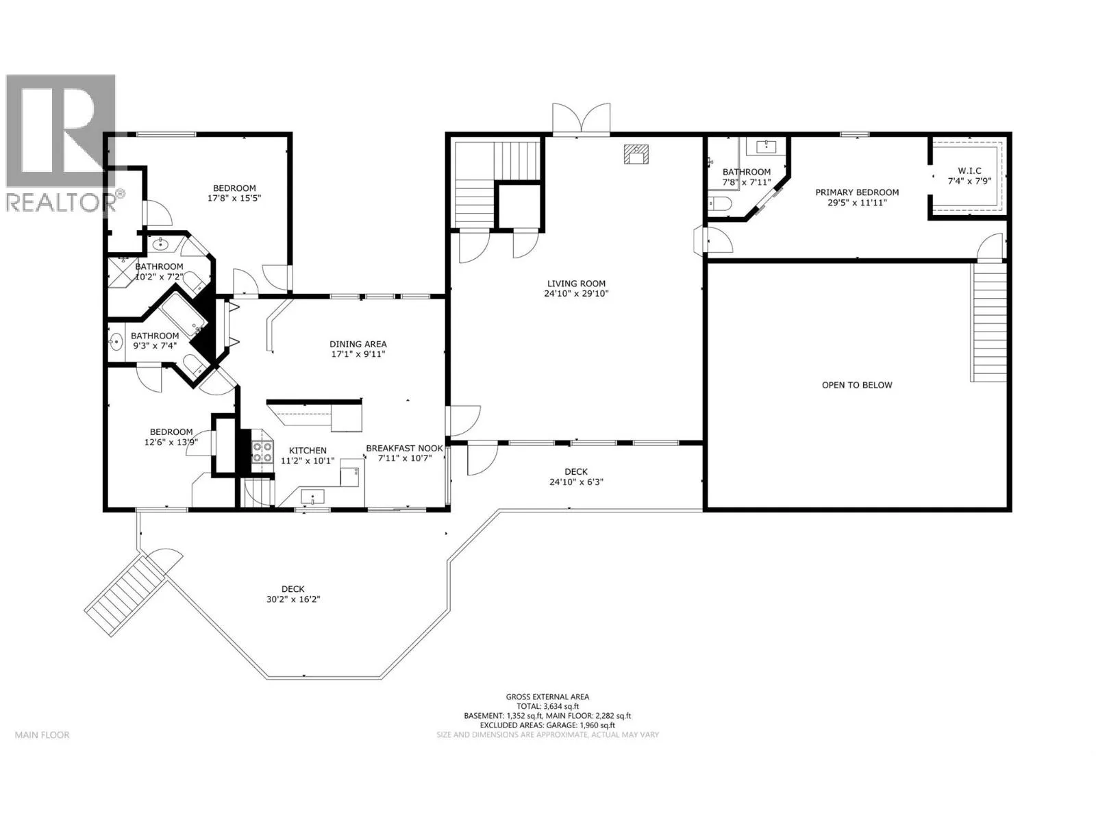
Other
Main level
30'2'' x 16'2''
Other
Main level
24'10'' x 6'3''
Other
Main level
7'4'' x 7'9''
3pc Ensuite bath
Main level
7'8'' x 7'11''
Primary Bedroom
Main level
29'5'' x 11'11''
Dining nook
Main level
7'11'' x 10'7''
Dining room
Main level
17'1'' x 9'11''
3pc Ensuite bath
Main level
10'2'' x 7'2''
Bedroom
Main level
17'8'' x 15'5''
4pc Ensuite bath
Main level
9'3'' x 7'4''
Bedroom
Main level
12'6'' x 13'9''
Living room
Main level
24'10'' x 29'10''
Kitchen
Main level
11'2'' x 10'1''
Bedroom
Additional Accommodation
11'7'' x 9'2''
Primary Bedroom
Additional Accommodation
16'1'' x 14'9''
Kitchen
Additional Accommodation
13'10'' x 9'6''
Dining room
Additional Accommodation
14'10'' x 16'11''
Full bathroom
Additional Accommodation
4'7'' x 12'1''
Living room
Additional Accommodation
27'3'' x 15'11''
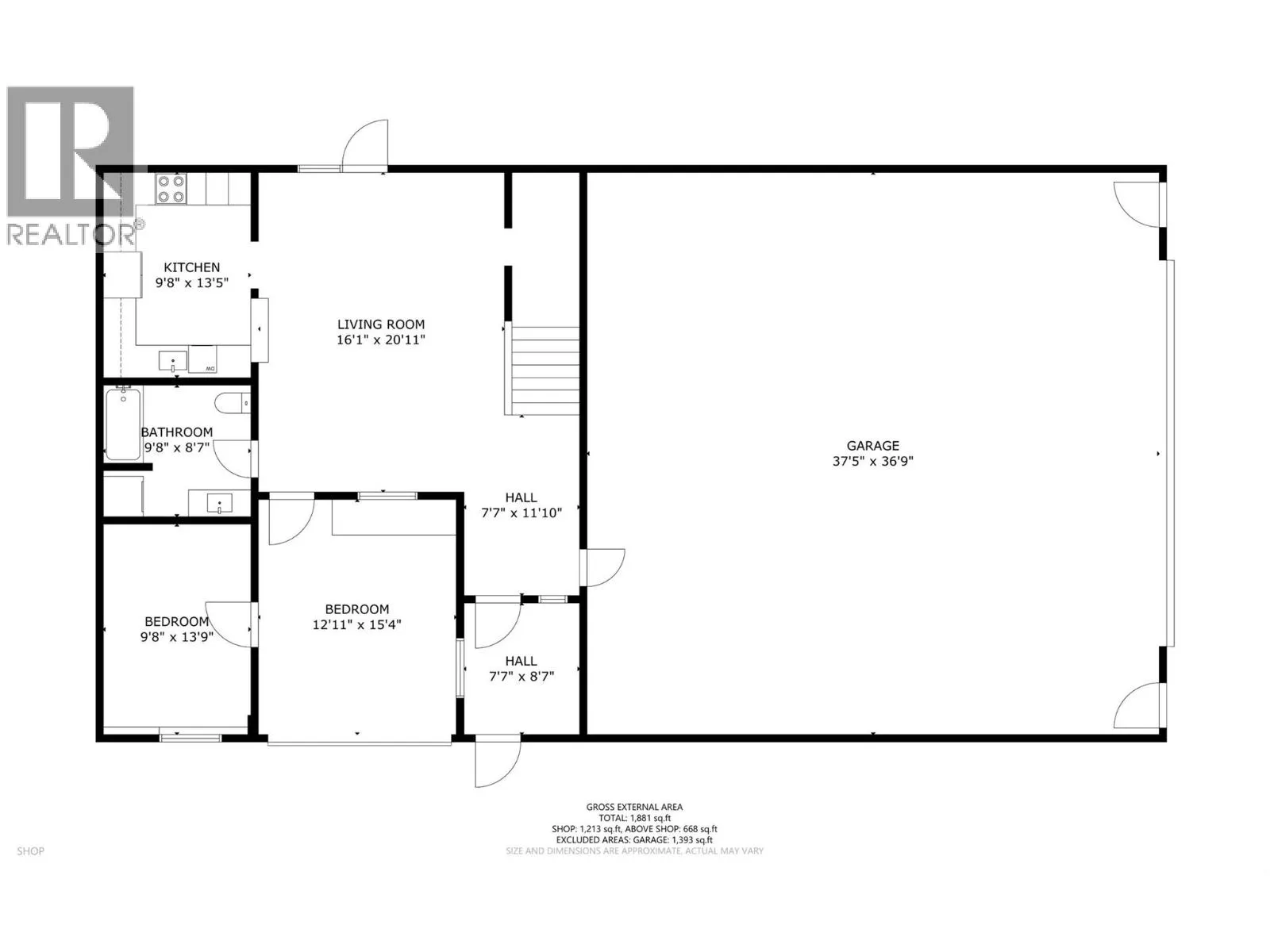
Other
Secondary Dwelling Unit
9'5'' x 15'5''
Primary Bedroom
Secondary Dwelling Unit
14'7'' x 20'10''
Other
Secondary Dwelling Unit
16'9'' x 4'
Other
Secondary Dwelling Unit
7'7'' x 11'10''
Other
Secondary Dwelling Unit
7'7'' x 8'7''
Bedroom
Secondary Dwelling Unit
12'11'' x 15'4''
Bedroom
Secondary Dwelling Unit
9'8'' x 13'9''
Full bathroom
Secondary Dwelling Unit
9'8'' x 8'7''
Kitchen
Secondary Dwelling Unit
9'8'' x 13'5''
Living room
Secondary Dwelling Unit
16'1'' x 20'11''
Other
Secondary Dwelling Unit
37'5'' x 36'9''

Location

Learn more about this property
Listing provided by:
Coldwell Banker Executives Realty
MLS® number:
10364048
Agent:
Russell Armstrong
*Indicates required field
Name is required
Email is required
Please enter a valid phone number (e.g., 416-111-1111).