2521 Panoramic Way, Blind Bay, British Columbia V0E 1H0

Listed for:
$1,099,000
4 beds
3 baths
Listed 136 days ago
House for rent: 2521 Panoramic Way, Blind Bay, British Columbia V0E 1H0

View all 64 photos

Learn more about this property
Listing provided by:
Fair Realty (Sorrento)
MLS® number:
10360323
Agent:
Shalon Clarke
*Indicates required field
Name is required
Email is required
Please enter a valid phone number (e.g., 416-111-1111).

About

2521 Panoramic Way. As the name of this street suggests, the views from this home are indeed panoramic, sweeping from the lake and mountains to the valley. This modern custom 4-bed, 3-bath home is light, bright, and very versatile for families and more. Perfectly situated on this 0.32-acre lot, it captures both privacy and morning sun on the east balcony. With many windows, this home doesn’t even need artwork—every window is a wonderful landscape of views! The backyard incorporates something for everyone, with synthetic grass, a real grass area, a garden shed, a gardening area, and a newly fenced yard. There is plenty of all-day sun to enjoy the Shuswap lifestyle. Inside, this house features incredible details like a large walk-in pantry, a coffee bar, and a wine fridge. The oversized garage includes a great additional storage area for smaller toys, and the theatre room is perfect for movie nights. The main bedroom ensuite will make you feel like every day is a spa day, plus it offers direct access to the east balcony—where you can step into the morning sun when you wake up. The main floor features a gas fireplace as well as an outside gas fireplace on the balcony to really enjoy the outdoor living and entertaining areas. This home is a fall-in-love-at-first-sight. Check out the 3D tour and videos. Measurements taken by Matterport. (id:27476)

Property Highlights

MLS® Number
10360323
Type
Single Family
Ownership Type
Freehold
Land Size
0.32 ac|under 1 acre
Parking Space Total
3

Building

Building Type
House
Storeys
2.00
Square Footage
3248 sqft
Bathrooms Total
3
Bedrooms Total
4
Amenities
Golf Nearby, Recreation, Shopping
Exterior Finish
Other
Fireplace Present
Yes
Basement Type
Basement Features
Building Heating Type
Forced air
Heating Fuel
Building Cooling Type
Central air conditioning

Utilities

Water
Community Water User's Utility
Utility Sewer
Municipal sewage system

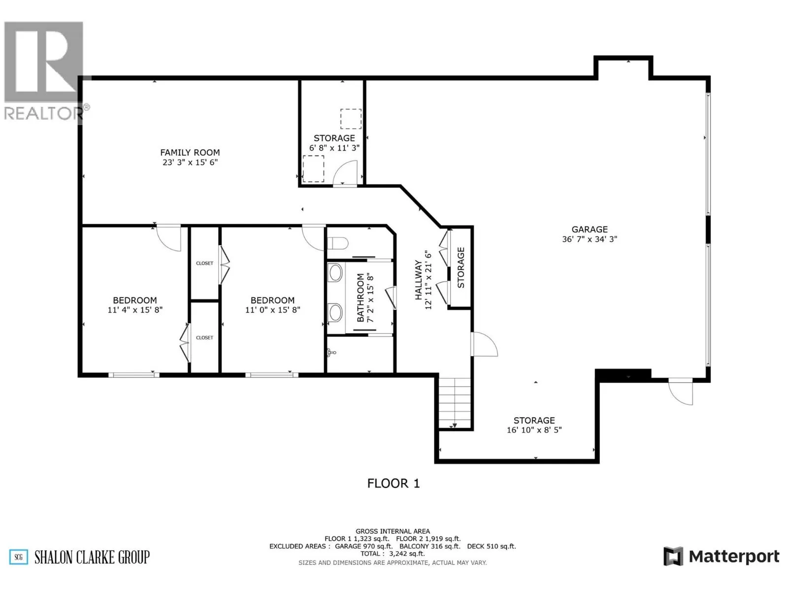
Room Layout

Other
Lower level
36'7'' x 34'3''
Storage
Lower level
16'10'' x 8'5''
Utility room
Lower level
6'8'' x 11'3''
Family room
Lower level
23'3'' x 15'6''
Bedroom
Lower level
11'4'' x 15'8''
Bedroom
Lower level
11'0'' x 15'8''
Full bathroom
Lower level
7'2'' x 15'8''
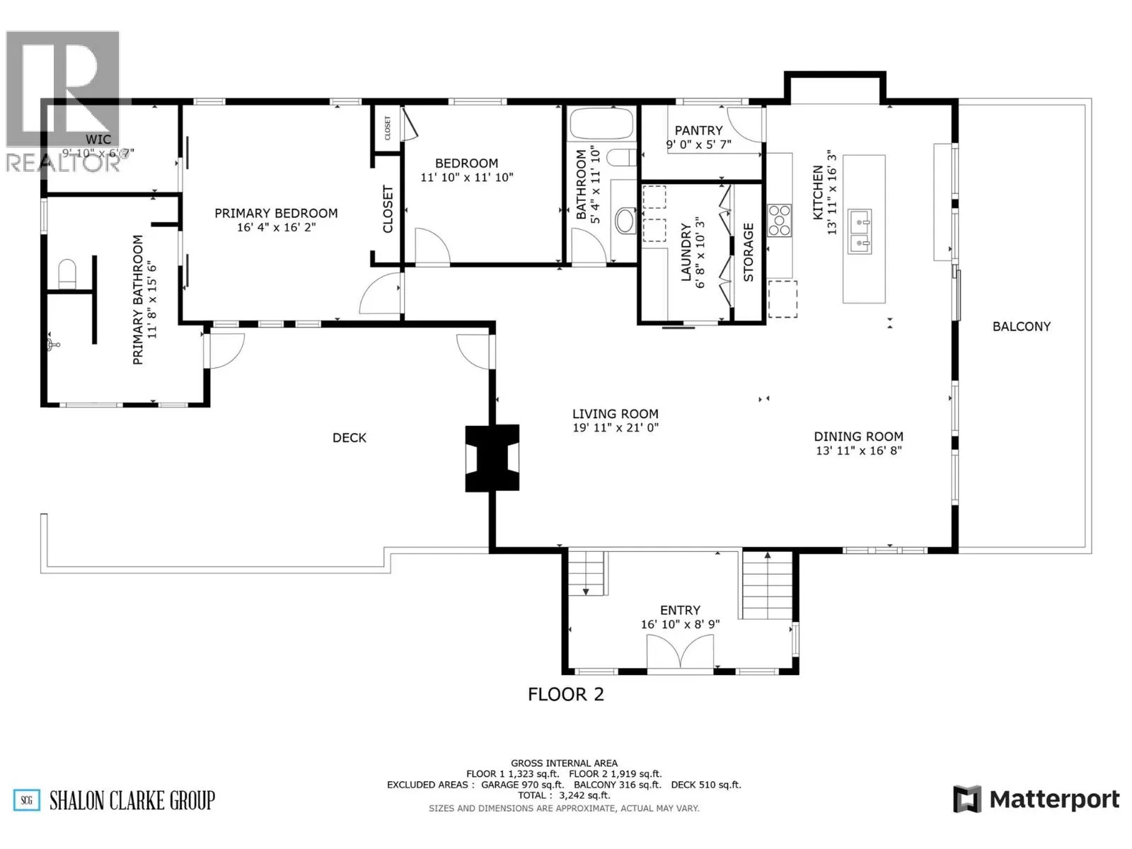
Laundry room
Main level
10'3'' x 6'8''
Foyer
Main level
16'10'' x 8'9''
Full ensuite bathroom
Main level
11'8'' x 15'6''
Other
Main level
9'10'' x 6'7''
Primary Bedroom
Main level
16'4'' x 16'2''
Bedroom
Main level
11'10'' x 11'10''
4pc Bathroom
Main level
5'4'' x 11'10''
Pantry
Main level
9'0'' x 5'7''
Kitchen
Main level
13'11'' x 16'3''
Dining room
Main level
13'11'' x 16'8''
Living room
Main level
19'11'' x 21'0''

Location