8233 Government Road, Burnaby, British Columbia V5A 2E4

Listed for:
$3,990,000
7 beds
9 baths
Listed 138 days ago
House for rent: 8233 Government Road, Burnaby, British Columbia V5A 2E4

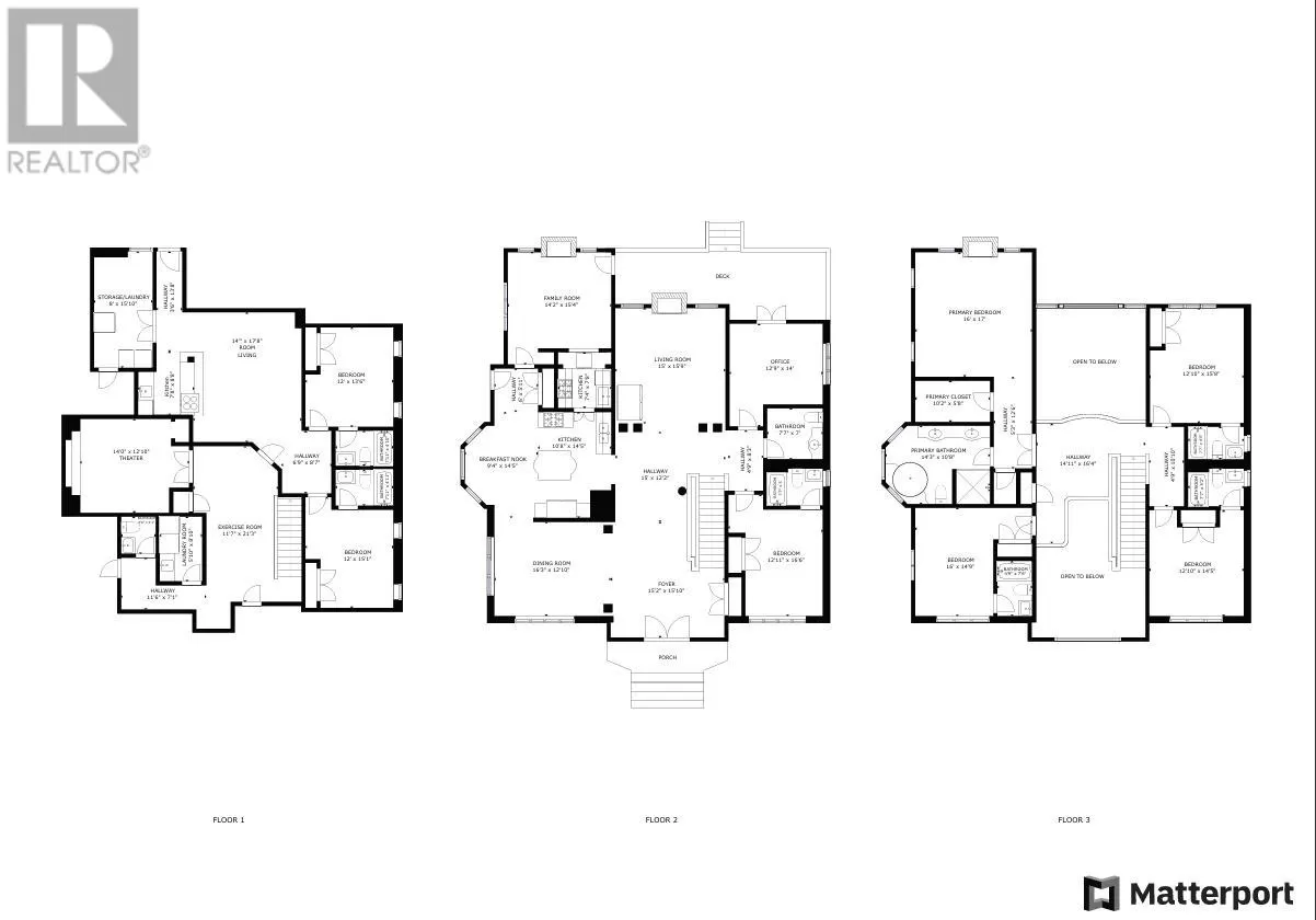
View all 40 photos

Learn more about this property
Listing provided by:
RE/MAX Crest Realty
MLS® number:
R3018877
Agent:
Glen Hao
*Indicates required field
Name is required
Email is required
Please enter a valid phone number (e.g., 416-111-1111).

About

A breathtaking signature residence, meticulously designed and crafted by Jenia Design. This architectural masterpiece showcases premium European craftsmanship and the finest materials throughout. Welcoming you is a stunning, hand-crafted white oak front door-measuring 14 feet high and 7 feet wide-book-matched in a three-layer design. Step inside to a grand 20-foot entry hall adorned with detailed relief motifs on every wall. The space is finished with tempered porcelain tile flooring that reflects the ornamental coffered ceiling above, highlighted with 24-carat gold leaf accents. Pass through marbleized, hand-crafted columns and pilasters into a soaring 20-foot living room featuring an elegant stone fireplace. And this is only the beginning.Call now to arrange your private viewing. (id:27476)

Property Highlights

MLS® Number
R3018877
Type
Single Family
Ownership Type
Freehold
Land Size
10500 sqft
Parking Space Total
6

Building

Building Type
House
Square Footage
5865 sqft
Bathrooms Total
9
Bedrooms Total
7
Amenities
Shopping
Fireplace Present
Yes
Basement Type
Full (Unknown)
Basement Features
Unknown
Building Heating Type
Baseboard heaters
Heating Fuel
Building Cooling Type
Air Conditioned

Location

Street Spotlight - For sale