5623 Woodsworth Street, Burnaby, British Columbia V5G 3P6

Listed for:
$1,498,000
4 beds
5 baths
Listed 146 days ago
Duplex for rent: 5623 Woodsworth Street, Burnaby, British Columbia V5G 3P6

View all 23 photos

About

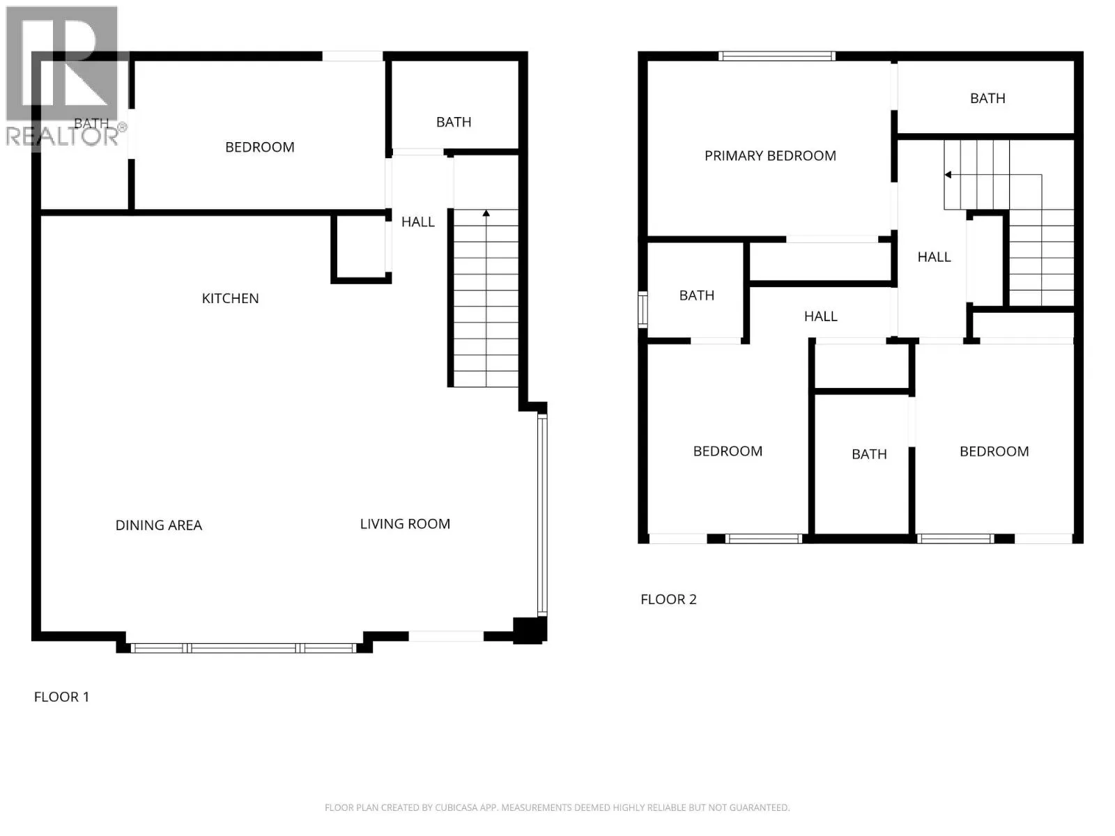
Brand New 2-level Side-by-Side Duplex with 4 bedrooms and 4.5 bathrooms and a total of 1,619 square feet. Features hot-water radiant heating, A/C system, tile and engineered wood floors throughout. There´s also a lock-off studio/nanny´s-quarters-great for rental income or extended family. Centrally located in Burnaby, close to recreation centres, parks (Deer Lake, Burnaby Lake), shopping (Metrotown, Brentwood), and good schools including BCIT & Simon Fraser. All measurements are approx. and must be verified. (id:27476)

Property Highlights

MLS® Number
R3050628
Type
Single Family
Maintenance Fee
0.00
Ownership Type
Strata
Land Size
5712 sqft
Parking Space Total
1

Building

Building Type
Duplex
Square Footage
1619 sqft
Bathrooms Total
5
Bedrooms Total
4
Fireplace Present
No
Basement Type
Full (Unknown)
Basement Features
Unknown
Building Heating Type
Radiant heat
Heating Fuel
Building Cooling Type
Air Conditioned

Location

Learn more about this property
Listing provided by:
RE/MAX Real Estate Services
MLS® number:
R3050628
Agent:
Fred Choy
*Indicates required field
Name is required
Email is required
Please enter a valid phone number (e.g., 416-111-1111).

Street Spotlight - For sale