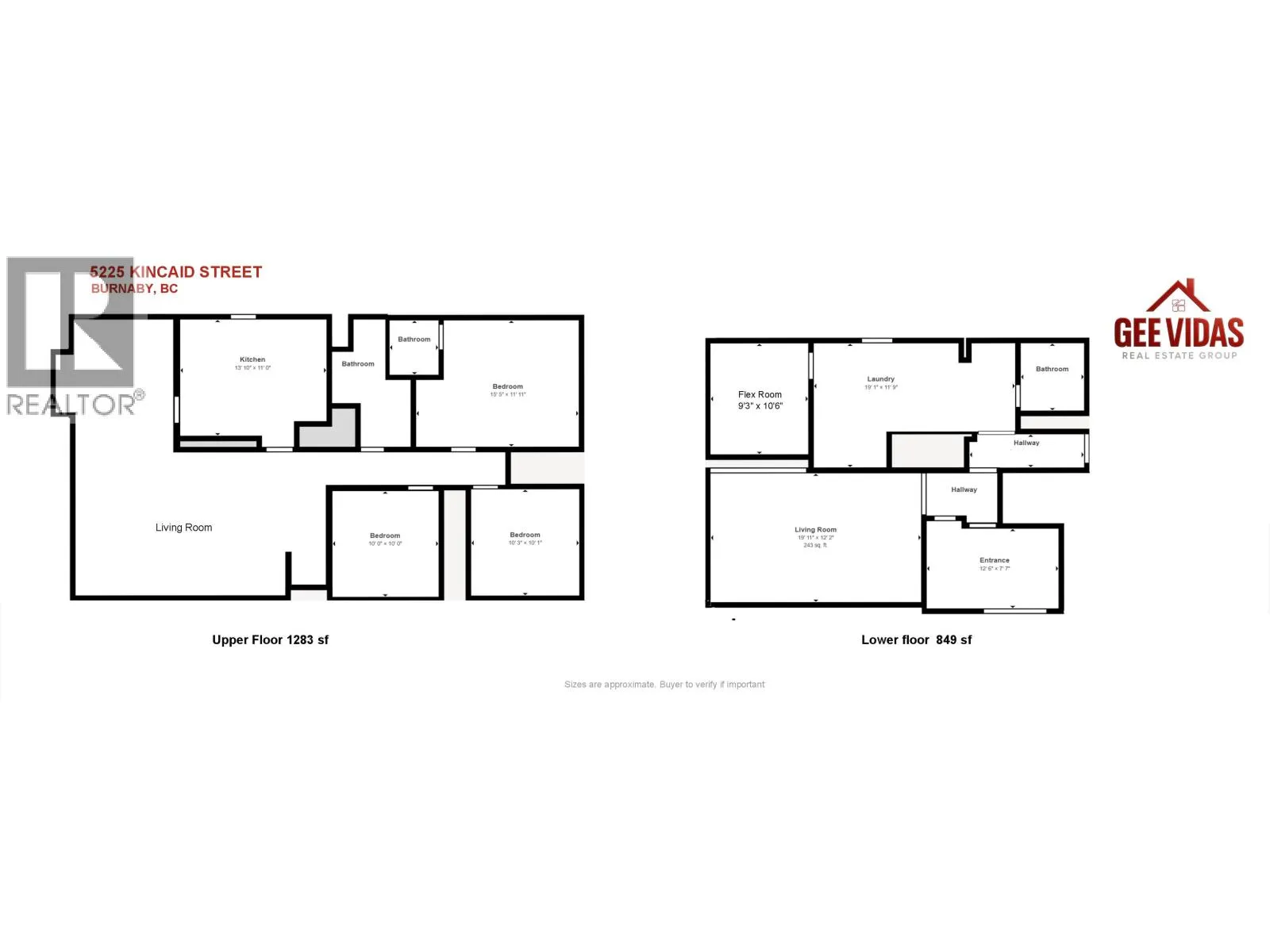
5225 Kincaid Street, Burnaby, British Columbia V5G 1W1

Listed for:
$1,988,000
3 beds
3 baths
Listed 40 days ago
House for rent: 5225 Kincaid Street, Burnaby, British Columbia V5G 1W1

View all 37 photos

Learn more about this property
Listing provided by:
Stonehaus Realty Corp.
MLS® number:
R3056850
Agent:
Sophia Gee
*Indicates required field
Name is required
Email is required
Please enter a valid phone number (e.g., 416-111-1111).

About

The perfect family home in one of Burnaby's finest neighborhoods, Deer Lake Place. The two storey home is in excellent condition with nicely updated kitchen that walks out to your sundeck that overlooks your large park like backyard. Enjoy quiet neighborhood walks with quick access to transit & BCIT plus 5 mins to metrotown, 7 mins to Brentwood and easy highway access. Book your private viewing today. (id:27476)

Property Highlights

MLS® Number
R3056850
Type
Single Family
Ownership Type
Freehold
Land Size
7680 sqft
Parking Space Total
5

Building

Building Type
House
Square Footage
2132 sqft
Bathrooms Total
3
Bedrooms Total
3
Amenities
Laundry - In Suite
Fireplace Present
Yes
Basement Type
Unknown (Finished)
Basement Features
Unknown
Building Heating Type
Forced air
Heating Fuel
Natural gas
Building Cooling Type

Location