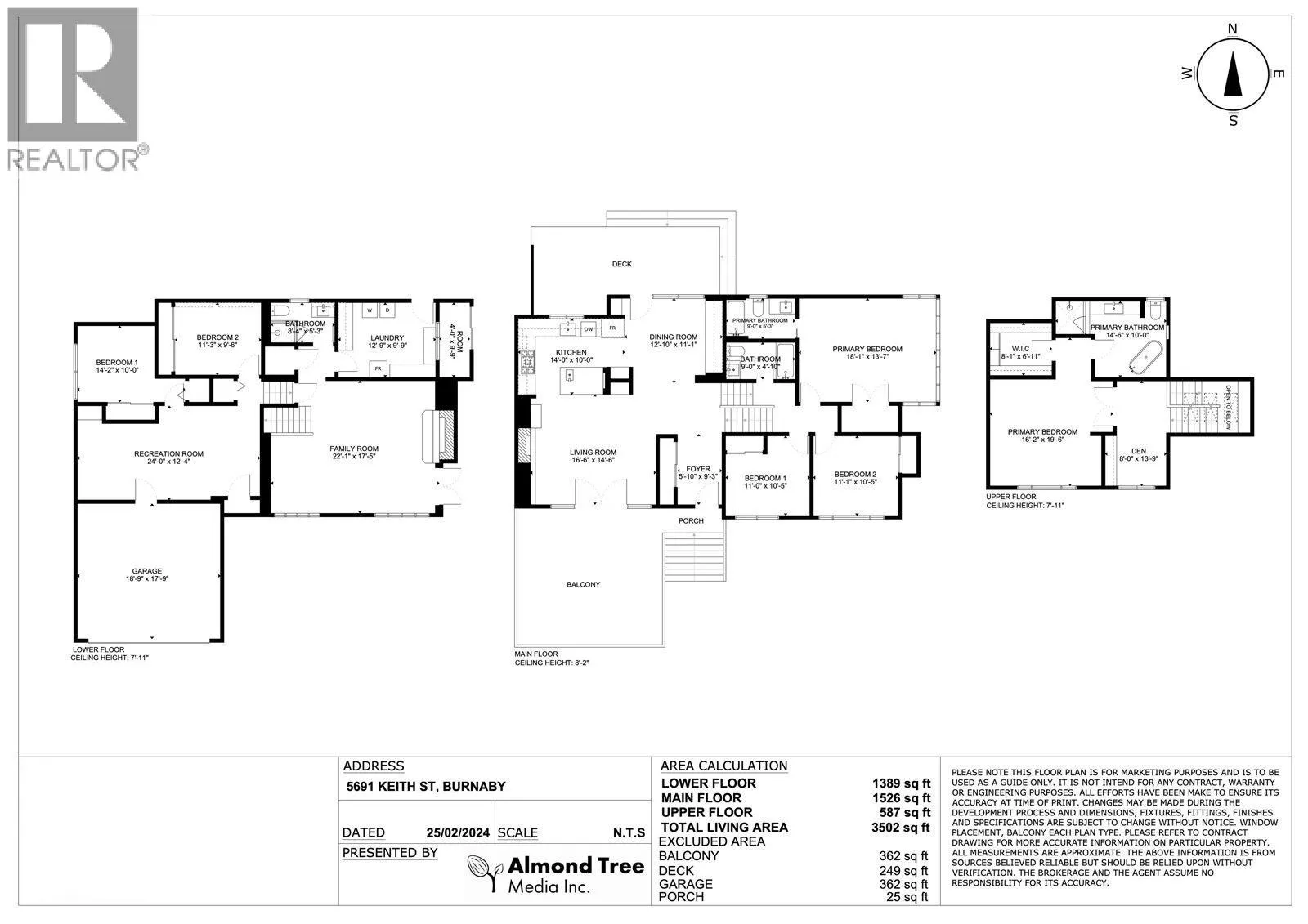
5691 Keith Street, Burnaby, British Columbia V5J 3C4

Listed for:
$2,399,000
6 beds
4 baths
Listed 33 days ago
House for rent: 5691 Keith Street, Burnaby, British Columbia V5J 3C4

View all 37 photos

Learn more about this property
Listing provided by:
eXp Realty
MLS® number:
R3058701
Agent:
Denise Mai
*Indicates required field
Name is required
Email is required
Please enter a valid phone number (e.g., 416-111-1111).

About

MOTIVATED SELLERS, TRY YOUR OFFER! ORIGINAL OWNER, built with quality= Beautifully renovated 6-bed, 4-bath home on a sunny SE corner lot beside Ravine Park in Burnaby´s South Slope. This rare split-level gem offers over 3,000 sq ft-ideal for growing or multi-generational families. The sleek kitchen features custom built-ins, Miele appliances, and overlooks a private backyard oasis with a sparkling pool. Two spacious primary bedrooms include ensuites and walk-in closets, perfect for extended family or aging parents. The lower level boasts a large rec room, family room, and separate entry-easily suited for rental or guests. Bonus: 2-car garage with EV charger, ample storage, and a quiet, family-friendly setting. A touch of TLC makes this your forever home! (id:27476)

Property Highlights

MLS® Number
R3058701
Type
Single Family
Ownership Type
Freehold
Land Size
8743.31 sqft
Parking Space Total
4

Building

Building Type
House
Square Footage
3502 sqft
Bathrooms Total
4
Bedrooms Total
6
Amenities
Laundry - In Suite Shopping
Fireplace Present
Yes
Basement Type
Crawl space (Finished)
Basement Features
Unknown
Building Heating Type
Forced air
Heating Fuel
Building Cooling Type
Air Conditioned

Location