130 5118 N Fraser Way, Burnaby, British Columbia V5J 0H1

Listed for:
$20
0 beds
0 baths
Listed 154 days ago
130 5118 N Fraser Way, Burnaby, British Columbia V5J 0H1

View all 2 photos

About

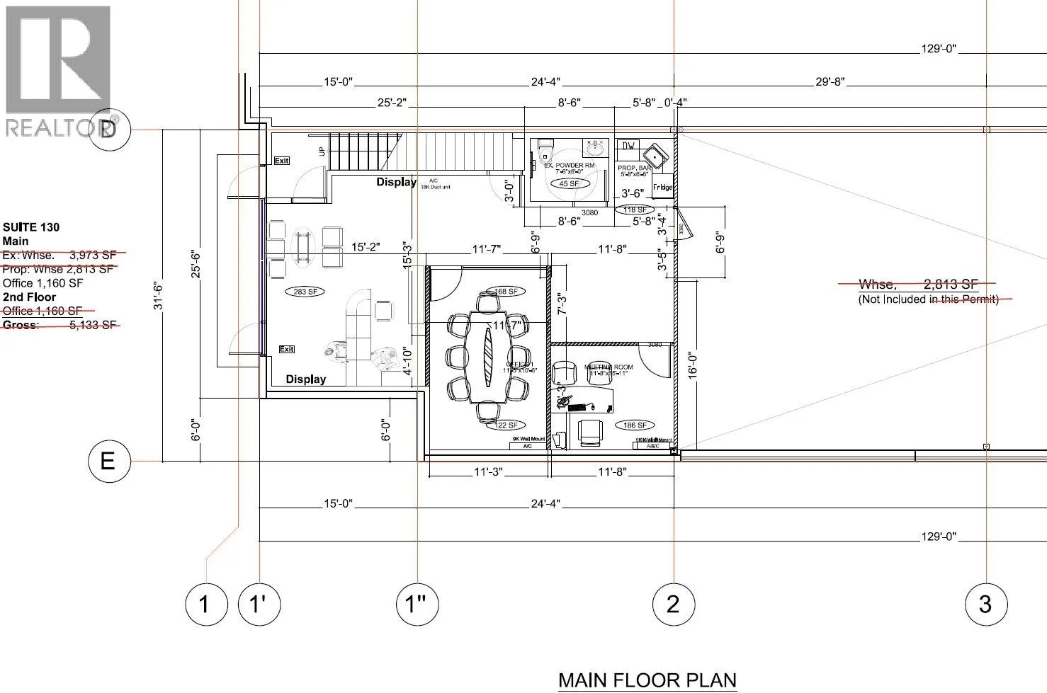
Prime 1,160 sq. ft. corner office space in Glenlyon Centre on North Fraser Way, Burnaby's premier business park. This modern ground floor end unit features a front reception area, a meeting room, a small office, a coffee bar with sink & microwave/fridge, and a self-contained washroom. Excellent access to Marine Way, Richmond Connector, Trans-Canada Highway, South Fraser Perimeter Road, Downtown Vancouver, and YVR. Two parking stalls and shared visitor parking included. Contact listing agents for details or to arrange a viewing. (id:27476)

Property Highlights

MLS® Number
C8073770
Type
Office
Maintenance Fee
1000.00

Building

Fireplace Present
No
Basement Type
Basement Features
Building Heating Type
Heating Fuel
Building Cooling Type

Location

Learn more about this property
Listing provided by:
Grand Central Realty
MLS® number:
C8073770
Agent:
Gary Gao
*Indicates required field
Name is required
Email is required
Please enter a valid phone number (e.g., 416-111-1111).