1 7510 Curragh Avenue, Burnaby, British Columbia V5J 4W2

Listed for:
$1,799,000
5 beds
4 baths
Listed 127 days ago
Duplex for rent: 1 7510 Curragh Avenue, Burnaby, British Columbia V5J 4W2

View all 6 photos

About

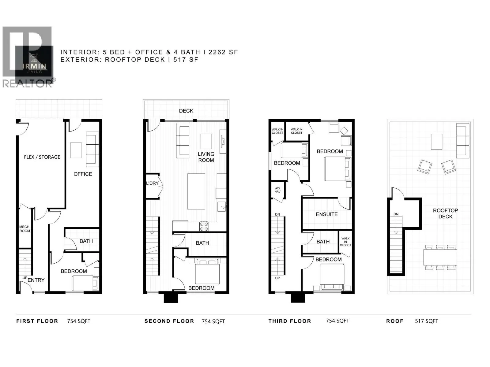
BUILT FOR A BETTER LIVING! A refined presale duplex residence offering thoughtful design, energy-graded performance, and exceptional flexibility in a quiet Metrotown neighborhood. Intelligent spatial planning creates private, comfortable areas for every family member, complemented by air conditioning and premium appliances. A distinctive rooftop patio enhances the home with additional outdoor living, perfect for relaxation or entertaining. The ground level provides valuable opportunities for limited customization during presale, allowing you to tailor or customize the space to your needs. Walking distance to skytrain, shopping, restaurants, schools. A rare chance to own a well-crafted new home close to parks, schools, and daily amenities. *Future address will be 6118 Irmin St. Burnaby. (id:27476)

Property Highlights

MLS® Number
R3070135
Type
Single Family
Maintenance Fee
0.00
Ownership Type
Strata
Parking Space Total
1

Building

Building Type
Duplex
Square Footage
2262 sqft
Bathrooms Total
4
Bedrooms Total
5
Amenities
Laundry - In Suite Recreation, Shopping
Fireplace Present
No
Basement Type
Basement Features
Building Heating Type
Heat Pump
Heating Fuel
Building Cooling Type
Air Conditioned

Location

Learn more about this property
Listing provided by:
Nu Stream Realty Inc.
MLS® number:
R3070135
Agent:
Tracy Niu
*Indicates required field
Name is required
Email is required
Please enter a valid phone number (e.g., 416-111-1111).