7305 Coronado Drive, Burnaby, British Columbia V5A 1P9

Listed for:
$999,000
3 beds
3 baths
Listed 25 days ago
Row / Townhouse for rent: 7305 Coronado Drive, Burnaby, British Columbia V5A 1P9

View all 33 photos

About

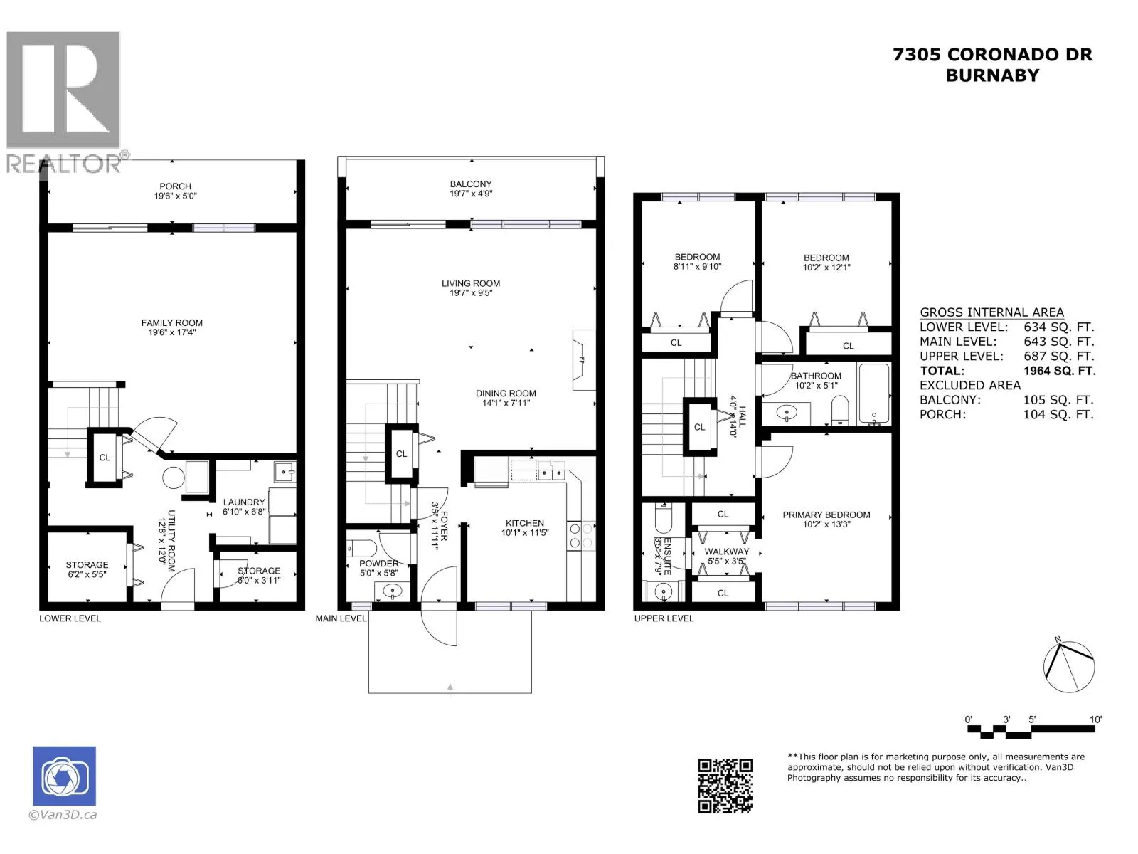
Well maintained 1964 sqft 3 level 3 bedroom 3 bathroom townhouse at the nice quiet Coronado Drive, Burnaby North, one side is golf club, the other side is Montecito park and Montecito Elementary. Main floor has hard oak wood floor, living, dining and Kitchen, a big balcony facing the green belt. the upper floor has 3 beds, lower floor has a huge family room and a door to the garage directly. Double layered newer windows through whole house changed in 2018, brand new washer and cook range, dish washer is 2 years old. Newer kitchen cabinet doors, Fridge and counter top. Moving condition. Bus 144 directly to SFU, close to shopping. Must see! OPEN HOUSE Sat (Feb 14) at 2-4pm! (id:27476)

Property Highlights

MLS® Number
R3071524
Type
Single Family
Maintenance Fee
521.87
Ownership Type
Strata
Parking Space Total
1

Building

Building Type
Row / Townhouse
Square Footage
1964 sqft
Bathrooms Total
3
Bedrooms Total
3
Fireplace Present
No
Basement Type
Full (Unknown)
Basement Features
Unknown
Building Heating Type
Forced air
Heating Fuel
Natural gas
Building Cooling Type

Location

Learn more about this property
Listing provided by:
LeHomes Realty Premier
MLS® number:
R3071524
Agent:
Tracy Hu
*Indicates required field
Name is required
Email is required
Please enter a valid phone number (e.g., 416-111-1111).