5001 3809 Evergreen Place, Burnaby, British Columbia V3J 0M1

Listed for:
$1,198,000
3 beds
3 baths
Listed 151 days ago
Apartment for rent: 5001 3809 Evergreen Place, Burnaby, British Columbia V3J 0M1

View all 40 photos

About

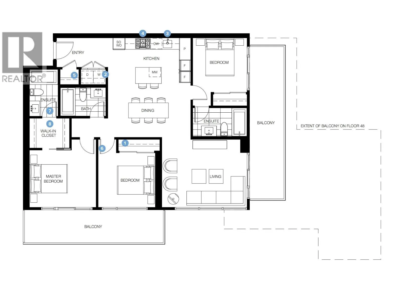
Welcome to Tower ONE at The City of Lougheed! This true 3-bedroom, 3-bath corner home sits high on the 50th floor, offering breathtaking southeast views of the Fraser River, golf course, and mountains. Every bedroom is full-sized with windows and closets, and two are ensuites-an exceptionally rare layout ensuring comfort and privacy. Each room opens onto oversized balconies, perfect for entertaining or relaxing above the skyline. Inside, enjoy a bright open layout, Bosch appliances, and elegant modern design. Residents benefit from over 18,000 sq.ft.. of amenities, concierge service, and direct access to shopping, dining, and SkyTrain. Units 5001 & 5002 can also be purchased together, Perfect for multifamily living, creating a spacious 5-bedroom, 5-bathroom residence with over 2,000 sq.ft.. of living space. The connected balconies provide a seamless link between the two homes, offering both privacy and convenience. (id:27476)

Property Highlights

MLS® Number
R3074094
Type
Single Family
Maintenance Fee
705.24
Ownership Type
Strata

Building

Building Type
Apartment
Square Footage
1172 sqft
Bathrooms Total
3
Bedrooms Total
3
Amenities
Exercise Centre, Guest Suite, Laundry - In Suite Recreation, Shopping
Fireplace Present
No
Basement Type
Basement Features
Building Heating Type
Heat Pump
Heating Fuel
Building Cooling Type
Air Conditioned

Location

Learn more about this property
Listing provided by:
RE/MAX Masters Realty
MLS® number:
R3074094
Agent:
Howie Qu
*Indicates required field
Name is required
Email is required
Please enter a valid phone number (e.g., 416-111-1111).

Street Spotlight - For sale