514 9228 Slopes Mews, Burnaby, British Columbia V5A 0E9

Listed for:
$599,880
2 beds
2 baths
Listed 20 days ago
Apartment for rent: 514 9228 Slopes Mews, Burnaby, British Columbia V5A 0E9

View all 35 photos

About

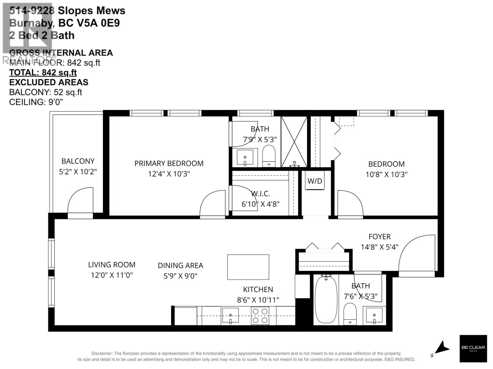
SFU Living! North east facing 841 Sq ft 2 Bed/2 Bath CORNER suite with MOUNTAIN VIEWS! Stainless steel appliances & laminate floors. Radiant in floor heating included in your strata fee! 1 parking & storage. Steps to Nesters Market, Starbucks, BC Liquor Store, A&W, Chopped Leaf and so many more trendy restaurants & shops. Right in the heart of Burnaby finest parks and trails; Barnet Park, Burnaby Mountain/Trans Canada/Velodrome Trails, Mountain Air Bike Skills Park & Bby Mtn Golf Course/Driving Range. Close to SFU Childcare Society, an amazing daycare for families with little ones, great for investors for rental potential and perfect for students or professors attending SFU. School catchments are University Highlands Elementary (K-7) & Bby Mountain Secondary (8-12). (id:27476)

Property Highlights

MLS® Number
R3077123
Type
Single Family
Maintenance Fee
529.84
Ownership Type
Leasehold Condo/Strata
Parking Space Total
1

Building

Building Type
Apartment
Square Footage
842 sqft
Bathrooms Total
2
Bedrooms Total
2
Amenities
Laundry - In Suite Recreation, Shopping
Fireplace Present
No
Basement Type
Basement Features
Building Heating Type
Radiant heat
Heating Fuel
Building Cooling Type

Location

Learn more about this property
Listing provided by:
RE/MAX Crest Realty
MLS® number:
R3077123
Agent:
Brandon Gee-moore
*Indicates required field
Name is required
Email is required
Please enter a valid phone number (e.g., 416-111-1111).

Street Spotlight - For sale