7724 Goodlad Street, Burnaby, British Columbia V5E 2H6

Listed for:
$1,500,000
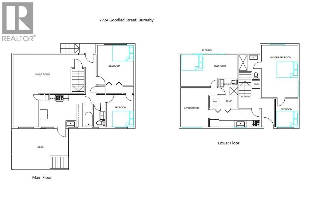
5 beds
3 baths
Listed 88 days ago
House for rent: 7724 Goodlad Street, Burnaby, British Columbia V5E 2H6

View all 40 photos

About

Nice neighbourhood and convinent location with walking distance to the Bus stop, less than 10 minutes drive to Burnaby lake, Deer lake, Metrotown and #1 high way. Possible to build 6-plex as per zoning bylaw. Renovated with legal addition. (id:27476)

Property Highlights

MLS® Number
R3091237
Type
Single Family
Ownership Type
Freehold
Land Size
6132 sqft
Parking Space Total
3

Building

Building Type
House
Square Footage
1950 sqft
Bathrooms Total
3
Bedrooms Total
5
Fireplace Present
No
Basement Type
Full (Unknown)
Basement Features
Unknown
Building Heating Type
Baseboard heaters, Forced air
Heating Fuel
Building Cooling Type

Location

Learn more about this property
Listing provided by:
Interlink Realty
MLS® number:
R3091237
Agent:
Victor Lai
*Indicates required field
Name is required
Email is required
Please enter a valid phone number (e.g., 416-111-1111).