8233 Government Road, Burnaby, British Columbia V5A 2E4

Listed for:
$3,980,000
7 beds
8 baths
Listed 5 days ago
House for rent: 8233 Government Road, Burnaby, British Columbia V5A 2E4

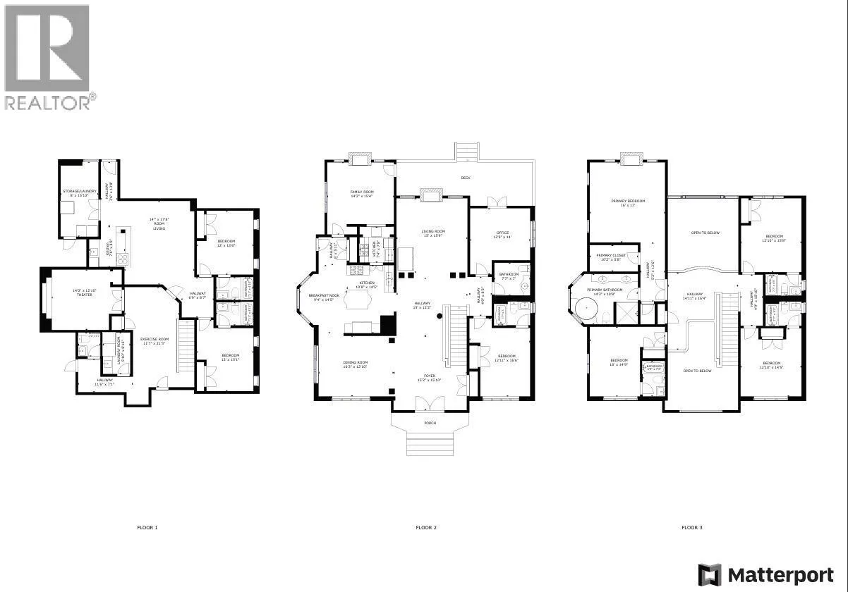
View all 40 photos

About

A breathtaking signature residence, meticulously designed and crafted by Jenia Design. This architectural masterpiece showcases premium European craftsmanship and the finest materials throughout. Welcoming you is a stunning, hand-crafted white oak front door-measuring 14 feet high and 7 feet wide-book-matched in a three-layer design. Step inside to a grand 20-foot entry hall adorned with detailed relief motifs on every wall. The space is finished with tempered porcelain tile flooring that reflects the ornamental coffered ceiling above, highlighted with 24-carat gold leaf accents. Pass through marbleized, hand-crafted columns and pilasters into a soaring 20-foot living room featuring an elegant stone fireplace. And this is only the beginning.Call now to arrange your private viewing. (id:27476)

Property Highlights

MLS® Number
R3104352
Type
Single Family
Ownership Type
Freehold
Land Size
10500 sqft
Parking Space Total
2

Building

Building Type
House
Square Footage
5865 sqft
Bathrooms Total
8
Bedrooms Total
7
Amenities
Shopping
Fireplace Present
Yes
Basement Type
Full (Unknown)
Basement Features
Unknown
Building Heating Type
Baseboard heaters, Hot Water
Heating Fuel
Building Cooling Type
Air Conditioned

Location

Learn more about this property
Listing provided by:
RE/MAX Crest Realty
MLS® number:
R3104352
Agent:
Glen Hao
*Indicates required field
Name is required
Email is required
Please enter a valid phone number (e.g., 416-111-1111).

Street Spotlight - For sale