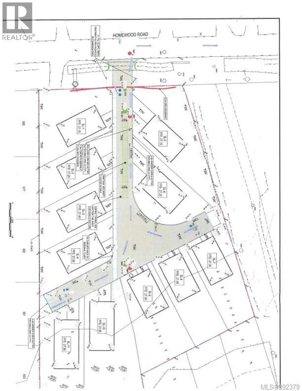
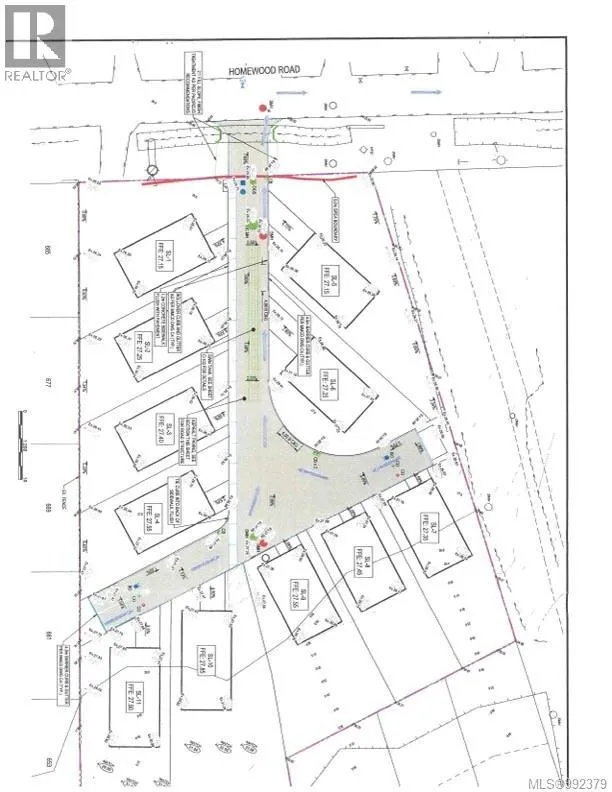
681 Homewood Rd, Campbell River, British Columbia V9W 3N6

Listed for:
$899,000
0 beds
0 baths
Listed 62 days ago
Multi-Family for rent: 681 Homewood Rd, Campbell River, British Columbia V9W 3N6

View all 11 photos

Learn more about this property
Listing provided by:
RE/MAX Check Realty
MLS® number:
992379
Agent:
Allan Rimell
*Indicates required field
Name is required
Email is required
Please enter a valid phone number (e.g., 416-111-1111).

About

DEVELOPER/BUILDER GREAT OPPORTUNITY *********************************** 1.28 acres, Zoned RM-1 UP TO 44 UNITS ALLOWED NO REZONING HOMEWOOD MODULAR HOME VILLAGE ****THIS WILL NOT LAST LONG**** *********************************** (id:27476)

Property Highlights

MLS® Number
992379
Type
Multi-family
Ownership Type
Strata
Land Size
1.28 ac

Building

Building Type
Multi-Family
Fireplace Present
No
Basement Type
Basement Features
Building Heating Type
Heating Fuel
Building Cooling Type

Location