404 536 Island Hwy S, Campbell River, British Columbia V9W 1A5

Listed for:
$678,800
2 beds
2 baths
Listed 134 days ago
Apartment for rent: 404 536 Island Hwy S, Campbell River, British Columbia V9W 1A5

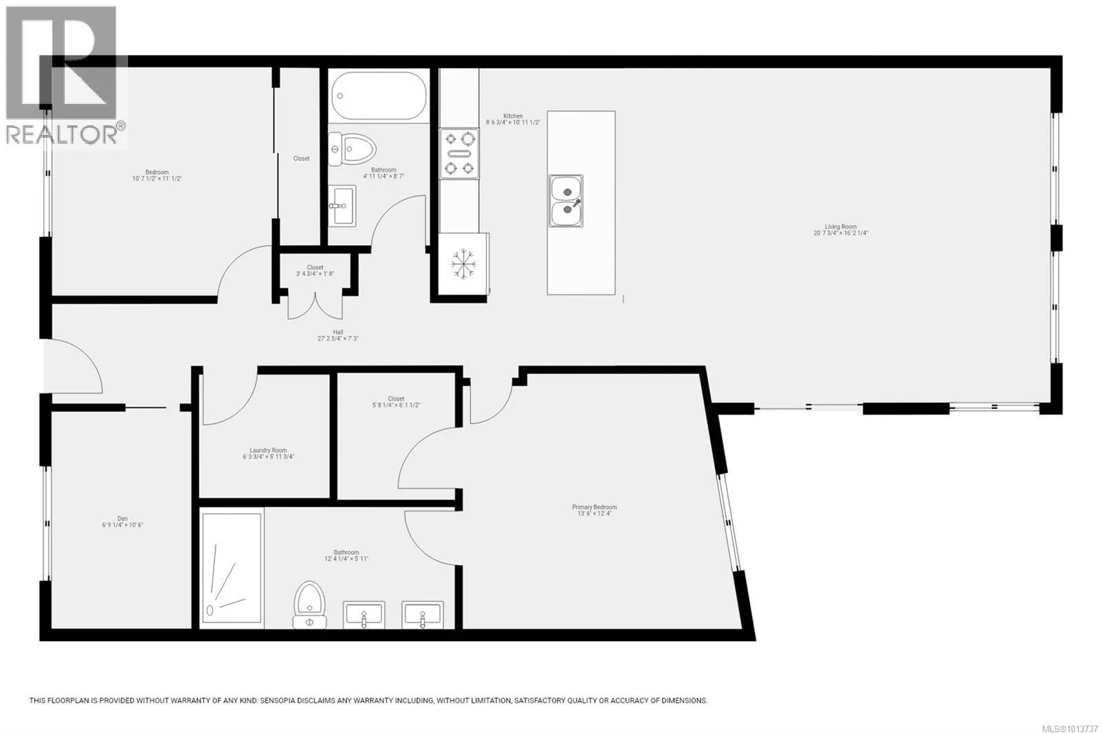
View all 36 photos

About

This Omnia unit blends comfort and style with ocean and nature views—and it’s ready to move in. The spacious primary bedroom offers a walk-in closet and a spa-inspired ensuite featuring heated floor tile, a double vanity, and a herringbone-tiled shower. A second bedroom overlooks peaceful green space, paired with a full bath and relaxing tub—ideal for family or guests. A bright den makes a perfect office, reading nook, or creative space. Everyday conveniences include in-unit laundry, undercover parking, an EV charger, and a pet- and rental-friendly building. Stay comfortable year-round with a heat pump for heating and cooling. From the front deck, enjoy sweeping ocean views and passing cruise ships; from the back, take in the quiet rhythm of nature. Whether a year-round retreat or summer escape, this move-in-ready home is a rare blend of luxury, privacy, and West Coast living. (id:27476)

Property Highlights

MLS® Number
1013737
Type
Single Family
Maintenance Fee
418.82
Ownership Type
Freehold
Land Size
1227 sqft

Building

Building Type
Apartment
Square Footage
1227 sqft
Bathrooms Total
2
Bedrooms Total
2
Fireplace Present
No
Basement Type
Basement Features
Building Heating Type
Heat Pump
Heating Fuel
Building Cooling Type
Central air conditioning

Location

Learn more about this property
Listing provided by:
eXp Realty (NA)
MLS® number:
1013737
Agent:
Shannon Marin
*Indicates required field
Name is required
Email is required
Please enter a valid phone number (e.g., 416-111-1111).

Street Spotlight - For sale