2825 Denman St, Campbell River, British Columbia V9H 1S9

Listed for:
$929,900
3 beds
3 baths
Listed 41 days ago
House for rent: 2825 Denman St, Campbell River, British Columbia V9H 1S9

View all 58 photos

About

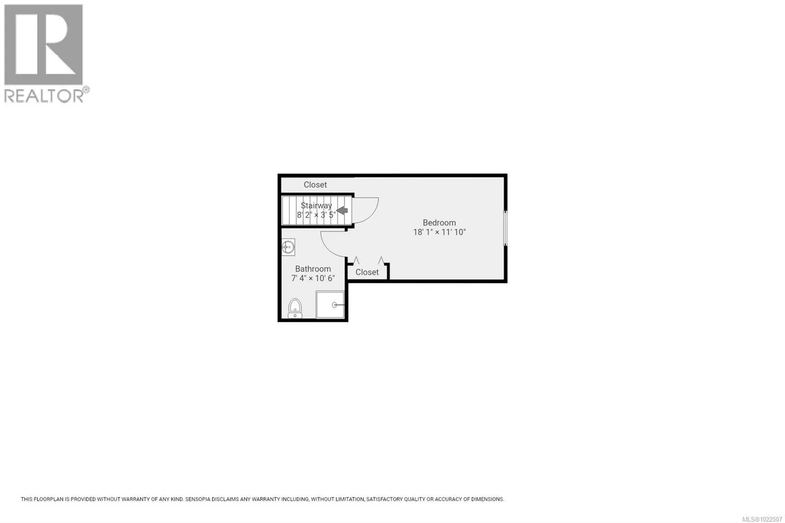
Welcome to this thoughtfully designed 1,840 sq ft rancher with bonus room, perfectly situated on a generous 0.22-acre lot in the highly desirable Willow Point neighbourhood. This home offers exceptional versatility with three bedrooms plus a den and three bathrooms, including a primary suite on the main level featuring a walk-in closet and a spa-inspired ensuite with a two-person soaker tub and separate shower. Upstairs, the bonus room hosts a secondary primary suite, ideal for guests, extended family, or a private retreat. At the heart of the home, custom kitchen cabinetry blends timeless elegance with everyday functionality, while hot-water-heated hardwood floors provide luxurious comfort and impressive energy efficiency year-round. Step outside to a private, fully usable backyard designed for both relaxation and entertaining. Enjoy the expansive poured concrete patio, a levelled area ready for an above-ground pool, hot tub pre-wiring, raised vegetable garden beds, and an abundance of fruit from cherry and apple trees as well as blueberry bushes. Additional features include a 10’ x 12’ detached garden shed, a 4-foot concrete crawl space offering excellent storage, oversized garage, and peaceful greenspace directly across the street. This is a rare opportunity to own a meticulously cared-for home that offers comfort, efficiency, and outdoor enjoyment in one of Campbell River’s most sought-after communities. (id:27476)

Property Highlights

MLS® Number
1022507
Type
Single Family
Ownership Type
Freehold
Land Size
9682 sqft
Parking Space Total
3

Building

Building Type
House
Square Footage
1840 sqft
Bathrooms Total
3
Bedrooms Total
3
Fireplace Present
No
Basement Type
Basement Features
Building Heating Type
Hot Water
Heating Fuel
Electric, Other
Building Cooling Type
None

Location

Learn more about this property
Listing provided by:
Real Broker
MLS® number:
1022507
Agent:
Sophie Gardner
*Indicates required field
Name is required
Email is required
Please enter a valid phone number (e.g., 416-111-1111).