60 Pringle Road, Carmi, British Columbia V0H 1A0

Listed for:
$1,200,000
2 beds
3 baths
Listed 189 days ago
House for rent: 60 Pringle Road, Carmi, British Columbia V0H 1A0

View all 41 photos

About

Looking to get out of the hustle and bustle? Nestled on 1.26 acres of serene riverfront, this beautifully designed 2,100 sq. ft. custom home with an attached 1,900 sq. ft. workshop, offers a perfect blend of luxury, functionality, and peaceful living. The home features 10 ft ceilings, Fir flooring and trim, 2 bedrooms, 3 bathrooms. The huge island kitchen boasts granite countertops, a large walk in pantry, and 39inch deep countertops, ideal for cooking, entertaining, and storage. The entire home is designed for comfort with an efficient wood stove supplemented by electric forced air floor vents, along with a heated concrete crawl space for added energy efficiency. Exterior features include a custom chicken coup, garden areas and a fully deer fenced perimeter. Low-maintenance metal roof and siding ensure durability and easy upkeep. A 30+ GPM well with a 3-phase constant pressure system and a 3-second hot water delay guarantees reliable water supply and instant hot water, while exterior hot water bibs add convenience for outdoor tasks. The attached workshop offers 14 ft ceilings, a 12 ft bay door, a vented paint room, and a half bathroom making it perfect for a business or hobbies. The detached garage adds extra space for vehicles and storage. A large insulated stamped concrete patio provides a relaxing area to enjoy the summer evenings with potential to expand the interior living area, Don’t miss this rare opportunity! (id:27476)

Property Highlights

MLS® Number
10326486
Type
Single Family
Ownership Type
Freehold
Land Size
1.26 ac|1 - 5 acres
Parking Space Total
5

Building

Building Type
House
Storeys
1.00
Square Footage
2100 sqft
Bathrooms Total
3
Bedrooms Total
2
Exterior Finish
Metal, Stone
Fireplace Present
Yes
Basement Type
Basement Features
Building Heating Type
In Floor Heating, Stove
Heating Fuel
Electric, Wood
Building Cooling Type

Utilities

Water
Well
Utility Sewer
Septic tank

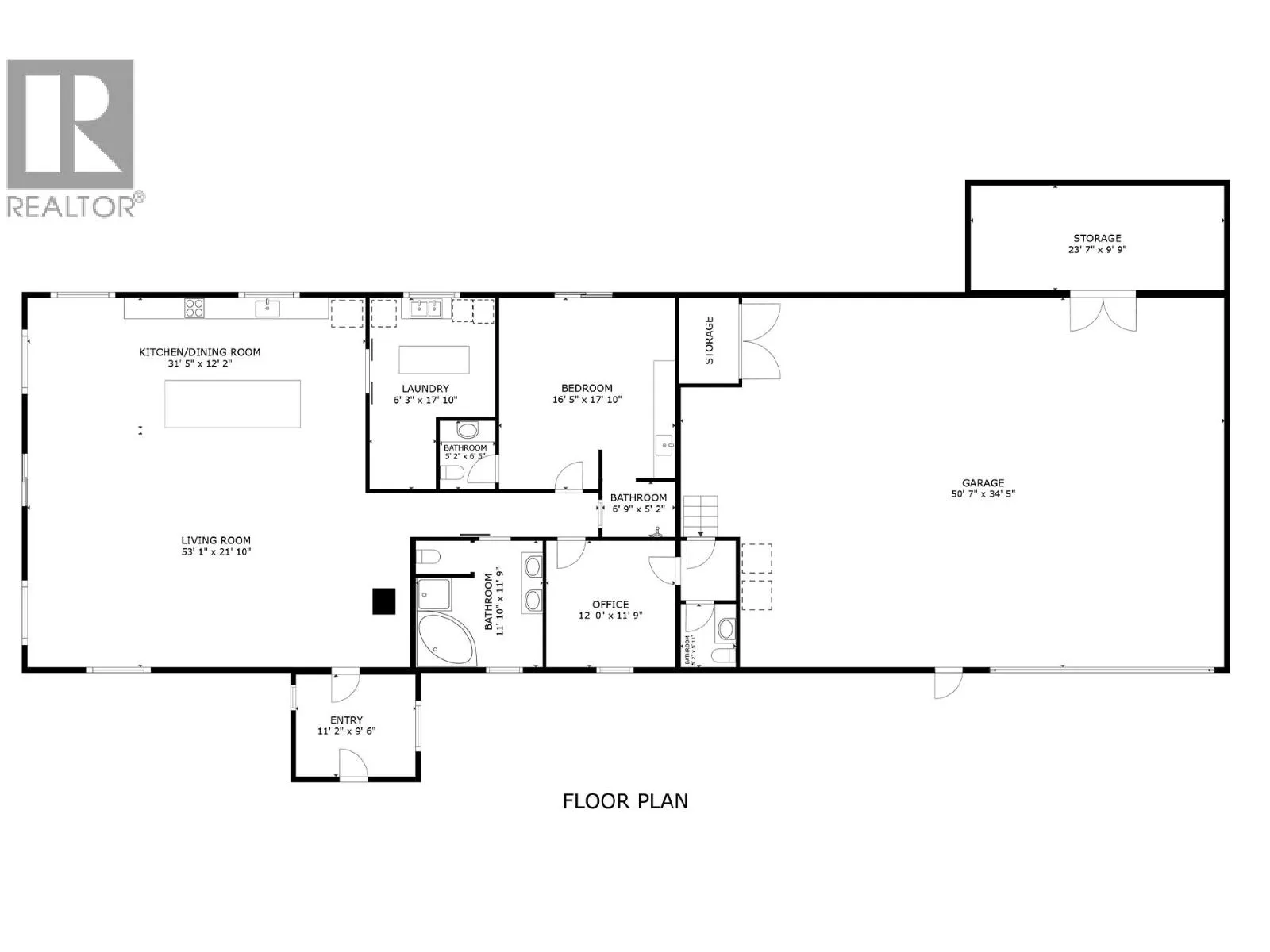
Room Layout

Partial bathroom
Main level
Measurements not available
Other
Main level
23'7'' x 9'9''
Workshop
Main level
50'7'' x 34'5''
Pantry
Main level
6'3'' x 17'10''
Bedroom
Main level
12' x 11'9''
Full ensuite bathroom
Main level
Measurements not available
Full bathroom
Main level
Measurements not available
Foyer
Main level
11'2'' x 9'6''
Primary Bedroom
Main level
16'5'' x 17'10''
Living room
Main level
53'1'' x 21'10''
Kitchen
Main level
31'5'' x 12'2''

Location

Learn more about this property
Listing provided by:
Century 21 Assurance Realty Ltd
MLS® number:
10326486
Agent:
Ryan Brown
*Indicates required field
Name is required
Email is required
Please enter a valid phone number (e.g., 416-111-1111).