3732 Toba Road Unit# 2, Castlegar, British Columbia V1N 4Y3

Listed for:
$499,000
2 beds
2 baths
Listed 48 days ago
Triplex for rent: 3732 Toba Road Unit# 2, Castlegar, British Columbia V1N 4Y3

View all 10 photos

Learn more about this property
Listing provided by:
Century 21 Assurance Realty Ltd
MLS® number:
10366745
Agent:
Raquel Green
*Indicates required field
Name is required
Email is required
Please enter a valid phone number (e.g., 416-111-1111).

About

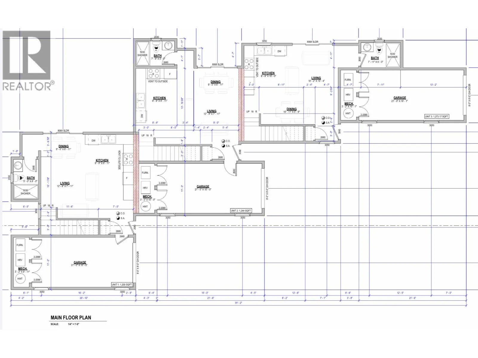
Luxury Modern Living Meets Nature! Discover 3 stunning brand-new units to choose from in this beautifully designed modern triplex. Each home offers 2 spacious bedrooms and 2 bathrooms, thoughtfully designed with high-end finishes throughout. The primary suite features a generous walk-in closet, and a stylish ensuite. Enjoy the bright, open concept living space with over height ceilings, recessed lighting, and large windows that fill the home with natural light. Additional highlights include: EV charger, 5 appliances included, electric garage door opener, blinds and window screens, BBQ gas connection, roughed in central vac. Each unit comes with a single car garage plus additional driveway parking. Experience luxury, comfort, and the beauty of nature, all in one exceptional new home! Estimated completion for 2026 (id:27476)

Property Highlights

MLS® Number
10366745
Type
Single Family
Ownership Type
Freehold
Land Size
under 1 acre
Parking Space Total
2

Building

Building Type
Triplex
Storeys
2.00
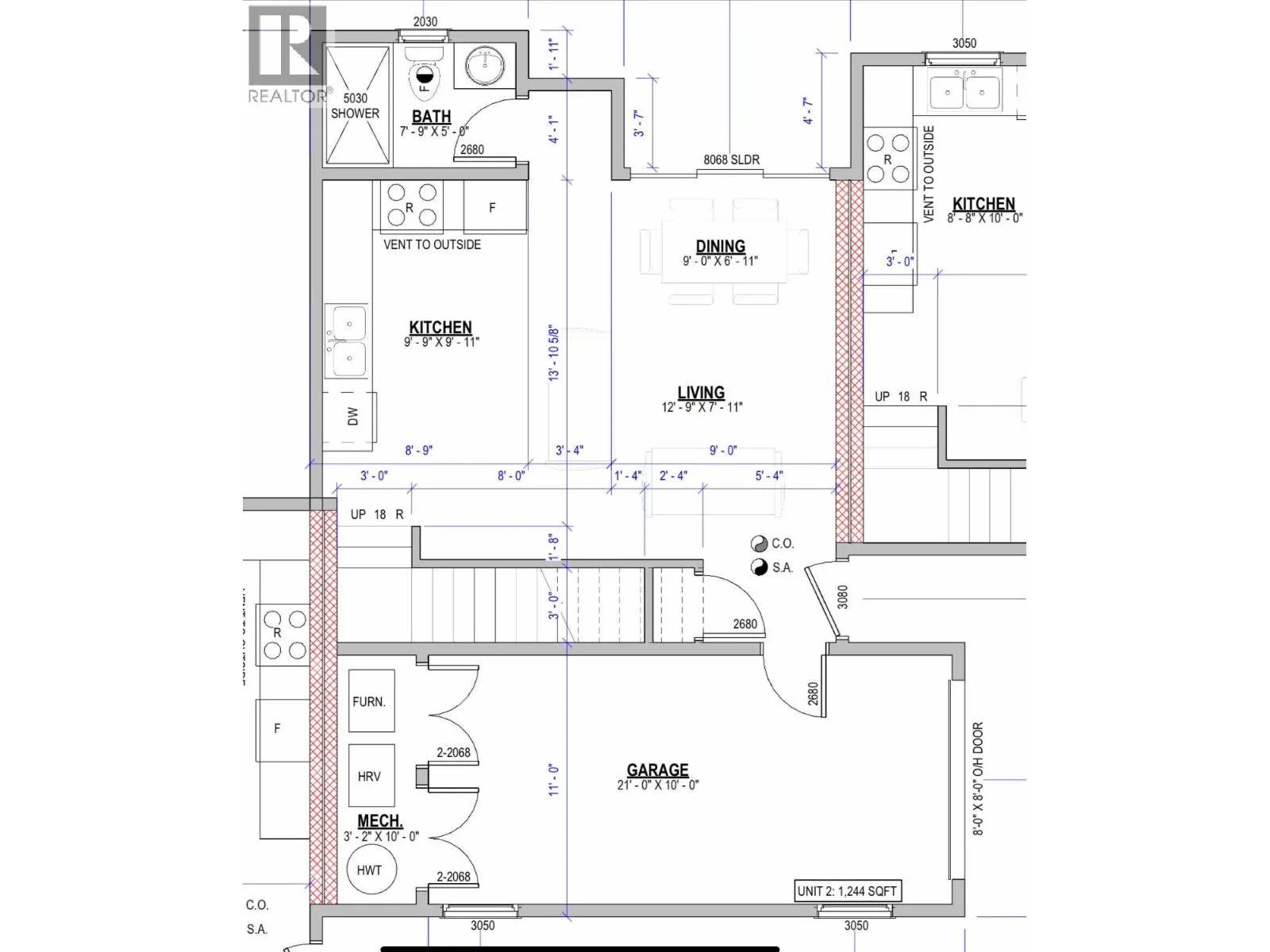
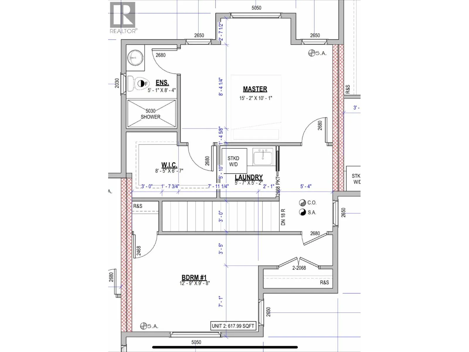
Square Footage
1244 sqft
Bathrooms Total
2
Bedrooms Total
2
Fireplace Present
No
Basement Type
Basement Features
Building Heating Type
Forced air, See remarks
Heating Fuel
Building Cooling Type
Central air conditioning

Utilities

Water
Municipal water
Utility Sewer
Municipal sewage system

Room Layout

4pc Ensuite bath
Second level
Measurements not available
Bedroom
Second level
9'8'' x 12'9''
Primary Bedroom
Main level
10'1'' x 15'2''
Laundry room
Main level
5'2'' x 5'7''
4pc Bathroom
Main level
Measurements not available
Kitchen
Main level
9'9'' x 9'11''
Dining room
Main level
6'11'' x 9'
Living room
Main level
7'11'' x 12'9''

Location

Street Spotlight - For sale