1932 Mt. Newton Cross Rd, Central Saanich, British Columbia V8M 2B1

Listed for:
$1,875,000
0 beds
0 baths
Listed 69 days ago
Offices for rent: 1932 Mt. Newton Cross Rd, Central Saanich, British Columbia V8M 2B1

View all 8 photos

Learn more about this property
Listing provided by:
NAI Commercial (Victoria) Inc.
MLS® number:
1018236
Agent:
Erin Glazier
*Indicates required field
Name is required
Email is required
Please enter a valid phone number (e.g., 416-111-1111).

About

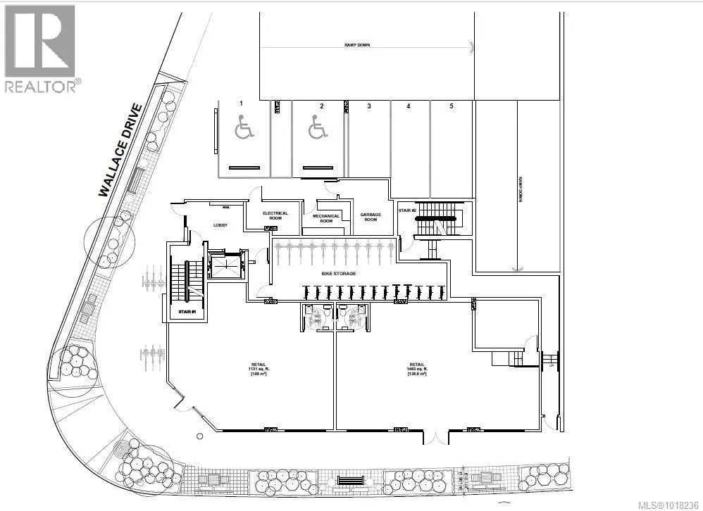
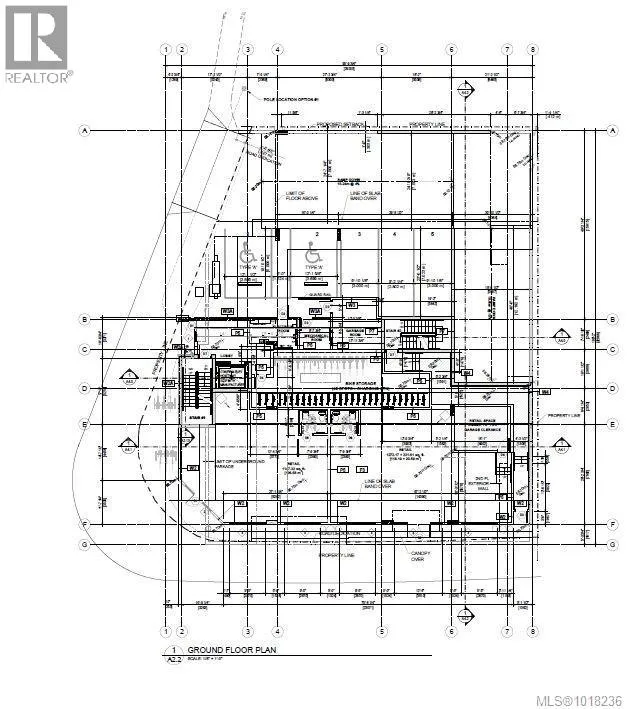
The Cento is a 28 unit luxury condominium project slated to be built in the heart of Saanichton BC, is now offering ground floor Medical office space for sale. Located at the corner of Wallace Drive and Mt. Newton Cross Rd, there is the option for two smaller square footage units of 1,250 SF, or one combined larger unit of 2,500 SF. This opportunity as shell space allows the end user ultimate autonomy in the pre-build specifications, working with the Developer to deliver the desired end-product. The location offers close proximity to Saanich Peninsula Hospital, Thrifty Foods, bank, pharmacy and a range of retail. As there is currently no Physician within the area GP would be an ideal use, but zoning also allows for Physio, Chiropractic, Dental and more. Completion of the development is set for summer of 2027. Please contact listing agents for further details. (id:27476)

Property Highlights

MLS® Number
1018236
Type
Office
Ownership Type
Other, See Remarks
Parking Space Total
9

Building

Building Type
Offices
Fireplace Present
No
Basement Type
Basement Features
Building Heating Type
Heating Fuel
Building Cooling Type

Location