161 Shuswap Avenue Unit# 24, Chase, British Columbia V0E 1M0

Listed for:
$152,900
2 beds
2 baths
Listed 39 days ago
Manufactured Home for rent: 161 Shuswap Avenue Unit# 24, Chase, British Columbia V0E 1M0

View all 39 photos

About

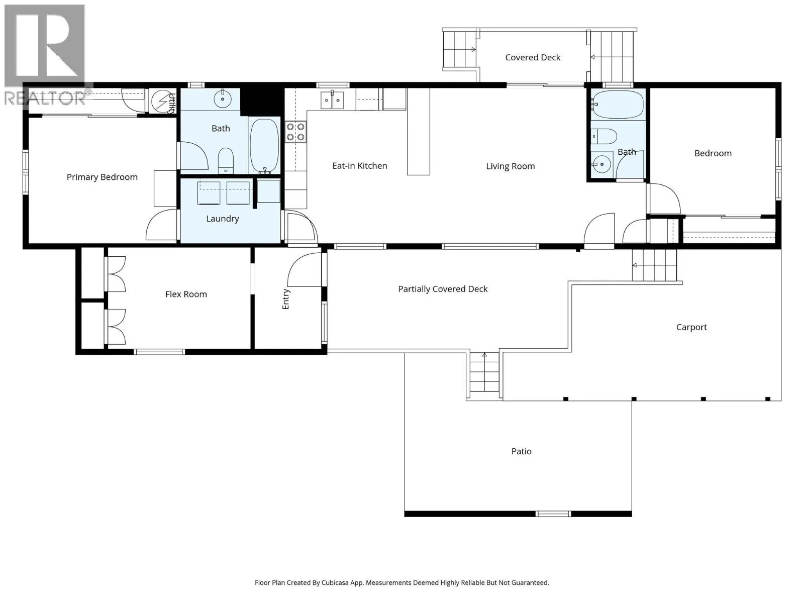
Welcome home to 24-161 Shuswap Ave located in beautiful Chase BC. This mobile home has a lot to offer with 2 bedrooms (flex room could be a third bedroom), 2 bathrooms and a nice open kitchen/dining/living area. The property is clean, bright and has been well maintained over the years. Relax outside on the large, partially covered main deck, small side deck or spend time in the nice sized yard. Comes with A/C, two storage sheds, a newer hot water tank and has a wheelchair lift for those that require a bit more assistance. There is a 1 car carport and one additional open parking space. The property is close to shopping, groceries and most other amenities. Chase is a quiet lake community that could be your next home! (id:27476)

Property Highlights

MLS® Number
10371612
Type
Single Family
Maintenance Fee
660.00
Land Size
under 1 acre

Building

Building Type
Manufactured Home
Storeys
1.00
Square Footage
1061 sqft
Bathrooms Total
2
Bedrooms Total
2
Fireplace Present
No
Basement Type
Basement Features
Building Heating Type
Forced air
Heating Fuel
Building Cooling Type
Central air conditioning

Utilities

Water
Municipal water
Utility Sewer
Municipal sewage system

Room Layout

4pc Bathroom
Main level
Measurements not available
4pc Bathroom
Main level
Measurements not available
Other
Main level
12'4'' x 8'7''
Bedroom
Main level
10'7'' x 10'7''
Primary Bedroom
Main level
12'11'' x 11'
Foyer
Main level
8'7'' x 5'8''
Living room
Main level
13'4'' x 13'3''
Kitchen
Main level
13'3'' x 13'1''

Location

Learn more about this property
Listing provided by:
RE/MAX Real Estate (Kamloops)
MLS® number:
10371612
Agent:
Jeremy Bates
*Indicates required field
Name is required
Email is required
Please enter a valid phone number (e.g., 416-111-1111).