10155 View St, Chemainus, British Columbia V0R 1K2

Listed for:
$749,000
2 beds
3 baths
Listed 39 days ago
Duplex for rent: 10155 View St, Chemainus, British Columbia V0R 1K2

View all 62 photos

About

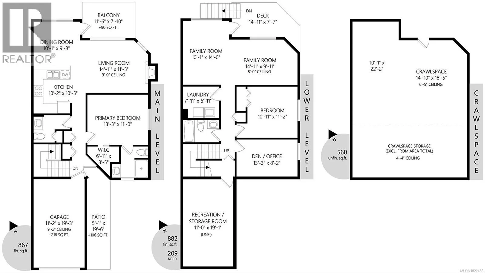
Stunning ocean views from most rooms in this lovely and well maintained entry level side by side half duplex on View Street in Chemainus. Vista's also take in the gulf Islands and mainland mountains. This open plan home has primary bedroom on the main with it's own 3 piece ensuite and walk in closet. The main floor open concept floorplan with living, dining and kitchen space all enjoying the in your face ocean views. Downstairs is another bedroom a study/ den/bed/flex room, a large family room, a 4 piece bathroom, a separate laundry room and access to another patio/deck area - home has lovely easy care landscaping and on lower level a huge walk in crawlspace for plenty of storage. Single car garage, new roof, multiple deck patio areas, this is a well maintained home. Freehold Strata no pet restrictions, no age restrictions and no strata fees. Close to walking trails, shopping and all that living in Chemainus has to offer. This unit is easy to show and ready to go - a pleasure to show (id:27476)

Property Highlights

MLS® Number
1022486
Type
Single Family
Ownership Type
Freehold
Land Size
3500 sqft
Parking Space Total
2

Building

Building Type
Duplex
Square Footage
2734 sqft
Bathrooms Total
3
Bedrooms Total
2
Fireplace Present
Yes
Basement Type
Basement Features
Building Heating Type
Forced air
Heating Fuel
Natural gas
Building Cooling Type
None

Location

Learn more about this property
Listing provided by:
RE/MAX Generation (CH)
MLS® number:
1022486
Agent:
Michael Pickard
*Indicates required field
Name is required
Email is required
Please enter a valid phone number (e.g., 416-111-1111).