9828 Croft St, Chemainus, British Columbia V0R 1K1

Listed for:
$895,000
0 beds
0 baths
Listed 103 days ago
Commercial Mix for rent: 9828 Croft St, Chemainus, British Columbia V0R 1K1

View all 20 photos

About

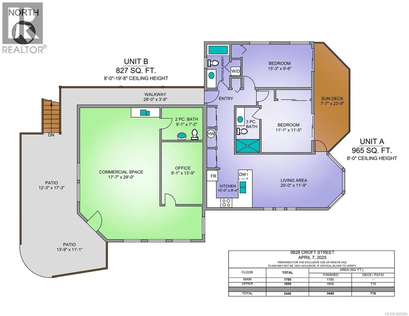
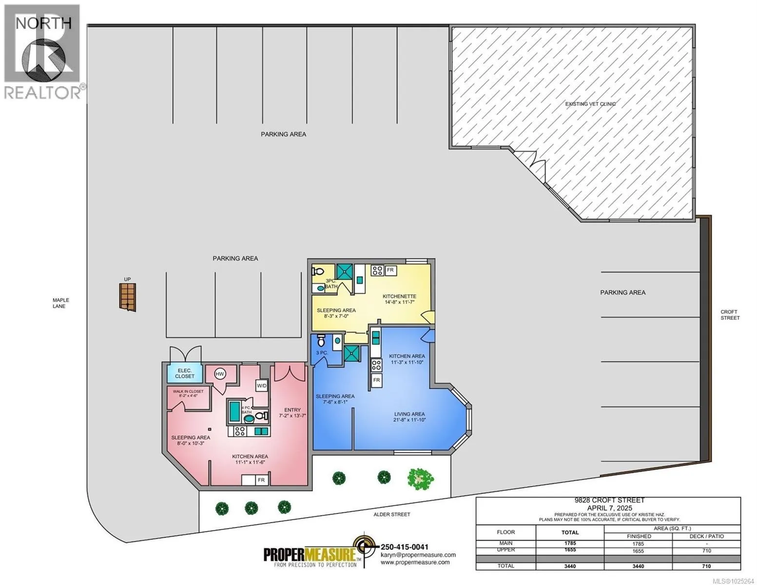
An exceptional opportunity to acquire a versatile income property offering both stability and upside. The building comprises three commercial units, one dedicated storage unit, and a well-appointed two-bedroom residential suite currently leased to a long-term tenant at $1,400 per month. With the balance of the property to be delivered vacant at completion, incoming ownership gains rare flexibility whether to curate a complementary tenant mix, reposition the asset for enhanced returns, or occupy part of the building while maintaining residential income. Well suited to investors seeking value-add potential or owner-operators looking for a live-work or income-supported footprint, this property presents a compelling combination of immediate revenue and future optionality. Recent price adjustment further enhances the opportunity to secure a multi-use asset with long-term upside. Explore the possibilities and unlock the next chapter of this property. Contact the listing agent today. (id:27476)

Property Highlights

MLS® Number
1025264
Type
Other
Ownership Type
Strata
Land Size
10931 sqft

Building

Building Type
Commercial Mix
Fireplace Present
No
Basement Type
Basement Features
Building Heating Type
Heating Fuel
Building Cooling Type

Location

Learn more about this property
Listing provided by:
eXp Realty (NA)
MLS® number:
1025264
Agent:
Kristie Haz
*Indicates required field
Name is required
Email is required
Please enter a valid phone number (e.g., 416-111-1111).