365 3042 River Rd, Chemainus, British Columbia V0R 1K3

Listed for:
$259,000
1 beds
1 baths
Listed 55 days ago
Manufactured Home for rent: 365 3042 River Rd, Chemainus, British Columbia V0R 1K3

View all 19 photos

About

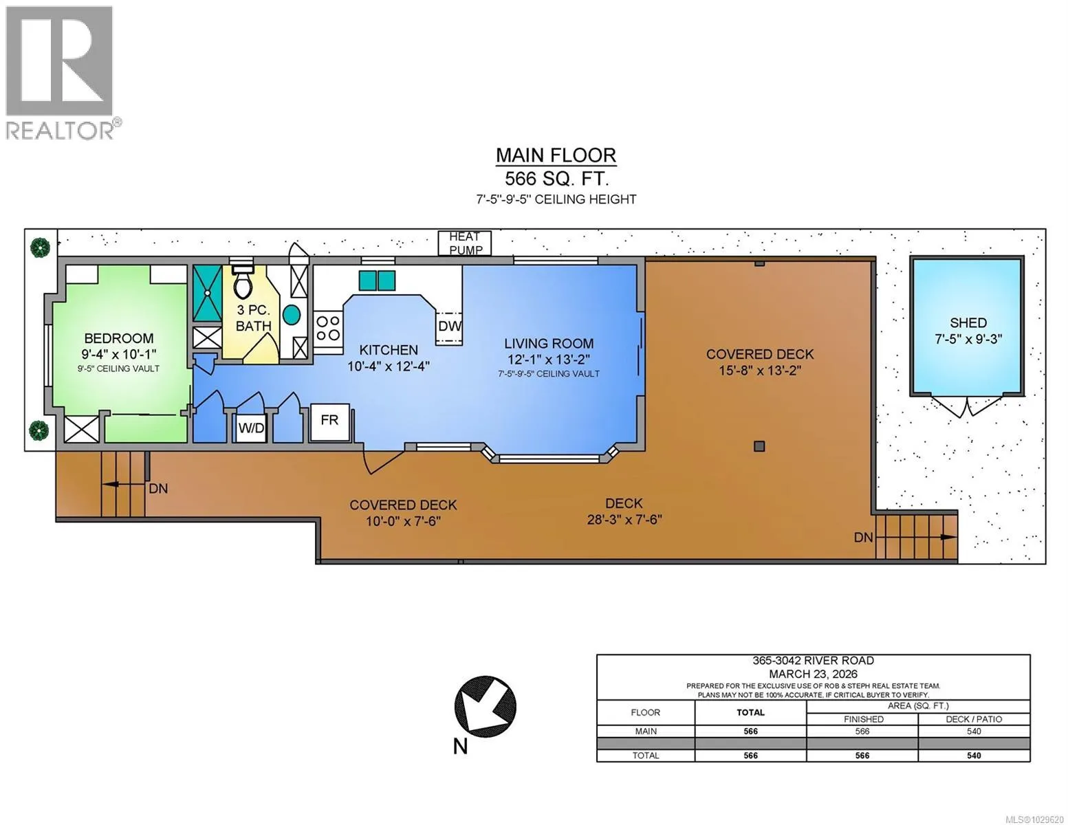
Welcome home to Chemainus Gardens. This turnkey, well appointed 2018 park model unit offers over $36K in upgrades including a mini split heat pump, shaker style cabinetry w/spice rack pull out and lazy susans, ceiling fans, custom built-ins with drawers in bedroom, storage shed and a spacious deck. The use of bay and dormer windows, vaulted 9'6'' ceiling, provide for ample natural light. This unit is decked out with an additional 550 sf of outdoor living space including two south facing covered sections backing onto the dog park and green space; and natural gas BBQ hookup. Chemainus Gardens is a pet-friendly adult community located within an idyllic 34-acre parkland setting, centrally-located close to amenities, recreation, shops, restaurants, Mount Brenton Golf Course and the Chemainus Theatre. This is a convenient, affordable, low-maintenance option for buyers looking to enjoy easy Island living in the Cowichan Valley. (id:27476)

Property Highlights

MLS® Number
1029620
Type
Single Family
Maintenance Fee
572.24
Ownership Type
Leasehold
Parking Space Total
2

Building

Building Type
Manufactured Home
Square Footage
566 sqft
Bathrooms Total
1
Bedrooms Total
1
Fireplace Present
No
Basement Type
Basement Features
Building Heating Type
Heat Pump
Heating Fuel
Building Cooling Type
Air Conditioned

Location

Learn more about this property
Listing provided by:
RE/MAX Generation (CH)
MLS® number:
1029620
Agent:
Stephanie Ballantyne
*Indicates required field
Name is required
Email is required
Please enter a valid phone number (e.g., 416-111-1111).

Street Spotlight - For sale