7341 Marble Hill Road|eastern Hillsides, Chilliwack, British Columbia V4Z 1J5

Listed for:
$1,298,000
5 beds
3 baths
Listed 187 days ago
House for rent: 7341 Marble Hill Road|eastern Hillsides, Chilliwack, British Columbia V4Z 1J5

View all 17 photos

About

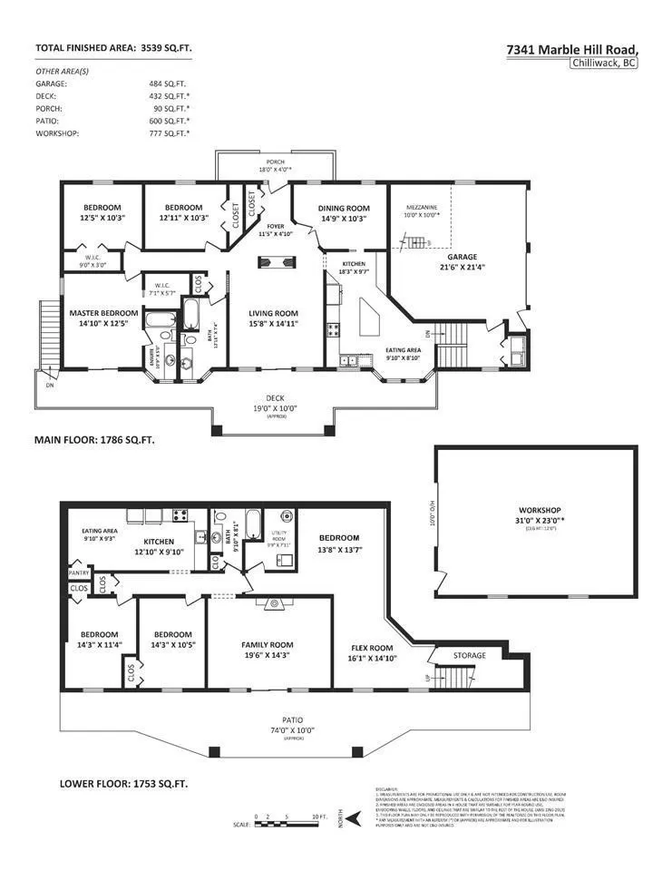
Potential for 3 lot subdivision, engineer and environmental reports & drawings for a 3 lot subdivision lot have been completed, consult with city for approval. 1.08 Acre of land in the Eastern Hillsides of Chilliwack BC. Well-maintained, private 3540 SQFt home with 6 Bedroom( 3 bed Basement suite downstairs), 3 baths, 3 car garage and at least 14ft height 700SQFT separate workshop! Check out the beautifully garden as well. Ideal lot to live in now and eventually build a 3 home family estate. Gated entry with plenty of room for RV, boat, and larger vehicle parking. Only 10 minutes to the golf course, shopping and nearby schools. Total Rent for both upstairs and downstairs $3756/month. Note: photos were from previous listing. Yes still available. (id:27476)

Property Highlights

MLS® Number
R3018306
Type
Single Family
Ownership Type
Freehold
Land Size
45000 sqft

Building

Building Type
House
Storeys
2.00
Square Footage
3539 sqft
Bathrooms Total
3
Bedrooms Total
5
Fireplace Present
Yes
Basement Type
Full (Finished)
Basement Features
Building Heating Type
Radiant/Infra-red Heat
Heating Fuel
Natural gas
Building Cooling Type

Location

Learn more about this property
Listing provided by:
Royal Pacific Realty Corp.
MLS® number:
R3018306
Agent:
Van Anh
*Indicates required field
Name is required
Email is required
Please enter a valid phone number (e.g., 416-111-1111).

Street Spotlight - For sale