46535 Clayton Avenue|chilliwack Proper East, Chilliwack, British Columbia V2P 2L6

Listed for:
$749,900
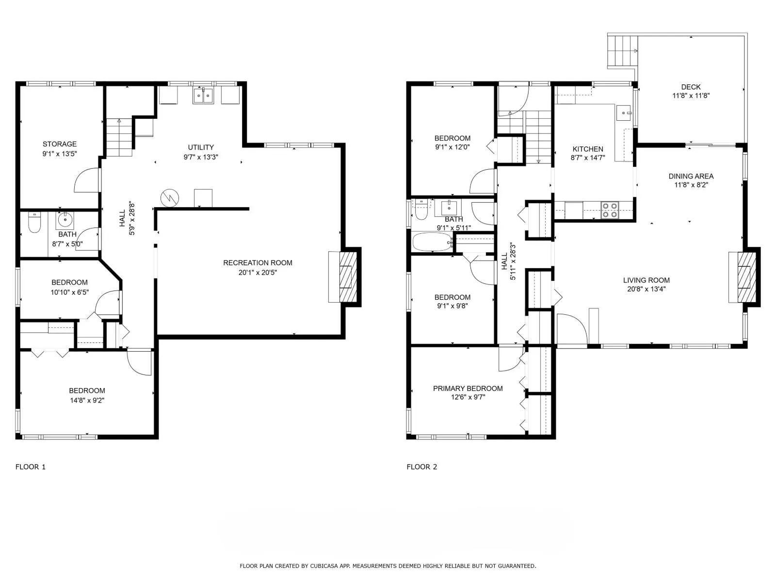
5 beds
2 baths
Listed 25 days ago
House for rent: 46535 Clayton Avenue|chilliwack Proper East, Chilliwack, British Columbia V2P 2L6

View all 33 photos

Learn more about this property
Listing provided by:
RE/MAX Nyda Realty Inc.
MLS® number:
R3060526
Agent:
Jeremy Van Woerden
*Indicates required field
Name is required
Email is required
Please enter a valid phone number (e.g., 416-111-1111).

About

Five bedroom house with detached WORKSHOP and RV PARKING on QUIET dead end street. Step inside this charming rancher with basement and enjoy the character hardwood floors, louvred closets, and brick fireplaces. The main floor features 3 generous bedrooms, 1 bathroom, and a welcoming living area. At the front of the home a large veranda is the perfect place to enjoy morning or evening patio time. Or if you prefer, the back deck looks down on your private, lush, and fully fenced yard. Downstairs two more bedrooms, a second bathroom, and large rec room add plenty of living space. You'll appreciate newer windows, new furnace in 2023, lots of storage, and the solid wood cabinets with antique finish. Outside, find space for the RV and a detached workshop--ideal for your hobbies and toy storage. (id:27476)

Property Highlights

MLS® Number
R3060526
Type
Single Family
Ownership Type
Freehold
Land Size
6000 sqft

Building

Building Type
House
Storeys
2.00
Square Footage
2454 sqft
Bathrooms Total
2
Bedrooms Total
5
Amenities
Laundry - In Suite
Fireplace Present
Yes
Basement Type
Full (Partially finished)
Basement Features
Building Heating Type
Forced air
Heating Fuel
Natural gas
Building Cooling Type

Location