28 44565 Monte Vista Drive|sardis South, Chilliwack, British Columbia V2R 5Y4

Listed for:
$229,999
2 beds
1 baths
Listed 12 days ago
Manufactured Home for rent: 28 44565 Monte Vista Drive|sardis South, Chilliwack, British Columbia V2R 5Y4

View all 30 photos

Learn more about this property
Listing provided by:
Century 21 Creekside Realty (Luckakuck)
MLS® number:
R3063944
Agent:
Chris Vandergoot
*Indicates required field
Name is required
Email is required
Please enter a valid phone number (e.g., 416-111-1111).

About

Well maintained 2-bedroom, 1-bath mobile home in the heart of Sardis! This home features a new front deck with rolling gates on each side, perfect for morning coffee, and nicely kept landscaping that enhances the curb appeal. Enjoy beautiful views off the back of the lot, offering peace and privacy. Situated in a desirable Sardis location close to shopping, dining, transit, and all the amenities Chilliwack has to offer. A great opportunity for affordable, comfortable living in one of Chilliwack's most sought-after communities! * PREC - Personal Real Estate Corporation (id:27476)

Property Highlights

MLS® Number
R3063944
Type
Single Family
Ownership Type
Leasehold

Building

Building Type
Manufactured Home
Storeys
1.00
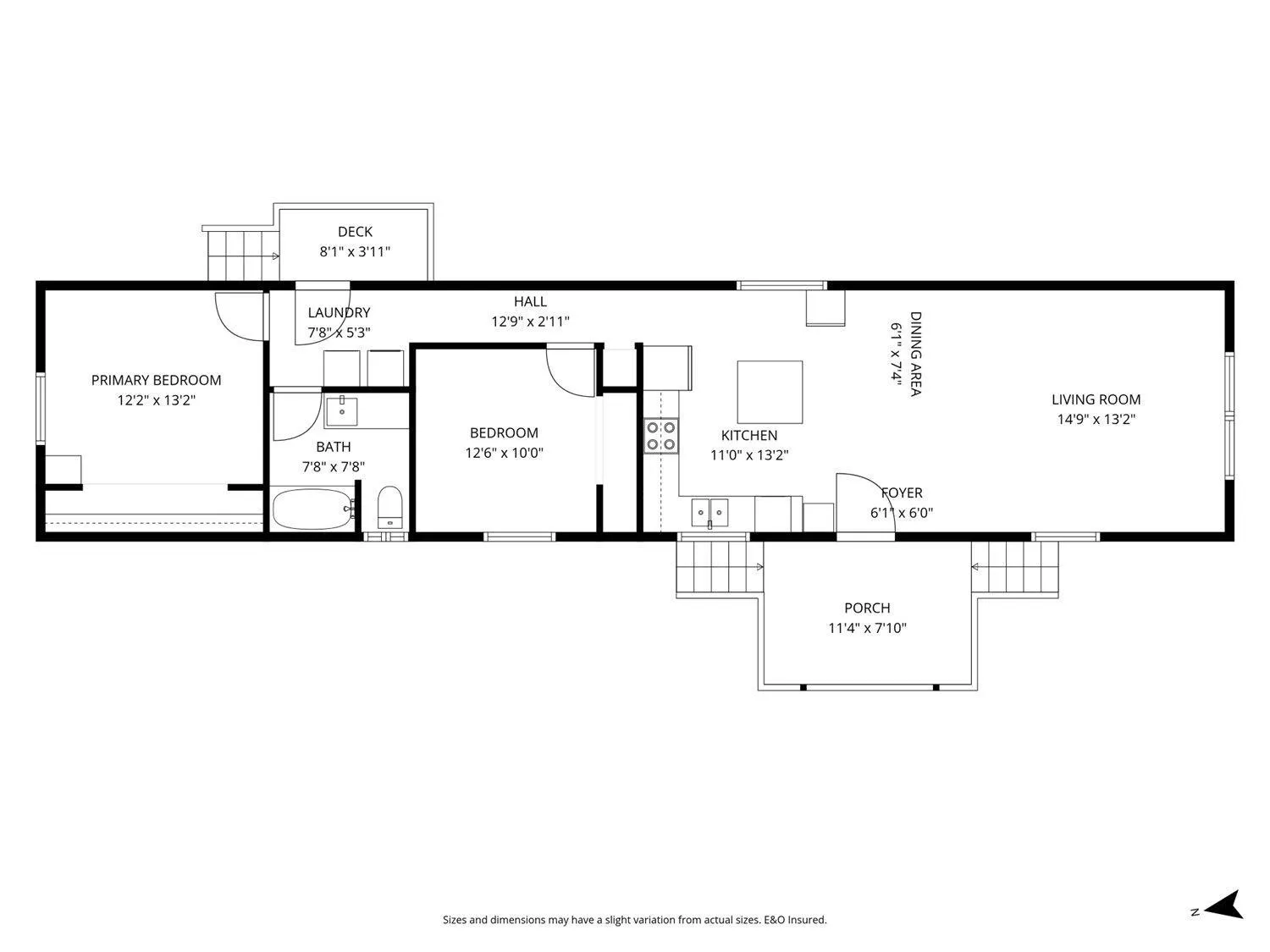
Square Footage
935 sqft
Bathrooms Total
1
Bedrooms Total
2
Fireplace Present
No
Basement Type
None
Basement Features
Building Heating Type
Heating Fuel
Natural gas
Building Cooling Type

Location