31 6498 Southdowne Place|sardis South, Chilliwack, British Columbia V2R 0K3

Listed for:
$659,000
4 beds
4 baths
Listed 15 days ago
Row / Townhouse for rent: 31 6498 Southdowne Place|sardis South, Chilliwack, British Columbia V2R 0K3

View all 32 photos

Learn more about this property
Listing provided by:
Century 21 Creekside Realty (Luckakuck)
MLS® number:
R3069257
Agent:
Kevin Schroeder
*Indicates required field
Name is required
Email is required
Please enter a valid phone number (e.g., 416-111-1111).

About

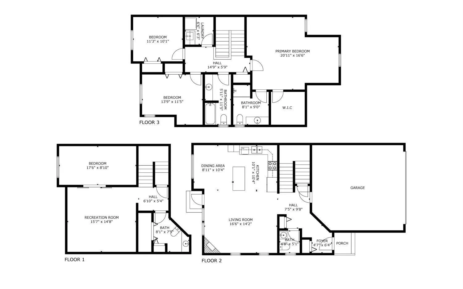
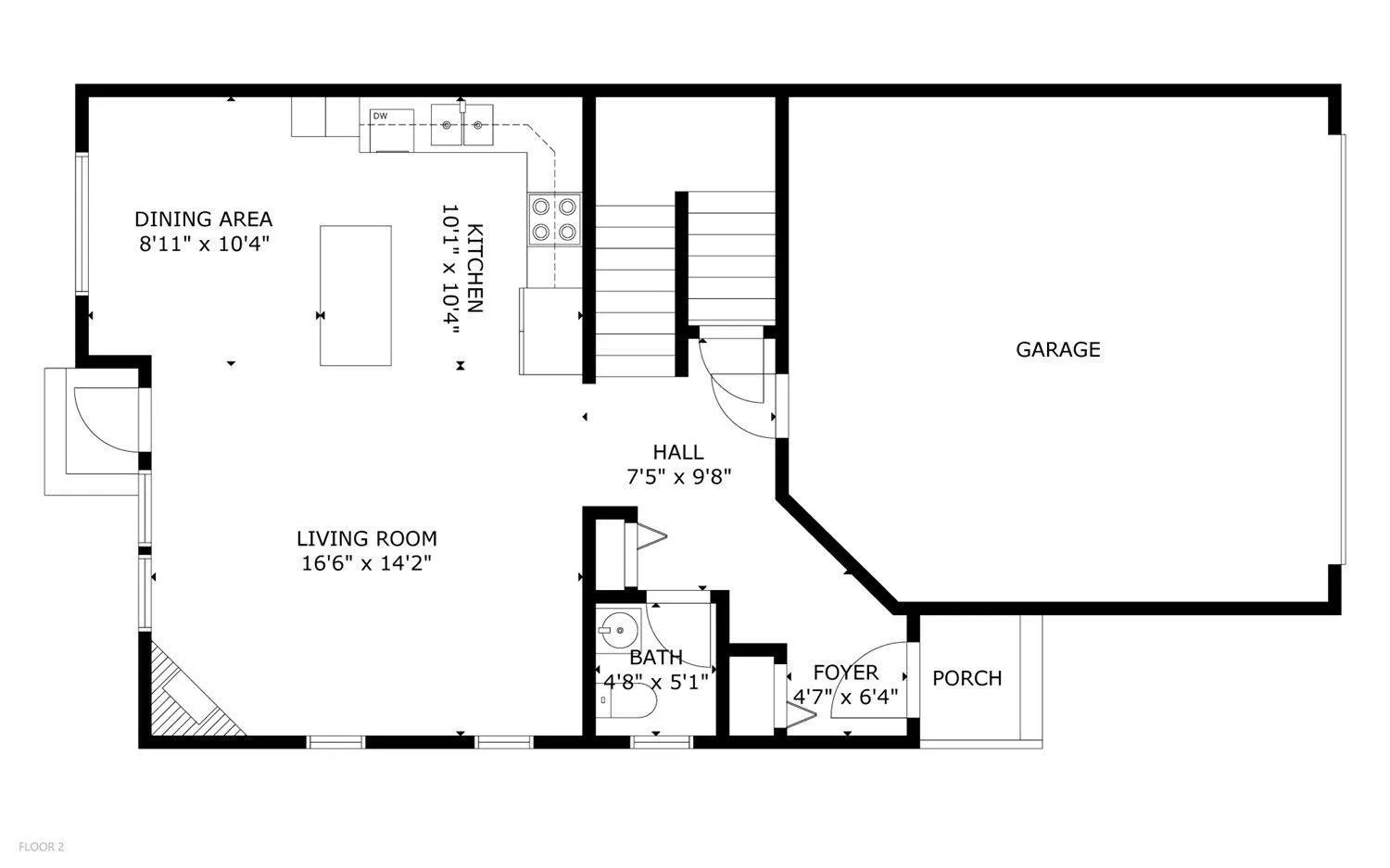
Welcome to Village Green in Sardis! This bright corner-unit townhome offers 4 bedrooms, along with 4 bathrooms "- a rare and highly functional layout for families. The main floor features open-concept living with a spacious kitchen, backyard access, and a light-filled living and dining area. Upstairs are three generous bedrooms, including an impressively large primary suite with a walk in closet, space for actual furniture, and a 3-piece ensuite bathroom. The lower level provides valuable extra space for family, guests, or multiple work-from-home areas, giving you the flexibility modern lifestyles demand. Complete with a double garage and located minutes from schools, trails, shopping, and public transit. Check out the digital walkthrough to see what it looks like vacant and move in ready! (id:27476)

Property Highlights

MLS® Number
R3069257
Type
Single Family
Ownership Type
Strata

Building

Building Type
Row / Townhouse
Storeys
3.00
Square Footage
2222 sqft
Bathrooms Total
4
Bedrooms Total
4
Fireplace Present
Yes
Basement Type
Unknown (Finished)
Basement Features
Building Heating Type
Forced air
Heating Fuel
Electric, Natural gas
Building Cooling Type
Central air conditioning

Location