1601 5260 Goldspring Place|promontory, Chilliwack, British Columbia V2R 5S5

Listed for:
$549,900
2 beds
2 baths
Listed 24 days ago
Row / Townhouse for rent: 1601 5260 Goldspring Place|promontory, Chilliwack, British Columbia V2R 5S5

View all 32 photos

About

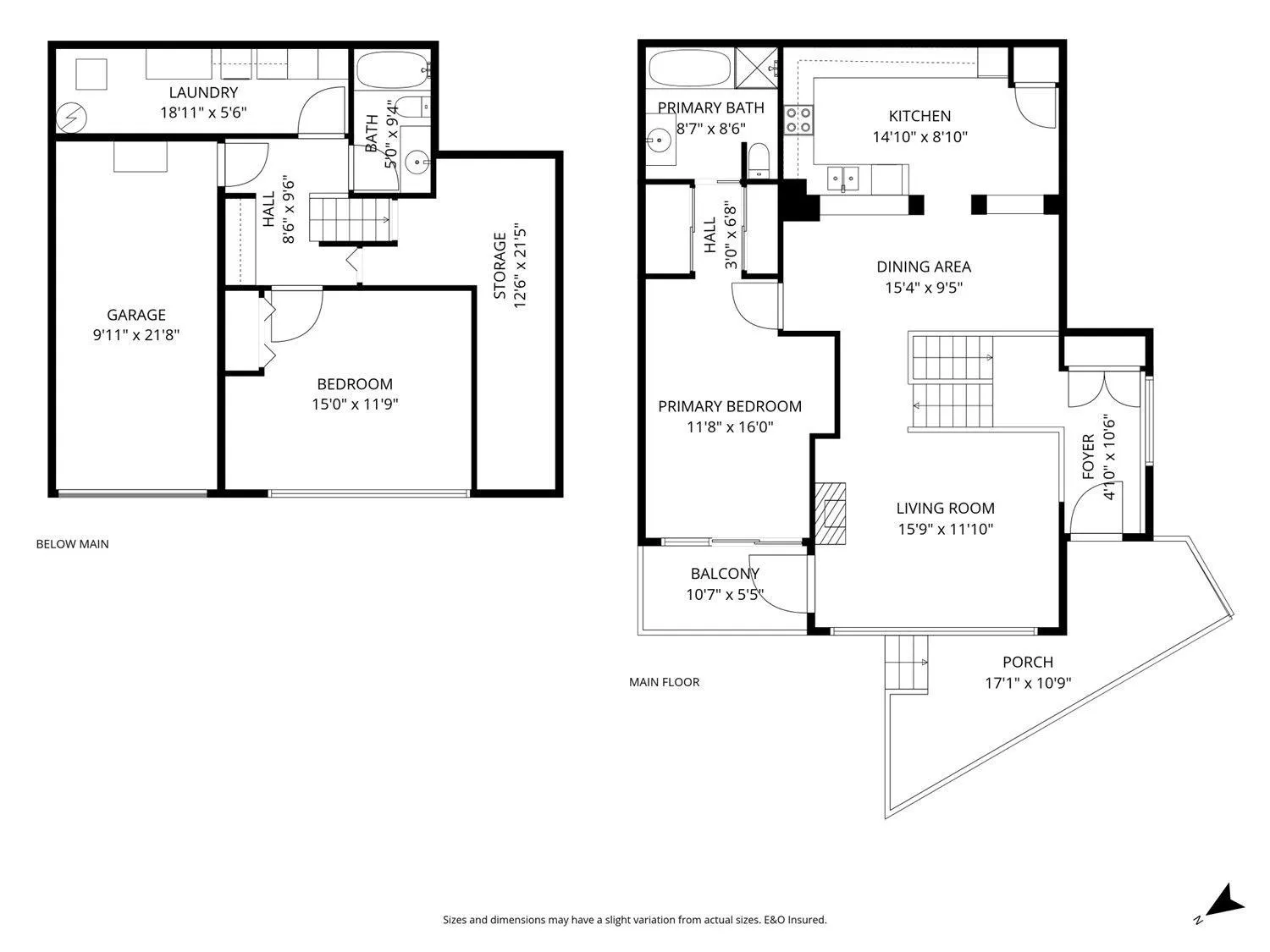
Recently updated home featuring panoramic mountain and valley views, plus over 200 sq ft of outdoor space to enjoy them. The kitchen offers stainless steel glass cooktop, OTR microwave, fridge, dishwasher, double sink, and a convenient pantry. Cozy up by the natural gas fireplace with custom mantle. Laminate flooring throughout with carpeted stairs and tile in bathrooms. The primary bedroom includes a private balcony and a fully renovated ensuite with soaker tub and walk-in shower. Added perks include central vacuum, a furnace replaced approx. 3 years ago, and an incredible ~167 sq ft of under-stair storage. * PREC - Personal Real Estate Corporation (id:27476)

Property Highlights

MLS® Number
R3082325
Type
Single Family
Ownership Type
Strata

Building

Building Type
Row / Townhouse
Storeys
3.00
Square Footage
1567 sqft
Bathrooms Total
2
Bedrooms Total
2
Amenities
Laundry - In Suite
Fireplace Present
Yes
Basement Type
Full (Finished)
Basement Features
Building Heating Type
Forced air
Heating Fuel
Natural gas
Building Cooling Type

Location

Learn more about this property
Listing provided by:
Advantage Property Management
MLS® number:
R3082325
Agent:
Taylor Apsouris
*Indicates required field
Name is required
Email is required
Please enter a valid phone number (e.g., 416-111-1111).