1500 Neimi Road Unit# 16, Christina Lake, British Columbia V0H 1E2

Listed for:
$419,000
3 beds
2 baths
Listed 74 days ago
Manufactured Home for rent: 1500 Neimi Road Unit# 16, Christina Lake, British Columbia V0H 1E2

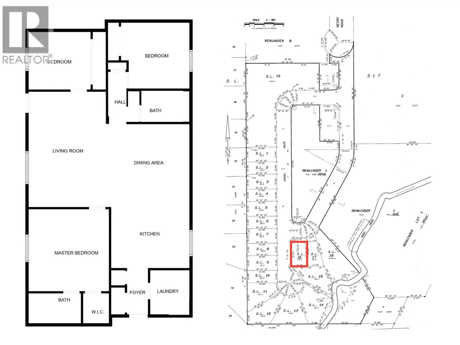
View all 22 photos

About

This inviting three-bedroom, two-bathroom home in Moody Creek Estates offers a rare opportunity for a life of ease and versatility. Perfectly situated on a quiet cul-de-sac, this bright and airy residence features a spacious primary suite with a walk-in closet and private ensuite. A unique highlight is the finished concrete crawl space with interior access, providing exceptional storage solutions. Outdoor living is effortless on the generous 12x25 ft cement patio, which features a private gazebo and a convenient gas line ready for your BBQ. Inside, the living room is also plumbed for gas, making the future addition of a cozy fireplace simple and efficient. For the hobbyist, the 14x20 ft garage is a standout asset, equipped with a sub-panel, workbench, and ample natural light. The mature, low-maintenance landscaping allows you to spend your time enjoying the short two-minute drive or ten-minute stroll to the beautiful Christina Lake Provincial Park beach! With no age restrictions at Moody Creek Estates, this property is a fantastic investment for everyone from first-time buyers to retirees looking to downsize. The professionally managed strata ensures a secure, carefree lifestyle in a vibrant community. Contact your local agent to schedule a viewing of this beautiful home today! (id:27476)

Property Highlights

MLS® Number
10378067
Type
Single Family
Community Name
Moody Creek Estates
Maintenance Fee
133.00
Ownership Type
Bare Land Condo/Strata
Land Size
0.11 ac|under 1 acre
Parking Space Total
2

Building

Building Type
Manufactured Home
Storeys
1.00
Square Footage
1296 sqft
Bathrooms Total
2
Bedrooms Total
3
Amenities
Clubhouse Recreation
Exterior Finish
Vinyl siding
Fireplace Present
No
Basement Type
Crawl space
Basement Features
Building Heating Type
Forced air
Heating Fuel
Building Cooling Type
Wall unit

Utilities

Water
Government Managed
Utility Sewer
Septic tank

Room Layout

Laundry room
Main level
8'6'' x 6'6''
4pc Ensuite bath
Main level
Measurements not available
Primary Bedroom
Main level
13'4'' x 13'1''
Bedroom
Main level
8'9'' x 10'6''
4pc Bathroom
Main level
Measurements not available
Bedroom
Main level
10'0'' x 10'0''
Living room
Main level
12'9'' x 19'7''
Dining room
Main level
12'6'' x 13'4''
Kitchen
Main level
10'6'' x 12'9''

Location

Learn more about this property
Listing provided by:
Grand Forks Realty Ltd
MLS® number:
10378067
Agent:
Erica Mccluney
*Indicates required field
Name is required
Email is required
Please enter a valid phone number (e.g., 416-111-1111).