2 1406 Harversley Avenue, Coquitlam, British Columbia V3J 1V3

Listed for:
$1,449,999
4 beds
3 baths
Listed 15 days ago
Duplex for rent: 2 1406 Harversley Avenue, Coquitlam, British Columbia V3J 1V3

View all 4 photos

Learn more about this property
Listing provided by:
Platinum House Realty Ltd.
MLS® number:
R3027004
Agent:
Asana Askarian
*Indicates required field
Name is required
Email is required
Please enter a valid phone number (e.g., 416-111-1111).

About

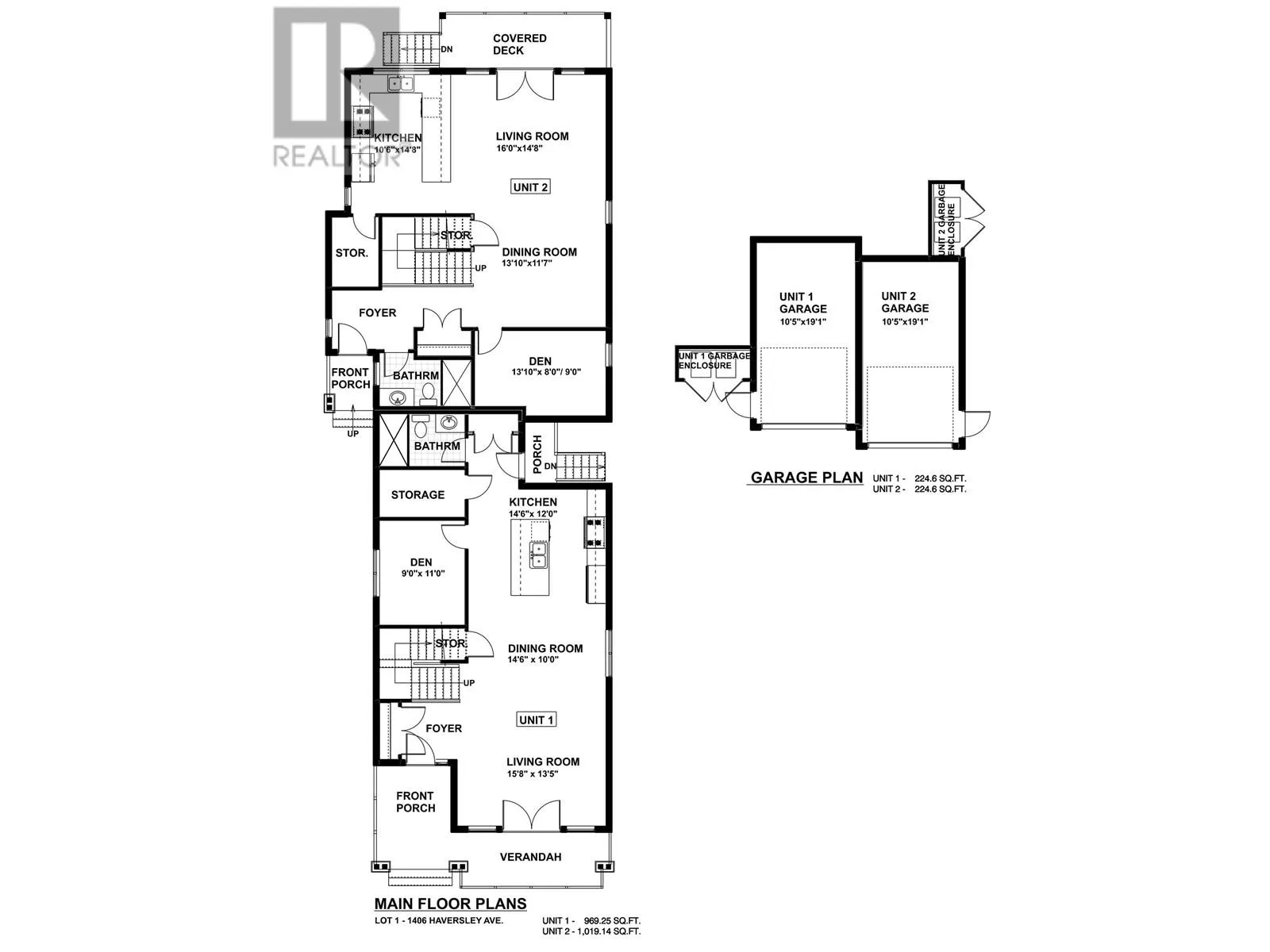
Noura Homes presents this 4-bedroom half duplex-perfect for families, multigenerational living, or those needing extra space. Featuring a convenient main floor bedroom and full bathroom, this home offers added flexibility for guests or extended family. Step inside to a bright, open-concept layout with modern finishes and functional flow. Upstairs, you´ll find three bedrooms, including an open family room. Enjoy outdoor living with a, private 760sqft backyard-ideal for kids, pets, and entertaining. A detached garage adds convenience and extra storage. Located in a family-friendly neighborhood close to parks, schools, and transit, this is a home that truly checks all the boxes. Home is under construction and will be ready for move in early 2026. Both front and back units are available. (id:27476)

Property Highlights

MLS® Number
R3027004
Type
Single Family
Ownership Type
Strata
Land Size
6608 sqft
Parking Space Total
2

Building

Building Type
Duplex
Square Footage
2067 sqft
Bathrooms Total
3
Bedrooms Total
4
Amenities
Recreation, Shopping
Fireplace Present
No
Basement Type
Crawl space (Unknown)
Basement Features
Unknown
Building Heating Type
Forced air
Heating Fuel
Natural gas
Building Cooling Type

Location