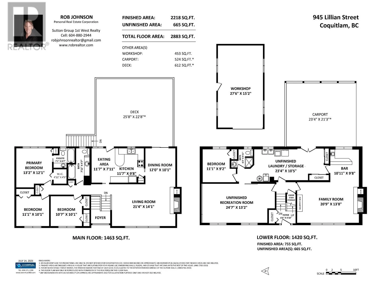
945 Lillian Street, Coquitlam, British Columbia V3J 5C6

Listed for:
$2,500,000
4 beds
3 baths
Listed 13 days ago
House for rent: 945 Lillian Street, Coquitlam, British Columbia V3J 5C6

View all 37 photos

Learn more about this property
Listing provided by:
Sutton Group - 1st West Realty
MLS® number:
R3027319
Agent:
Rob Johnson
*Indicates required field
Name is required
Email is required
Please enter a valid phone number (e.g., 416-111-1111).

About

This classic home is perfect for your renovation ideas or a clean slate for the new R-1 zoning with potential for up to 4 units on this huge lot (Approx 0.418 of an acre) in Central Coquitlam. Key Features: hardwood floors, new roof, newer furnace, hot water tank 2024, Detached workshop / garage, huge sundeck, Location is close to Como Lake, Harbourview Elementary School across the street, quick drive to: skytrain, west coast express, shopping, restaurants & SFU. (id:27476)

Property Highlights

MLS® Number
R3027319
Type
Single Family
Ownership Type
Freehold
Land Size
18225 sqft
Parking Space Total
8

Building

Building Type
House
Square Footage
2883 sqft
Bathrooms Total
3
Bedrooms Total
4
Amenities
Golf Course, Recreation, Shopping
Fireplace Present
Yes
Basement Type
Full (Unknown)
Basement Features
Unknown
Building Heating Type
Forced air
Heating Fuel
Natural gas
Building Cooling Type

Location