16102 3a Highway, Crawford Bay, British Columbia V0B 1E0

Listed for:
$998,000
3 beds
5 baths
Listed Today
House for rent: 16102 3a Highway, Crawford Bay, British Columbia V0B 1E0

View all 39 photos

Learn more about this property
Listing provided by:
Century 21 Assurance Realty Ltd
MLS® number:
10352799
Agent:
Sheena Sobkiw
*Indicates required field
Name is required
Email is required
Please enter a valid phone number (e.g., 416-111-1111).

About

Modern home with additional income potential! Welcome to a truly special property in the heart of Crawford Bay—where charm, comfort, and lifestyle come together on 2 scenic acres with creek frontage and mountain views. This unique offering features a beautifully updated home with two fully furnished, modern apartments—perfect for multi-generational living, long-term rentals, or hosting friends and family in style. Upstairs, you'll find bright, tastefully designed living spaces with all the comforts of home, including sleek finishes, natural light, and peaceful surroundings. It’s the ideal setup for those who want to live where they love, with the added benefit of flexible income potential through vacation or long-term rentals. Located just a short walk to Crawford Bay’s shops, restaurants, artisan studios, local market, and the beach, you’ll enjoy the ease of village living while surrounded by natural beauty. On the main level, a warm and inviting space that could easily be reimagined as a personal studio, workshop, gathering space, or even transformed into your dream kitchen and great room. With a new roof, two new hot water tanks, a UV and filtration water treatment system, and a heat pump with air conditioning, the building is updated for comfort and efficiency in every season. The lower level offers high ceilings and easy access—ideal for storage, a home gym, hobby area, or future expansion. Outside, enjoy ample parking, lush green space, creekside relaxation, and two sunny patios perfect for summer dinners, morning coffee, or hosting small gatherings. Whether you're starting a new chapter, looking for a quiet retreat, or hoping to build a more self-sufficient lifestyle, this property offers the perfect balance of beauty, function, and freedom—all in a walkable, welcoming community. (id:27476)

Property Highlights

MLS® Number
10352799
Type
Single Family
Ownership Type
Freehold
Land Size
2.04 ac|1 - 5 acres

Building

Building Type
House
Storeys
2.00
Square Footage
3393 sqft
Bathrooms Total
5
Bedrooms Total
3
Amenities
Golf Nearby, Recreation
Exterior Finish
Wood siding
Fireplace Present
No
Basement Type
Full
Basement Features
Building Heating Type
Baseboard heaters, Heat Pump, See remarks
Heating Fuel
Electric
Building Cooling Type

Utilities

Water
Well
Utility Sewer
Septic tank

Room Layout

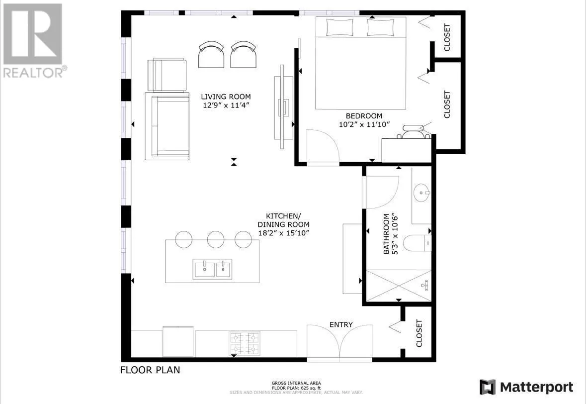
Bedroom
Second level
10'2'' x 11'10''
Full bathroom
Second level
Measurements not available
Living room
Second level
12'9'' x 11'4''
Kitchen
Second level
18'2'' x 15'10''
Bedroom
Second level
8'11'' x 12'5''
Full bathroom
Second level
Measurements not available
Primary Bedroom
Second level
10'10'' x 12'2''
Dining room
Second level
7'0'' x 10'1''
Living room
Second level
11'6'' x 12'6''
Kitchen
Second level
17'10'' x 15'2''
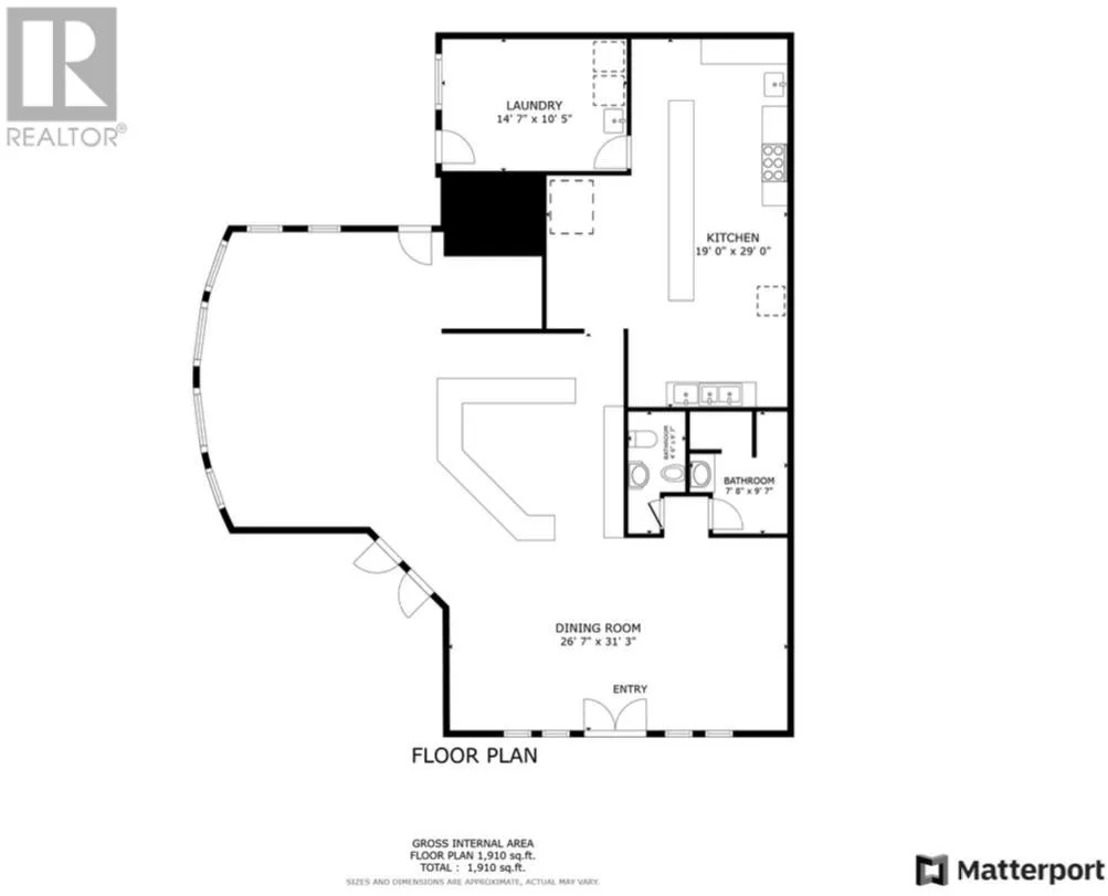
Laundry room
Main level
14'7'' x 10'5''
Partial bathroom
Main level
Measurements not available
Partial bathroom
Main level
Measurements not available
Partial bathroom
Main level
Measurements not available
Kitchen
Main level
19'0'' x 29'0''
Family room
Main level
26'7'' x 31'3''

Location